Prodej rodinného domu, Slavkov, 120 m2 (ID: 4095945)

Slavkov

Rezervováno
4 900 000 Kč /za nemovitost HYPOTÉKA od 21 900 Kč /za měsíc
Prémioví partneři v Slavkově

Informace k domu

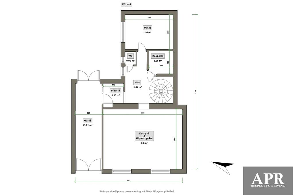
Nabízíme k prodeji rodinný dům se zahradou v obci Slavkov, který se nachází 12 km od obce Uherský Brod a 22 km od města Uherské Hradiště. Dům je postaven v řadové zástavbě v klidné části obce, dispozičně řešen jako jednogenerační o velikosti 5+KK ( 120 m2 ).
Dům je z větší části podsklepen, připojen na elektřinu a vodovodní řád. Dále také vlastní studna s rozvody do objektu. Topení ústřední kotlem na TP ( zn. Viadrus ) Zdrojem teplé vody je elektrický bojler. V roce 2013-2014 proběhla na domě rekonstrukce a vznikl tak velmi zajímavý a útulný prostor k bydlení. Jsou zde nové rozvody vody a elektro, nové podlahy, plastová okna, kuchyňská linka vč. spotřebičů, vybudované sociální zázemí, SDK, zateplení domu a další. Dům je ve velmi dobrém, udržovaném stavu, ihned k nastěhování. Pozemek je přístupný z jedné strany. Na pozemku je postavená vedlejší stavba a krytý altán s posezením.
V obci je poměrně velká průmyslová zóna ( přes 800 pracovních míst ). Mezi nevýznamnější zaměstnavatele patří firmy KASKO spol. s r.o., Obchodní společnost KREDIT, spol. s r. o. a STAMIT s.r.o.
Slavkov leží v Chráněné krajinné oblasti Bíle Karpaty a v jeho katastru se nachází několik cenných přírodních lokalit. Nádherná příroda v okolí obce přímo vybízí k pěší turistice. Přímo z obce vede cyklostezka, která navazuje na bohatou síť cyklostezek v našem regionu. Další sportovní využití nabízí fotbalové hřiště, sportovní hala, workautové hřiště, tenisové kurty a pro nejmenší stylové dětské hřiště. Návštěvníky srdečně zveme také na mezinárodní akci Folklorní den. Jedná se o pestrou přehlídku krojů a umění folklorních souborů z Česka i Slovenska a jarmark lidových řemesel. Folklorní den pořádáme každý sudý rok v srpnu.

Parametry domu

Stav
Rezervováno
Cena
4 900 000 Kč /za nemovitost Spočítat hypotéku
Aktualizováno
1. 11. 2025
Adresa
Slavkov
ID
1892
Stavba
Cihlová
Stav objektu
Velmi dobrý
Druh objektu
Řadový
Užitná plocha
120 m2
Zastavěná plocha
120 m2
Podlahová plocha
892 m2
Plocha pozemku
892 m2
Třída energetické náročnosti
G - Mimořádně nehospodárná

Kontaktovat makléře

Realitní kancelář

APOLLO REALITY

Hodinářská 1523, Uherský Brod

Chystáte se prodat nemovitost?
Pomůžeme Vám!

Máte zájem o tento dům?

Tímto, v souladu s nařízením Evropského parlamentu a Rady (EU) 2016/679, v platném znění, prohlašuji, že mi je alespoň 16 let a uděluji tak svůj souhlas se zpracováním zadaných údajů (jméno, telefon, e-mail, ip adresa) společnosti B3 Technology, s.r.o., IČ: 07330600, se sídlem Novostavby 126/23, 435 11 Lom (správce dat), za účelem předání dotazu z tohoto formuláře Vámi vybranému inzerentovi a zpětného kontaktování mé osoby. Osobní údaje bude správce zpracovávat manuálně i automaticky přímo prostřednictvím svých zaměstnanců. Informace předané tímto formulářem budou uloženy v databázi správce maximálně po dobu 10 let. Odvolání souhlasu s uložením a zpracováním poskytnutých dat lze e-mailem na info@videobydleni.cz. V případě podezření na neoprávněné použití Vámi poskytnutých údajů máte právo předat podnět k šetření Úřadu pro ochranu osobních údajů. Více informací
Chystáte se prodat nemovitost?
Pomůžeme Vám!

Inzerát si prohlédlo 1 lidí

Prodejce

Antonín Polášek

Antonín Polášek

Hlídací pes

Chcete dostávat emailem podobné nabídky prodeje rodinných domů v Slavkově (okr. Uherské Hradiště)?

Podobné nemovitosti


Nevyhovuje Vám typ domu? Podívejte se na jiné kategorie domů.


Vybrané články z našeho blogu