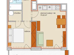
Prodej bytu 2+kk, Praha - Košíře, Hlaváčkova, 56 m2 (ID: 4121500)

Hlaváčkova, Praha, Košíře

9 980 000 Kč /za nemovitost HYPOTÉKA od 44 605 Kč /za měsíc
Prémioví partneři v Praze 5

Stěhovací služby

Výkup a prodej starého nábytku

Informace k bytu

Prodej moderního bytu 2+kk, 58 m² s terasou, Praha 5 - Košíře
Nabízíme k prodeji moderní a prostorný byt 2+kk o celkové ploše 58 m² (včetně terasy), který se nachází v novostavbě (dům postaven před 5 lety).
Vybavení bytu:
• moderní kuchyňská linka se spotřebiči,
• stylový nábytek,
• vestavěná šatní skříň v ložnici,
• systém „chytrá domácnost“ s ovládáním přes telefon,
• bezpečnostní systém s kamerovým dohledem a čipovým přístupem.
K bytu náleží:
• prostorný sklep vybavený regály,
• samostatné parkovací stání.
Výborná lokalita:
• supermarket Lidl přímo v domě,
• pouze 3 minuty chůze na zastávku MHD:
o tramvaj — 2 zastávky na metro a 4 zastávky do centra Prahy,
o autobus — přímá linka na letiště Václava Havla,
• v blízkosti park Klamovka, ideální pro procházky a odpočinek.

Byt je vhodný jak k vlastnímu bydlení, tak i jako investiční příležitost.

Cena: 9 980 000 CZK + 850 000 CZK za parkovací stání (není povinné).

Parametry bytu

Cena
9 980 000 Kč /za nemovitost Spočítat hypotéku
Aktualizováno
29. 11. 2025
Adresa
Hlaváčkova, Praha, Košíře
Stavba
Cihlová
Stav objektu
Novostavba
Patro
3.
Vlastnictví
Osobní
Užitná plocha
56 m2
Sklep
Lodžie
Parkování

Kontaktovat makléře

Realitní kancelář

DIXOR Invest s.r.o.

Volutová 2523/14, Praha, Stodůlky

Chystáte se prodat nemovitost?
Pomůžeme Vám!

Máte zájem o tento byt?

Tímto, v souladu s nařízením Evropského parlamentu a Rady (EU) 2016/679, v platném znění, prohlašuji, že mi je alespoň 16 let a uděluji tak svůj souhlas se zpracováním zadaných údajů (jméno, telefon, e-mail, ip adresa) společnosti B3 Technology, s.r.o., IČ: 07330600, se sídlem Novostavby 126/23, 435 11 Lom (správce dat), za účelem předání dotazu z tohoto formuláře Vámi vybranému inzerentovi a zpětného kontaktování mé osoby. Osobní údaje bude správce zpracovávat manuálně i automaticky přímo prostřednictvím svých zaměstnanců. Informace předané tímto formulářem budou uloženy v databázi správce maximálně po dobu 10 let. Odvolání souhlasu s uložením a zpracováním poskytnutých dat lze e-mailem na info@videobydleni.cz. V případě podezření na neoprávněné použití Vámi poskytnutých údajů máte právo předat podnět k šetření Úřadu pro ochranu osobních údajů. Více informací
Chystáte se prodat nemovitost?
Pomůžeme Vám!

Inzerát si prohlédlo 1 lidí

Prodejce

V. Pereverzeva

V. Pereverzeva

Hlídací pes

Chcete dostávat emailem podobné nabídky prodeje bytů 2+kk v Praze 5?

Podobné nemovitosti


Nevyhovuje Vám typ bytu? Podívejte se na jiné kategorie bytů.


Vybrané články z našeho blogu