Prodej bytu 2+kk, Praha, Pod turnovskou tratí, 58 m2 (ID: 4123596)

Pod turnovskou tratí, Praha

10 800 000 Kč /za nemovitost HYPOTÉKA od 48 269 Kč /za měsíc

(vč. advokátního servisu a úschovy, neplatíte provizi RK.)

Prémioví partneři v Praze

Stěhovací služby

Výkup a prodej starého nábytku

Informace k bytu

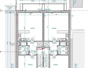
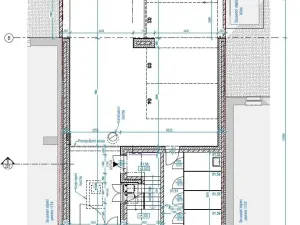
Nabízíme Vám novostavbu moderního bytu o výměře 52 m² s balkonem 6 m² se skleněným zábradlím a garážovým stáním v bytovém domě, v klidné a velmi žádané lokalitě Prahy 9 – Hloubětín, v ulici Pod Turnovskou tratí. Tento byt je součástí nově vybudovaného, komorního projektu o třech bytových jednotkách – BD Vila dům Libuše, který je těsně před dokončením.

Tento moderní byt se nachází v 1. patře novostavby rezidenčního projektu Vila dům Libuše, bytového domu postaveného z monolitického pohledového betonu. Dům je ve finální fázi dokončení a kolaudace (předpoklad 1Q/2026).

V bytovém domě Vila dům Libuše jsou k dispozici sklepní kóje, kočárkárna a kolárna včetně místa pro mytí kol a psů, a také prostorné lobby. Projekt je navržen v jednoduchém a nadčasovém moderním stylu – uliční fasáda je z pohledového betonu, dvorní fasáda je bílá, doplněná o hliníkovou střechu.

Bytová jednotka je vybavena kvalitními hliníkovými okny až ke stropu s izolačním trojsklem. Ze dvora je instalován hliníkový HS portál s elektricky ovládanými žaluziemi. Součástí bytu bude také tzv. indoor monitor – chytrý videotelefon pro ovládání vstupních dveří. Vstup do domu je zabezpečen alarmem a kamerovým systémem. Vytápění je řešeno podlahovým topením prostřednictvím tepelného čerpadla. Každý byt je vybaven chytrou rekuperací s možností chlazení.

Koupelna je obložena velkoformátovou dlažbou 60×120 cm a osazena kvalitní sanitou. Podlahy v bytě tvoří třívrstvá dřevěná podlaha ve vzoru světlého dubu o tloušťce 14 mm.

Lokalita Prahy 9 je dynamicky se rozvíjející oblastí s výborným dopravním spojením a snadnou dostupností MHD. Tramvajová zastávka i metro se nacházejí přibližně 3 minuty od domu. Velkým benefitem projektu je možnost užívání soukromé zahrady s altánem určeným pro grilování a odpočinek.

V blízkém okolí se nachází říčka Rokytka, Park podél Rokytky a oblíbená cyklostezka, které nabízí mnoho možností pro volnočasové aktivity.

PENB: energetická třída B.

V případě zájmu Vám rádi zajistíme výhodné financování hypotečním úvěrem.

Prodávající si vyhrazuje právo vybrat si zájemce a vyhovět případné nejvyšší nabídce.

V případě zájmu se platí rez. poplatek 20%. Neplatíte provizi RK. Prodej přímo od developera.

Parametry bytu

Cena
10 800 000 Kč /za nemovitost Spočítat hypotéku
Poznámka k ceně
vč. advokátního servisu a úschovy, neplatíte provizi RK.
Aktualizováno
2. 12. 2025
Adresa
Pod turnovskou tratí, Praha
ID
N04070
Stavba
Skeletová
Stav objektu
Novostavba
Patro
2. z 3
Vybaveno
Ne
Vlastnictví
Osobní
Užitná plocha
58 m2
Podlahová plocha
58 m2
Třída energetické náročnosti
C - Úsporná
Ukazatel energetické náročnosti
113 kWh/m2 za rok
Elektřina
230V
Odpad
Veřejná kanalizace
Topení
Ústřední elektrické
Telekomunikace
Telefon, Internet, Ostatní
Doprava
Vlak, MHD, Autobus
Voda
Vodovod
Balkon
Garáž
Sklep
Bezbarierový přístup
Parkování

Kontaktovat makléře

Realitní kancelář

Logo Reality Lenner

Reality Lenner

Gen. R. Tesaříka 256, Příbram I

Chystáte se prodat nemovitost?
Pomůžeme Vám!

Máte zájem o tento byt?

Tímto, v souladu s nařízením Evropského parlamentu a Rady (EU) 2016/679, v platném znění, prohlašuji, že mi je alespoň 16 let a uděluji tak svůj souhlas se zpracováním zadaných údajů (jméno, telefon, e-mail, ip adresa) společnosti B3 Technology, s.r.o., IČ: 07330600, se sídlem Novostavby 126/23, 435 11 Lom (správce dat), za účelem předání dotazu z tohoto formuláře Vámi vybranému inzerentovi a zpětného kontaktování mé osoby. Osobní údaje bude správce zpracovávat manuálně i automaticky přímo prostřednictvím svých zaměstnanců. Informace předané tímto formulářem budou uloženy v databázi správce maximálně po dobu 10 let. Odvolání souhlasu s uložením a zpracováním poskytnutých dat lze e-mailem na info@videobydleni.cz. V případě podezření na neoprávněné použití Vámi poskytnutých údajů máte právo předat podnět k šetření Úřadu pro ochranu osobních údajů. Více informací
Chystáte se prodat nemovitost?
Pomůžeme Vám!

Inzerát si prohlédlo 0 lidí

Prodejce

Tomáš Lenner

Tomáš Lenner

Hlídací pes

Chcete dostávat emailem podobné nabídky prodeje bytů 2+kk v Praze?

Podobné nemovitosti


Nevyhovuje Vám typ bytu? Podívejte se na jiné kategorie bytů.


Vybrané články z našeho blogu