Prodej bytu 3+kk, Karlovy Vary, Koptova, 78 m2

Koptova, Karlovy Vary

5 290 000 Kč /za nemovitost HYPOTÉKA od 23 643 Kč /za měsíc
Prémioví partneři v Karlových Varech

Informace k bytu

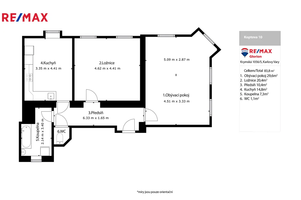
Exkluzivně nabízíme k prodeji stylový a prostorný byt o dispozici 3+kk (evidovaný jako 2+1) o celkové ploše 78,3 m² + sklep 5,3 m², po rekonstrukci.

Byt je zařízen stylovým nábytkem, který harmonicky ladí s prostornými místnostmi a vysokými stropy o výšce 3,6 m. Jedna z velkých místností je díky promyšlenému zónování rozdělena na ložnici a obývací část, přičemž zde zůstává i prostor vhodný pro pracovní kout nebo domácí kancelář.

Kuchyně je vybavena kvalitními vestavěnými spotřebiči a nabízí také místo pro relaxační zónu. Právě díky tomuto uspořádání lze byt prakticky využívat jako dispozici 3+kk.
Vytápění i ohřev vody jsou zajištěny centrálně.
Byt se prodává plně zařízený, což umožňuje okamžité nastěhování – stačí si přivézt osobní věci a můžete bydlet bez dalších investic.
Vytápění i ohřev vody jsou zajištěny centrálně.
Vedle domu je spousta parkovacích míst - majitel bytu dostava povolení k parkováni.
V okolí je všechno - v pěší dostupnosti obchody: LIDL, ALBERT, lékárna, spojující stanice MHD Tržnice, kavárny a restauraci, škola, školka a další občanská vybavenost

Nemovitost je zároveň velmi vhodná také jako investice pro dlouhodobý pronájem nebo krátkodobé ubytování typu Airbnb.

Centrální lokalita a blízkost lázeňské zóny (pouhých 5 minut chůze) činí tuto nabídku atraktivní jak pro vlastní bydlení, tak pro turistické využití.
Může se tak stát ideální rezidencí pro ty, kteří hledají klidné místo mimo ruch a beton velkých měst.

Tento útulný byt čeká na své nové majitele. Nepropásněte tuto výjimečnou nabídku a rezervujte si prohlídku u makléře. Prodávající si vyhrazuje právo vybrat kupujícího na základě jím zvolených kritérií.

Parametry bytu

Cena
5 290 000 Kč /za nemovitost Spočítat hypotéku
Aktualizováno
12. 3. 2026
Adresa
Koptova, Karlovy Vary
ID
294-NP01775
Stavba
Smíšená
Stav objektu
Po rekonstrukci
Patro
1. z 5
Vybaveno
Ano
Lokalita objektu
Centrum obce
Vlastnictví
Osobní
Užitná plocha
78 m2
Zastavěná plocha
175 m2
Podlahová plocha
84 m2
Třída energetické náročnosti
G - Mimořádně nehospodárná
Elektřina
230V
Plyn
Plynovod
Odpad
Veřejná kanalizace
Komunikace
Asfaltová
Telekomunikace
Telefon, Internet, Satelit, Ostatní
Doprava
Vlak, Dálnice, MHD, Autobus
Voda
Vodovod
Sklep
Parkování

Kontaktovat makléře

Realitní kancelář

Logo RE/MAX Glorion

RE/MAX Glorion

Krymská 1056/5, Karlovy Vary

Chystáte se prodat nemovitost?
Pomůžeme Vám!

Máte zájem o tento byt?

Tímto, v souladu s nařízením Evropského parlamentu a Rady (EU) 2016/679, v platném znění, prohlašuji, že mi je alespoň 16 let a uděluji tak svůj souhlas se zpracováním zadaných údajů (jméno, telefon, e-mail, ip adresa) společnosti B3 Technology, s.r.o., IČ: 07330600, se sídlem Novostavby 126/23, 435 11 Lom (správce dat), za účelem předání dotazu z tohoto formuláře Vámi vybranému inzerentovi a zpětného kontaktování mé osoby. Osobní údaje bude správce zpracovávat manuálně i automaticky přímo prostřednictvím svých zaměstnanců. Informace předané tímto formulářem budou uloženy v databázi správce maximálně po dobu 10 let. Odvolání souhlasu s uložením a zpracováním poskytnutých dat lze e-mailem na info@videobydleni.cz. V případě podezření na neoprávněné použití Vámi poskytnutých údajů máte právo předat podnět k šetření Úřadu pro ochranu osobních údajů. Více informací
Chystáte se prodat nemovitost?
Pomůžeme Vám!

Inzerát si prohlédlo 1 lidí

Prodejce

Irina Korsakova

Irina Korsakova

Hlídací pes

Chcete dostávat emailem podobné nabídky prodeje bytů 3+kk v Karlových Varech?

Podobné nemovitosti


Nevyhovuje Vám typ bytu? Podívejte se na jiné kategorie bytů.


Vybrané články z našeho blogu