Prodej bytu 1+1, Aš, Slovanská, 69 m2 (ID: 3208077)

Slovanská, Aš

2 430 000 Kč /za nemovitost HYPOTÉKA od 10 861 Kč /za měsíc
Prémioví partneři v Aši

Informace k bytu

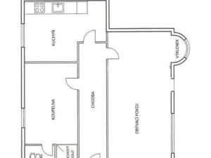
Nabízíme k prodeji atypický byt 1+1 v nově zrekonstruované vile v Aši, která se nachází v klidné lokalitě v ulici Slovanská. Bytová jednotka se nachází v I. nadzemním podlaží a má výměru 69,5 m2. Proběhla zde kompletní přestavba a vznikl tento zajímavý byt, který sestává z předsíně, koupelny, obývacího pokoje a kuchyně. Předmětem prodej je též podíl na oploceném pozemku, kde si můžete zaparkovat Váš automobil a zahradu využívat též k rekreaci. Vytápění je zajištěné plynovým kotlem. Vše má samostatné měření. Doporučujeme osobní prohlídku.

Parametry bytu

Cena
2 430 000 Kč /za nemovitost Spočítat hypotéku
Aktualizováno
22. 4. 2026
Adresa
Slovanská, Aš
ID
KM0523
Stavba
Cihlová
Stav objektu
Po rekonstrukci
Patro
1. z 4
Vybaveno
Ano
Typ objektu
Patrový
Vlastnictví
Osobní
Užitná plocha
69 m2
Podlahová plocha
69 m2
Třída energetické náročnosti
G - Mimořádně nehospodárná
Topení
Ústřední plynové
Sklep
Bezbarierový přístup
Parkování

Kontaktovat makléře

Máte zájem o tento byt?

Tímto, v souladu s nařízením Evropského parlamentu a Rady (EU) 2016/679, v platném znění, prohlašuji, že mi je alespoň 16 let a uděluji tak svůj souhlas se zpracováním zadaných údajů (jméno, telefon, e-mail, ip adresa) společnosti B3 Technology, s.r.o., IČ: 07330600, se sídlem Novostavby 126/23, 435 11 Lom (správce dat), za účelem předání dotazu z tohoto formuláře Vámi vybranému inzerentovi a zpětného kontaktování mé osoby. Osobní údaje bude správce zpracovávat manuálně i automaticky přímo prostřednictvím svých zaměstnanců. Informace předané tímto formulářem budou uloženy v databázi správce maximálně po dobu 10 let. Odvolání souhlasu s uložením a zpracováním poskytnutých dat lze e-mailem na info@videobydleni.cz. V případě podezření na neoprávněné použití Vámi poskytnutých údajů máte právo předat podnět k šetření Úřadu pro ochranu osobních údajů. Více informací
Chystáte se prodat nemovitost?
Pomůžeme Vám!

Inzerát si prohlédlo 60 lidí

Prodejce

Miroslava Kárníková

Miroslava Kárníková

Hlídací pes

Chcete dostávat emailem podobné nabídky prodeje bytů 1+1 v Aši?

Podobné nemovitosti


Nevyhovuje Vám typ bytu? Podívejte se na jiné kategorie bytů.


Vybrané články z našeho blogu