Prodej pozemku pro bydlení, České Budějovice, Kostelní, 241 m2

Kostelní, České Budějovice

Cena na vyžádání /za nemovitost Získejte výhodnou HYPOTÉKU

(Cena v RK)

Prémioví partneři v Českých Budějovicích

Výkup a prodej starého nábytku

Pojištění a finance

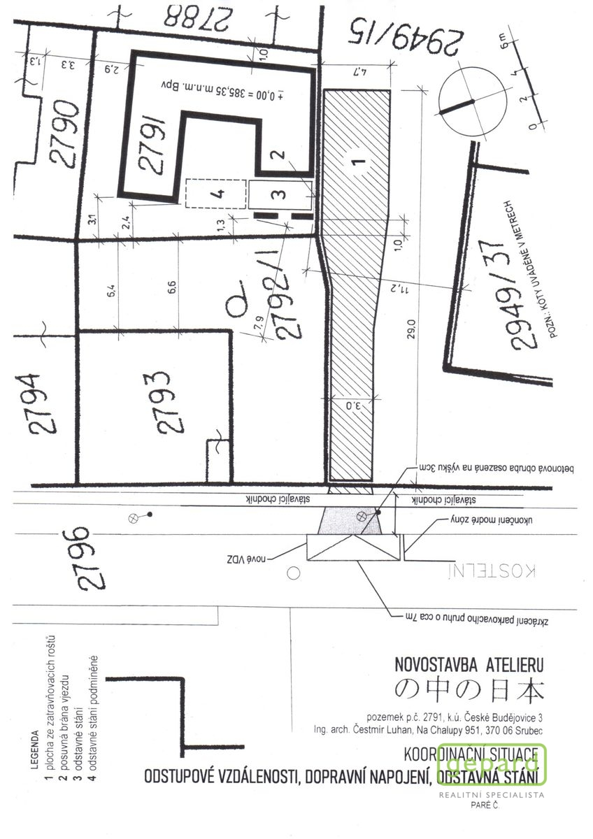
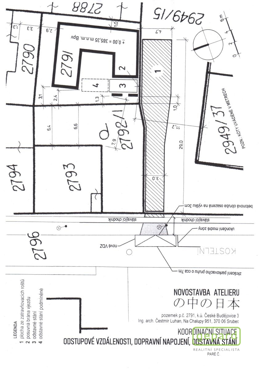
Informace k pozemku

Výjimečná nabídka – hledáte něco výjimečného, co jen tak někdo nemá, ať už k bydlení, nebo podnikání, či jako investiční záměr v širším středu Českých Budějovic u obchodního střediska IGY, ulice Kostelní?
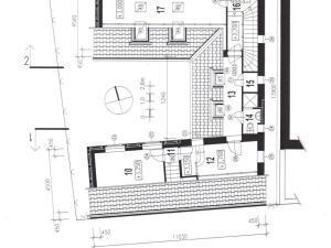
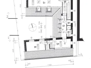
Nabízíme výhradně prodej stavebního pozemku se schváleným stavebním záměrem – výstavba, víceúčelová stavba, atelier s možností výstavby budovy za účelem následného využití (možný výběr):
- atelier,
- jedna bytová jednotka v RD,
- ateliér a jedna bytová jednotka
- dvě bytové jednotky v RD,
- celkem 6 ubytovacích jednotek,
- celkem 7 ubytovacích jednotek.
Celá budova je navržena a situována tak, aby bylo maximálně dodrženo soukromí budoucích bydlících a uživatelů i ze strany a podhledu ze všech okolních budov.

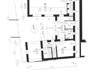
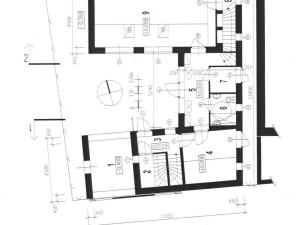
Parametry budoucí stavby:
zastavěná plocha (včetně průjezdu) … 123,0 m2
obest. prostor (včetně průjezdu, bez zákl. konstrukcí) … cca 765,0 m3
obestavěný prostor (standardní základové konstrukce) … cca 85,0 m3
užitková plocha přízemí (včetně průjezdu) … 90,1 m2
užitková plocha podkroví … 68,4 m2
užitková plocha celkem (včetně průjezdu) … 158,5 m2
podlahová plocha celkem (bez průjezdu) … 207,5 m2

Celková plocha stavebního pozemku je 241 m2 a vlastníkem a zároveň zpracovatelem záměru a projektu byla již zpracována projektová dokumentace k uvedenému, včetně souhlasných stanovisek, přípojek (voda, plyn, elektro, kanalizace), smluv a vyjádření potřebných k následnému vydání stavebního povolení, naposledy - Kladné závazné stanovisko se stavebním záměrem – atelier (víceúčelová stavba) Magistrát města České Budějovice, odbor územního plánování.
Jedná se o zcela výjimečnou věc zpracovanou renomovaným architektem, který se může na uvedeném po dohodě dále zúčastnit a vykonávat další činnosti v tomto pro nového majitele.
Nový majitel v ceně obdrží pozemek, včetně všech plánů, variant, možností, oprávnění, povolení a dalšího, rovnající se práce na uvedeném ze dobu 6-ti let …..
K uvedenému je potřebné a vhodné jednání a prezentace pro vážného zájemce u „kulatého stolu“ kde bude vše kompletně předvedeno a prezentováno, včetně ceny.
Cena za komplet je stanovená.

Parametry pozemku

Cena
Cena na vyžádání Spočítat hypotéku
Poznámka k ceně
Cena v RK
Aktualizováno
8. 5. 2026
Adresa
Kostelní, České Budějovice
ID
9856
Lokalita objektu
Klidná část obce
Plocha pozemku
241 m2
Elektřina
230V, 400V
Odpad
Veřejná kanalizace
Komunikace
Asfaltová
Telekomunikace
Telefon, Internet, Kabelová televize, Ostatní
Doprava
Vlak, Dálnice, Silnice, MHD, Autobus
Voda
Místní zdroj vody, Vodovod, Studna
Převod do OV

Kontaktovat makléře

Realitní kancelář

Logo GEPARD REALITY/Boars

GEPARD REALITY/Boars

Husova tř. 640/33, České Budějovice

Chystáte se prodat nemovitost?
Pomůžeme Vám!

Máte zájem o tento pozemek?

Tímto, v souladu s nařízením Evropského parlamentu a Rady (EU) 2016/679, v platném znění, prohlašuji, že mi je alespoň 16 let a uděluji tak svůj souhlas se zpracováním zadaných údajů (jméno, telefon, e-mail, ip adresa) společnosti B3 Technology, s.r.o., IČ: 07330600, se sídlem Novostavby 126/23, 435 11 Lom (správce dat), za účelem předání dotazu z tohoto formuláře Vámi vybranému inzerentovi a zpětného kontaktování mé osoby. Osobní údaje bude správce zpracovávat manuálně i automaticky přímo prostřednictvím svých zaměstnanců. Informace předané tímto formulářem budou uloženy v databázi správce maximálně po dobu 10 let. Odvolání souhlasu s uložením a zpracováním poskytnutých dat lze e-mailem na info@videobydleni.cz. V případě podezření na neoprávněné použití Vámi poskytnutých údajů máte právo předat podnět k šetření Úřadu pro ochranu osobních údajů. Více informací
Chystáte se prodat nemovitost?
Pomůžeme Vám!
Theleadway banner

Inzerát si prohlédlo 30 lidí

Prodejce

Ing. Jiří Michal

Ing. Jiří Michal

Hlídací pes

Chcete dostávat emailem podobné nabídky prodeje pozemků pro bydlení v Českých Budějovicích?

Podobné nemovitosti


Nevyhovuje Vám typ pozemku? Podívejte se na jiné kategorie pozemků.


Vybrané články z našeho blogu