Prodej ubytování, Benešov nad Černou, 295 m2

Benešov nad Černou

Cena na vyžádání /za nemovitost Získejte výhodnou HYPOTÉKU

(cena u makléře)

Prémioví partneři v Benešově nad Černou

Informace k nemovitosti

Výjimečná, luxusní usedlost přímo na břehu říčky Černé v Benešově nad Černou v Novohradských horách vás uchvátí stejně, jako uchvátila nás. Rozlehlá usedlost s penzionem o užitné ploše téměř 300 m2 se nachází na překrásném pozemku o výměře 3066 m2. Celou usedlost lemuje řeka Černá, která dodává místu ojedinělou atmosféru a energii. Na udržované velkorysé zahradě je umístěn vyhřívaný bazén 6x3 m, venkovní posezení pod pergolou s kuchyní, grilem a udírnou a nespočet romantických zákoutí přímo na břehu řeky.

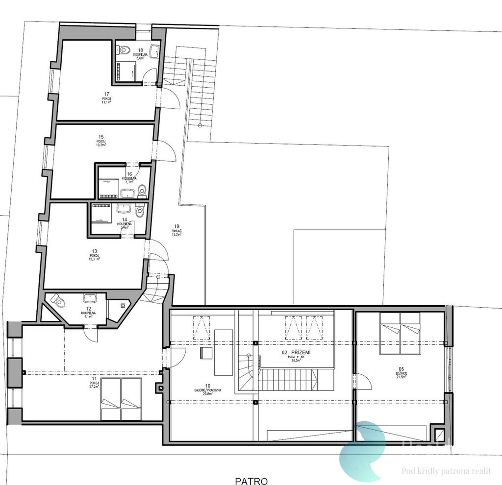
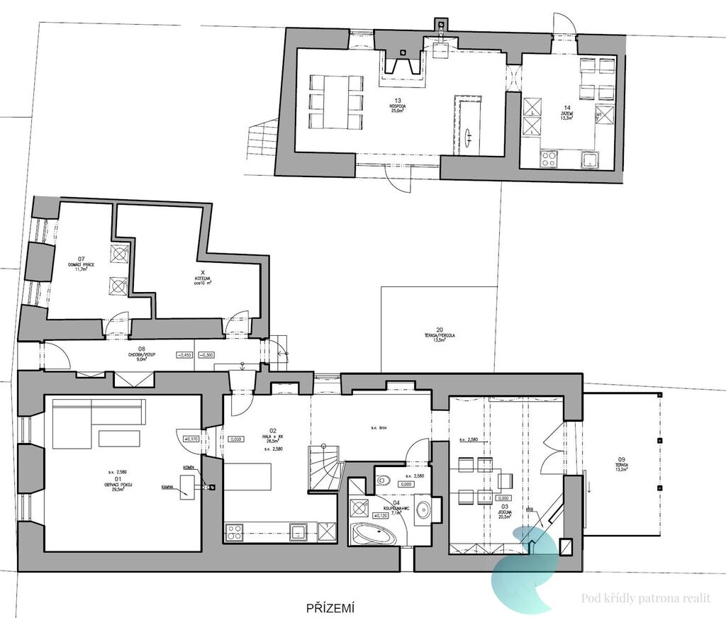
Usedlost se skládá ze 2 částí, které mohou fungovat společně i odděleně. První částí je luxusní dům (197 m2) pro velkou rodinu, určený k rekreaci i trvalému bydlení, druhá část je pak penzion (97,5 m2), se stylovou společenskou místností s krbem, výčepem a kuchyňkou, který nabízí 7 lůžek ve 3 pokojích, každý s vlastním sociálním zařízením. Ubytovaným hostům je k dispozici také venkovní posezení pod pergolou s grilem a 4 parkovací místa. Ubytování je dlouhodobě provozováno současnými majiteli a stalo se vyhledávaným místem pro velké množství návštěvníků Novohradských hor, známé jako "Ubytování u říčky".

Soukromá část má užitnou plochu 197 m2, která je rozložena do 2 pater. V prvním patře se nachází technické zázemí, kotelna, velký obývací pokoj s kamny, kuchyně s novou kuchyňskou linkou, jídelna s krbem a vstupem na terasu a zahradu a koupelna s vanou a toaletou. Ve druhém patře vás zaujme galerie s odhalenými původními trámy, kde je umístěna pracovna a odpočinková zóna, dále se zde nachází 2 velké ložnice a koupelna se sprchovým koutem a toaletou. Jedna z ložnic má průchod na ochoz s posezením, na kterém se nachází pokoje patřící k penzionu. Dům je tak možné propojit s ubytováním a vytvořit tak zázemí pro opravdu velkou společnost.

Celá usedlost procházela v letech 2004 - 2019 kompletní a rozsáhlou rekonstrukcí, která z domu vytvořila opravdový skvost. Kamkoliv se podíváte, vaše oči i srdce budou jásat, protože kvalita a skvělý vkus jsou zde vidět v každém kousku tohoto jedinečného místa. Určitě vás potěší výjimečná kvalita rekonstrukce - veškeré rozvody (topení v mědi), dřevěná okna, podlahy (keramická dlažba, dřevěné a plovoucí podlahy), dřevěné dveře, střecha z pálených tašek. Výhodou je i zateplení domu (vata a chytrá pěna).

Objekt je vytápěn kotlem na tuhá paliva (dřevo, brikety, uhlí) se zásobníkem a možností regulace teploty v jednotlivých částech domu. V některých místnostech jsou zároveň kamna či krb, které slouží k lokálnímu vytápění a vytvoření nádherné atmosféry. Dům je napojen na obecní kanalizaci i vodovod.

Luxusní charakter usedlosti, poskytující vysoký standard a pohodlí, spolu s výjimečným umístěním na břehu řeky na velkolepém pozemku, přináší neopakovatelnou příležitost zamilovat se do místa pro život i podnikání, které vás osloví svým geniem loci. Přijďte se přesvědčit na vlastní oči.

Údaje jsou pouze informativní. Při více zájemcích bude prodej dle nejlepší nabídky. Majitel si vyhrazuje volbu kupujícího.

Parametry nemovitosti

Cena
Cena na vyžádání Spočítat hypotéku
Poznámka k ceně
cena u makléře
Aktualizováno
21. 10. 2025
Adresa
Benešov nad Černou
ID
1654
Stavba
Smíšená
Stav objektu
Po rekonstrukci
Vybaveno
Částečně
Typ objektu
Patrový
Užitná plocha
295 m2
Zastavěná plocha
429 m2
Plocha pozemku
3066 m2
Třída energetické náročnosti
G - Mimořádně nehospodárná
Odpad
Veřejná kanalizace
Topení
Lokální tuhá paliva, Ústřední tuhá paliva, Podlahové
Komunikace
Asfaltová
Telekomunikace
Internet
Doprava
Silnice, Autobus
Voda
Vodovod
Převod do OV

Kontaktovat makléře

Realitní kancelář

Logo REALDOMUS s.r.o.

REALDOMUS s.r.o.

Radniční 133/1, České Budějovice

Chystáte se prodat nemovitost?
Pomůžeme Vám!

Máte zájem o tuto nemovistost?

Tímto, v souladu s nařízením Evropského parlamentu a Rady (EU) 2016/679, v platném znění, prohlašuji, že mi je alespoň 16 let a uděluji tak svůj souhlas se zpracováním zadaných údajů (jméno, telefon, e-mail, ip adresa) společnosti B3 Technology, s.r.o., IČ: 07330600, se sídlem Novostavby 126/23, 435 11 Lom (správce dat), za účelem předání dotazu z tohoto formuláře Vámi vybranému inzerentovi a zpětného kontaktování mé osoby. Osobní údaje bude správce zpracovávat manuálně i automaticky přímo prostřednictvím svých zaměstnanců. Informace předané tímto formulářem budou uloženy v databázi správce maximálně po dobu 10 let. Odvolání souhlasu s uložením a zpracováním poskytnutých dat lze e-mailem na info@videobydleni.cz. V případě podezření na neoprávněné použití Vámi poskytnutých údajů máte právo předat podnět k šetření Úřadu pro ochranu osobních údajů. Více informací
Chystáte se prodat nemovitost?
Pomůžeme Vám!

Inzerát si prohlédlo 7 lidí

Prodejce

Mgr. Lenka Muselová

Mgr. Lenka Muselová

Hlídací pes

Chcete dostávat emailem podobné nabídky prodeje ubytování v Benešově nad Černou?

Podobné nemovitosti


Nevyhovuje Vám typ nemovitosti? Podívejte se na jiné kategorie komerčních.


Vybrané články z našeho blogu