Prodej bytu 2+kk, Vimperk - Vimperk II, Jirchářská, 54 m2 (ID: 3583259)

Jirchářská, Vimperk II

2 691 000 Kč /za nemovitost HYPOTÉKA od 12 027 Kč /za měsíc
Prémioví partneři v Vimperku

Informace k bytu

Jirchařská ul. - Vimperk - prodej bytu 1+1 54m2 (byt B1) IHNED VOLNÝ!
Nabízíme na prodej nově zrekonstruovaný byt 1+1 ve zvýšeném přízemí o velikosti 53,9m2.
Jedná se o první byt v projektu bytů Volyňka, který vzniká rekonstrukcí objektu bývalých tiskáren ve Vimperku v těsné blízkosti řeky Volyňky.
Byt je velmi specifický, stejně jako budou ostatní byty, což je dáno historickou budovou a moderní vestavbou. Byt je těsně před dokončením.
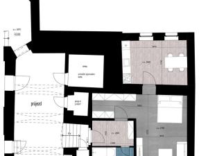
Dispozice bytu:
za vchodovými dveřmi je předsíň, kde je vpravo vstup do koupelny s vanou a WC, vpravo je vstup do chodby s možností vestavby skříně a dále do obývacího pokoje, vlevo z obývacího pokoje je vstup do kuchyně, kde je příprava na kuchyňskou linku a francouzské okno, kterým se dá vyjít na malý dvorek.
Tento projekt je unikátní svou přestavbou areálu bývalých tiskáren s dlouhou tradicí a objet bude postupně rekonstruován na rezidenční bydlení s více než 60ti byty s dispozicí od 1+kk po patrové mezonety 3+kk.
Byt ve variantě premium je cena bytu 2.691.000,--Kč /při platbě najednou/, ve variantě standard je cena 3.234.000,--Kč/při platbě na části/.

V případě zájmu o prohlídku volejte makléře nabídky.

Z historie budovy vybíráme:
Vimperk voněl řadu let tiskařskou černí a za tu dobu se odtud rozběhly do světa tisíce a milióny knih. Knihy velkých autorů i malých pisálků. Po Plzni byl Vimperk druhým českým městem, ve kterém se již v 15. století tiskly knihy. V roce 1484 tu pasovský tiskař Johann Alacrano vytiskl tři knihy – m.j. první český tištěný kalendář pro kalendářní rok 1485.

Na toto navázal až v 19. století Johann Steinbrener (1835-1909), který si po roce 1855 otevřel ve Vimperku knihařskou dílnu. Odbyt tisků byl do velké části Evropy, ale i do zámoří. Rozvoj firmy pokračoval i po smrti zakladatele a do roku 1930 vytiskla vimperská tiskárna přes 34 milionů kalendářů a přes 96 milionů modlitebních knih ve více než dvaceti jazycích. Kromě těchto druhů se tiskly knihy i pro mládež a další.

Parametry bytu

Cena
2 691 000 Kč /za nemovitost Spočítat hypotéku
Aktualizováno
16. 9. 2025
Adresa
Jirchářská, Vimperk II
ID
261-NP00875
Stavba
Smíšená
Stav objektu
Velmi dobrý
Patro
1. z 2
Vybaveno
Ne
Lokalita objektu
Centrum obce
Vlastnictví
Osobní
Užitná plocha
54 m2
Podlahová plocha
54 m2
Třída energetické náročnosti
G - Mimořádně nehospodárná
Plyn
Plynovod
Odpad
Veřejná kanalizace

Kontaktovat makléře

Realitní kancelář

RE/MAX Optimal

třída Národní svobody 181/26, Písek

Chystáte se prodat nemovitost?
Pomůžeme Vám!

Máte zájem o tento byt?

Tímto, v souladu s nařízením Evropského parlamentu a Rady (EU) 2016/679, v platném znění, prohlašuji, že mi je alespoň 16 let a uděluji tak svůj souhlas se zpracováním zadaných údajů (jméno, telefon, e-mail, ip adresa) společnosti B3 Technology, s.r.o., IČ: 07330600, se sídlem Novostavby 126/23, 435 11 Lom (správce dat), za účelem předání dotazu z tohoto formuláře Vámi vybranému inzerentovi a zpětného kontaktování mé osoby. Osobní údaje bude správce zpracovávat manuálně i automaticky přímo prostřednictvím svých zaměstnanců. Informace předané tímto formulářem budou uloženy v databázi správce maximálně po dobu 10 let. Odvolání souhlasu s uložením a zpracováním poskytnutých dat lze e-mailem na info@videobydleni.cz. V případě podezření na neoprávněné použití Vámi poskytnutých údajů máte právo předat podnět k šetření Úřadu pro ochranu osobních údajů. Více informací
Chystáte se prodat nemovitost?
Pomůžeme Vám!

Inzerát si prohlédlo 48 lidí

Prodejce

Aleš Kudrlička

Aleš Kudrlička

Hlídací pes

Chcete dostávat emailem podobné nabídky prodeje bytů 2+kk v Vimperku?

Podobné nemovitosti


Nevyhovuje Vám typ bytu? Podívejte se na jiné kategorie bytů.


Vybrané články z našeho blogu