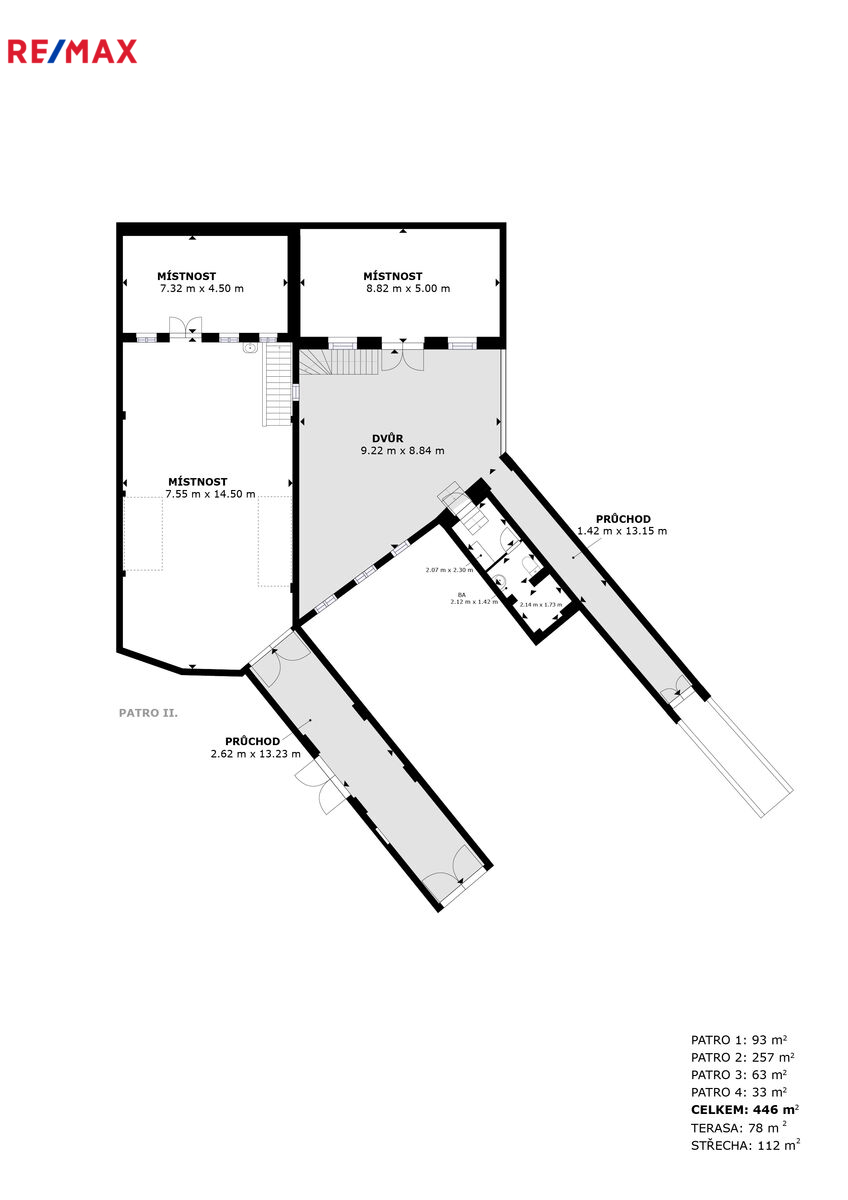
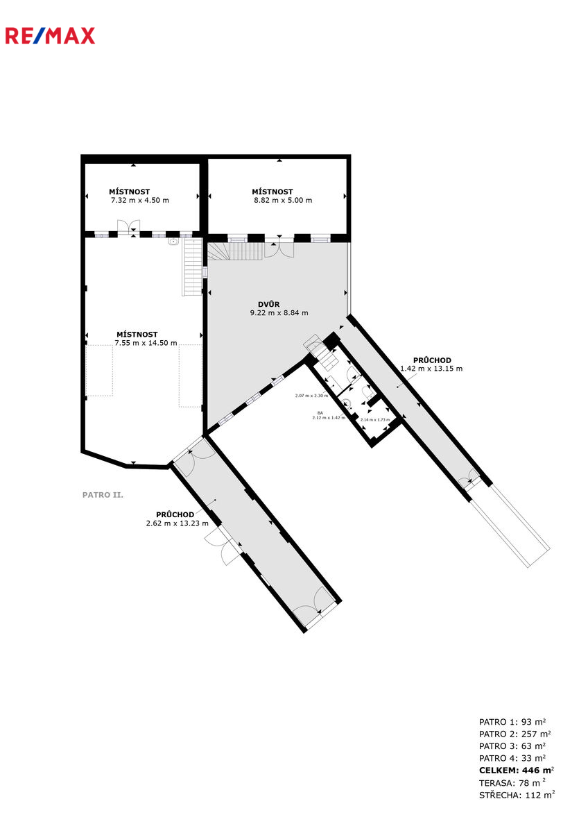
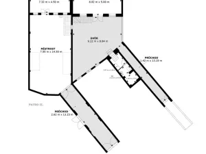
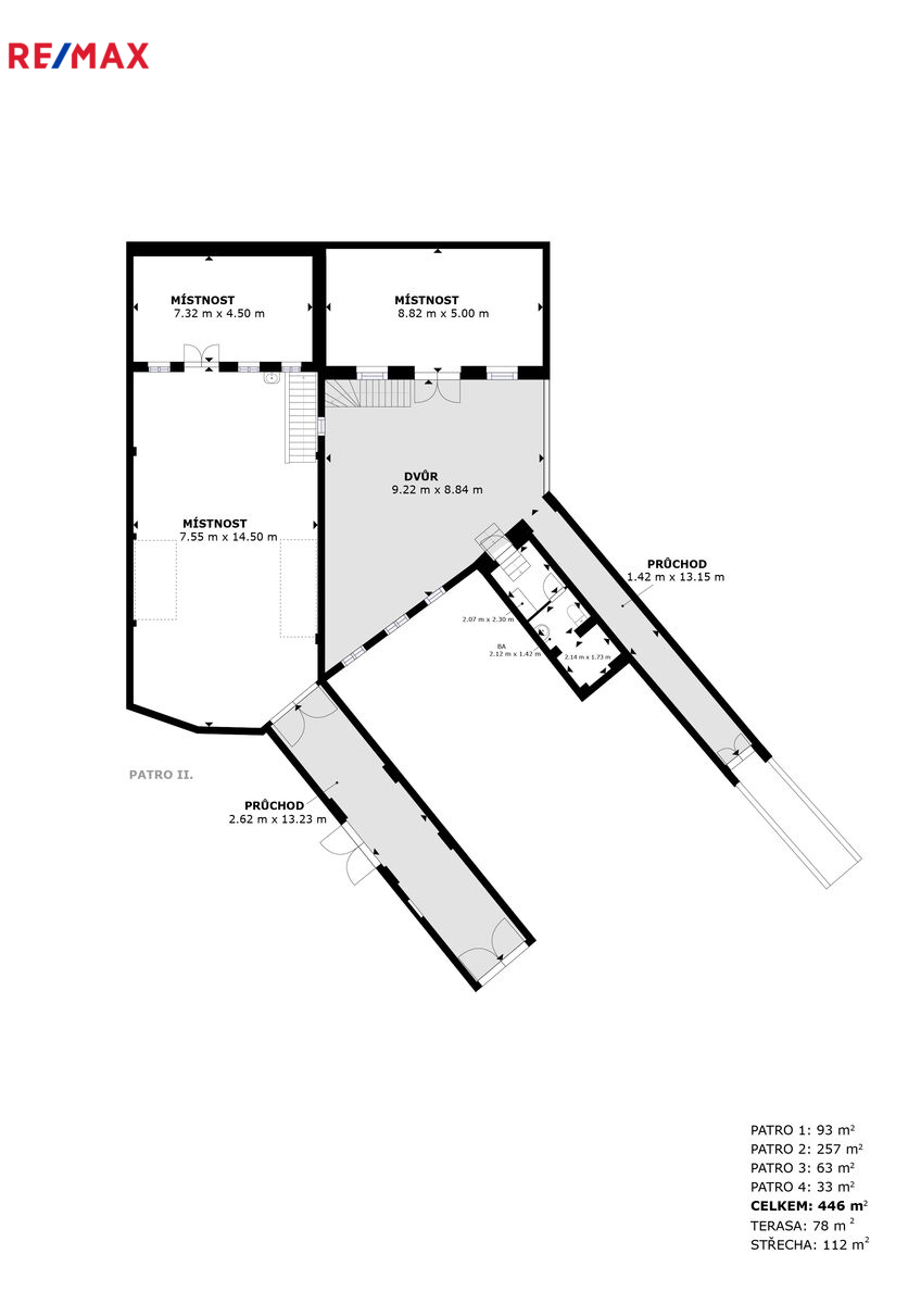
Prodej obchodního prostoru, Karlovy Vary, Svahová, 446 m2

Svahová, Karlovy Vary

4 399 000 Kč /za nemovitost HYPOTÉKA od 19 661 Kč /za měsíc
Prémioví partneři v Karlových Varech

Informace k nemovitosti

Investiční příležitost v centru Karlových Varů – vysoká průchodnost, strategická lokalita!

Hledáte komerční prostory na exkluzivním místě s vysokým provozem? Nabízíme k prodeji 446 m² v samém srdci Karlových Varů, v oblasti s neustálým tokem turistů i místních obyvatel. Díky své poloze v těsné blízkosti lázeňské zóny, hotelů a obchodních center je tato nemovitost ideální volbou pro podnikání i dlouhodobou investici.

Tento prostor lze využít jako obchodní jednotku, restauraci, showroom, kancelářské prostory nebo loftové bydlení. Součástí objektu jsou také dvě menší bytové jednotky, které lze využít k pronájmu nebo propojit do jednoho většího apartmánu.

Proč investovat právě zde?
✔ TOP lokalita – centrum Karlových Varů, lázeňská čtvrť, blízko hlavních turistických tras
✔ Vysoká frekvence návštěvníků – ideální pro podnikání závislé na zákaznickém provozu
✔ Možnost přizpůsobení – prostor je před rekonstrukcí, což umožňuje vlastní úpravy podle podnikatelského záměru
✔ Velký investiční potenciál – vhodné pro dlouhodobý pronájem nebo rozvoj vlastního podnikání
✔ Dostupnost služeb – výborná občanská vybavenost, snadná dopravní dostupnost

Tato nemovitost nabízí unikátní kombinaci lokality, flexibility a investičního potenciálu. Nezmeškejte možnost vlastnit prostor v jednom z nejnavštěvovanějších měst České republiky!

Pro více informací a prohlídku nás neváhejte kontaktovat Prodávající si vyhrazuje právo vybrat kupujícího na základě jím zvolených kritérií.

Parametry nemovitosti

Cena
4 399 000 Kč /za nemovitost Spočítat hypotéku
Aktualizováno
30. 3. 2026
Adresa
Svahová, Karlovy Vary
ID
294-NP01271
Stavba
Smíšená
Stav objektu
Před rekonstrukcí
Vybaveno
Ne
Typ objektu
Přízemní
Lokalita objektu
Centrum obce
Užitná plocha
446 m2
Zastavěná plocha
636 m2
Třída energetické náročnosti
G - Mimořádně nehospodárná
Plyn
Plynovod
Odpad
Veřejná kanalizace
Komunikace
Asfaltová
Doprava
Silnice, MHD, Autobus
Voda
Vodovod
Převod do OV

Kontaktovat makléře

Realitní kancelář

Logo RE/MAX Glorion

RE/MAX Glorion

Krymská 1056/5, Karlovy Vary

Chystáte se prodat nemovitost?
Pomůžeme Vám!

Máte zájem o tuto nemovistost?

Tímto, v souladu s nařízením Evropského parlamentu a Rady (EU) 2016/679, v platném znění, prohlašuji, že mi je alespoň 16 let a uděluji tak svůj souhlas se zpracováním zadaných údajů (jméno, telefon, e-mail, ip adresa) společnosti B3 Technology, s.r.o., IČ: 07330600, se sídlem Novostavby 126/23, 435 11 Lom (správce dat), za účelem předání dotazu z tohoto formuláře Vámi vybranému inzerentovi a zpětného kontaktování mé osoby. Osobní údaje bude správce zpracovávat manuálně i automaticky přímo prostřednictvím svých zaměstnanců. Informace předané tímto formulářem budou uloženy v databázi správce maximálně po dobu 10 let. Odvolání souhlasu s uložením a zpracováním poskytnutých dat lze e-mailem na info@videobydleni.cz. V případě podezření na neoprávněné použití Vámi poskytnutých údajů máte právo předat podnět k šetření Úřadu pro ochranu osobních údajů. Více informací
Chystáte se prodat nemovitost?
Pomůžeme Vám!

Inzerát si prohlédlo 34 lidí

Prodejce

Alexandr Mizjuk

Alexandr Mizjuk

Hlídací pes

Chcete dostávat emailem podobné nabídky prodeje obchodních prostor v Karlových Varech?

Podobné nemovitosti


Nevyhovuje Vám typ nemovitosti? Podívejte se na jiné kategorie komerčních.


Vybrané články z našeho blogu