Pronájem bytu 3+kk, Praha - Kamýk, Cholupická, 109 m2

Cholupická, Kamýk - Praha 12

33 500 Kč /za měsíc Získejte výhodnou HYPOTÉKU

(vratná jistota, zálohy 5.830,- Kč, poplatek za podnájem, garážové stání a sklep v ceně)

Prémioví partneři v Praze 4

Stěhovací služby

Výkup a prodej starého nábytku

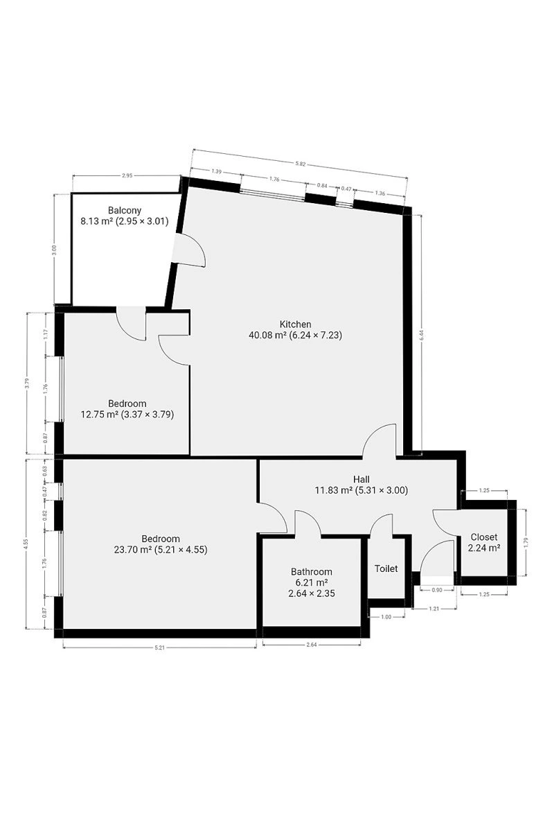
Informace k bytu

Exkluzivně nabízíme prostorný moderní byt dispozice 3+kk o výměře 109 m2 připravený k okamžitému nastěhování, ideální k vytvoření domova pro až pětičlennou rodinu v klidné lokalitě pražského Kamýku.

Bytu dominuje obrovská hlavní místnost o výměře přes 40 m2 s moderní kuchyní s nadstandardními vestavěnými spotřebiči, která je jako stvořená pro společně trávený čas s rodinou i přáteli. Z místnosti je rovněž přístup na prostorný krytý rohový balkon o ploše 8 m2.

Prostorná hlavní ložnice o výměře téměř 24 m2 je vybavena velkorysými skříněmi s posuvnými dveřmi.

Z druhé ložnice o výměře bezmála 13 m2 je pak rovněž přístup na zmíněný rohový balkón.

Vkusně řešená prostorná koupelna s vanou se sprchovou zástěnou, toaleta je samostatná.

V hale jsou rozměrné policové skříně, další úložné prostory se nalézají v oddělené komoře.

Celý byt se nese v moderním světlém duchu sázejícím na kvalitní materiály a dává i větší rodině dostatečný prostor k vytvoření útulného domova podle vlastních představ.

Byt se nachází v novějším bytovém domě s výtahem a podzemními garážemi v oblasti s dobrou dopravní obslužností. V pěší vzdálenosti je řada obchodů, škol a sportovišť, ale i les pro dlouhé procházky a vyjížďky na kole. V oblasti rovněž sídlí řada sportovních klubů a zájmových sdružení.

V ceně je již obsaženo podzemní garážové stání a nadstandardní úložný prostor o výměře 11 m2.

K dispozici solidním zájemcům hledajícím dlouhodobé kvalitní bydlení k nastěhování ihned.

Individuální prohlídky možné po domluvě kdykoliv včetně pozdních večerních hodin a víkendů.

Byt pronajímá Ideální nájemce - služba, se kterou budete bydlet bezstarostně a za férových podmínek. Když se něco přihodí, k dispozici jsou správci, kteří s Vámi vše vyřeší. Pomůžeme s veškerou administrativou, s nastavením plateb a zajistíme Vám speciální pojištění. Pojďte bydlet s námi!

Parametry bytu

Cena
33 500 Kč /za měsíc
Poznámka k ceně
vratná jistota, zálohy 5.830,- Kč, poplatek za podnájem, garážové stání a sklep v ceně
Aktualizováno
19. 12. 2025
Adresa
Cholupická, Kamýk - Praha 12
ID
N5317
Stavba
Cihlová
Stav objektu
Novostavba
Patro
5. z 9
Vybaveno
Částečně
Typ objektu
Patrový
Lokalita objektu
Klidná část obce
Vlastnictví
Osobní
Užitná plocha
109 m2
Podlahová plocha
109 m2
Elektřina
230V
Topení
Ústřední dálkové
Balkon
Sklep
Výtah
Parkování

Kontaktovat makléře

Máte zájem o tento byt?

Tímto, v souladu s nařízením Evropského parlamentu a Rady (EU) 2016/679, v platném znění, prohlašuji, že mi je alespoň 16 let a uděluji tak svůj souhlas se zpracováním zadaných údajů (jméno, telefon, e-mail, ip adresa) společnosti B3 Technology, s.r.o., IČ: 07330600, se sídlem Novostavby 126/23, 435 11 Lom (správce dat), za účelem předání dotazu z tohoto formuláře Vámi vybranému inzerentovi a zpětného kontaktování mé osoby. Osobní údaje bude správce zpracovávat manuálně i automaticky přímo prostřednictvím svých zaměstnanců. Informace předané tímto formulářem budou uloženy v databázi správce maximálně po dobu 10 let. Odvolání souhlasu s uložením a zpracováním poskytnutých dat lze e-mailem na info@videobydleni.cz. V případě podezření na neoprávněné použití Vámi poskytnutých údajů máte právo předat podnět k šetření Úřadu pro ochranu osobních údajů. Více informací
Chystáte se prodat nemovitost?
Pomůžeme Vám!

Inzerát si prohlédlo 10 lidí

Prodejce

Miloslava Kačerová

Miloslava Kačerová

Hlídací pes

Chcete dostávat emailem podobné nabídky pronájmu bytů 3+kk v Praze 4?

Podobné nemovitosti


Nevyhovuje Vám typ bytu? Podívejte se na jiné kategorie bytů.


Vybrané články z našeho blogu