Prodej bytu 3+kk, Frymburk, 75 m2 (ID: 3659837)

Frymburk, okres jihočeský kraj

6 250 000 Kč /za nemovitost HYPOTÉKA od 27 934 Kč /za měsíc
Prémioví partneři v Frymburku

Výkup a prodej starého nábytku

Informace k bytu

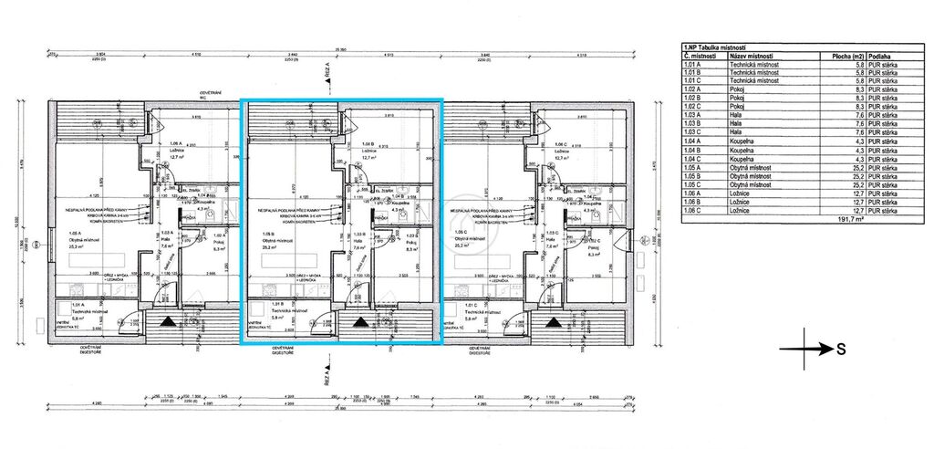
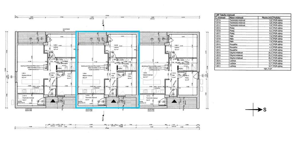
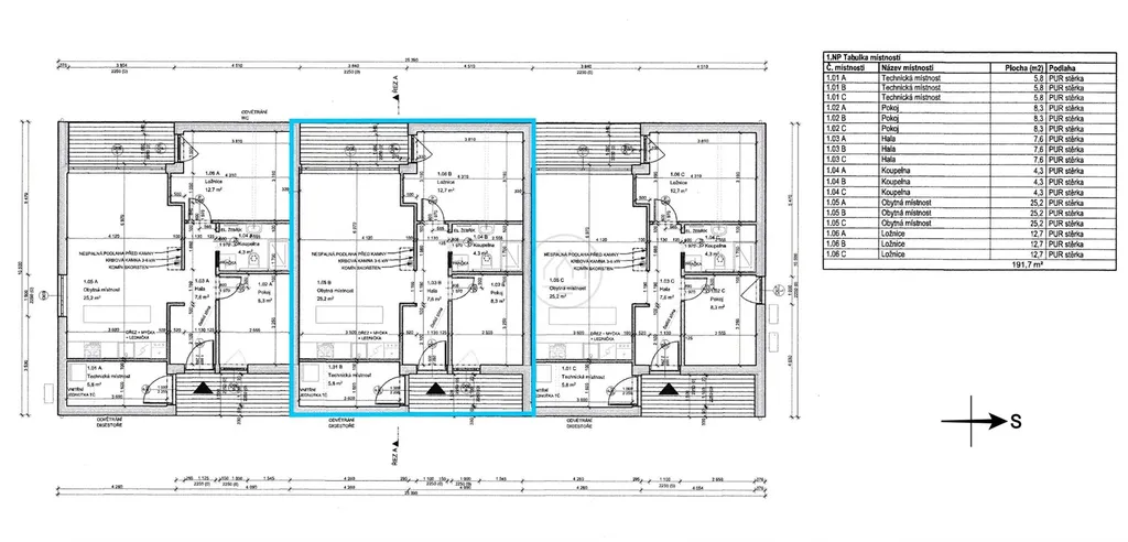
Nabízíme k prodeji moderní a promyšleně navržený apartmán 3+kk s lodžií, terasou a zahradou, který je součástí novostavby se třemi bytovými jednotkami ve vyhledávané lokalitě Frymburk, přímo u Lipenské přehrady.

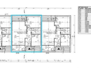
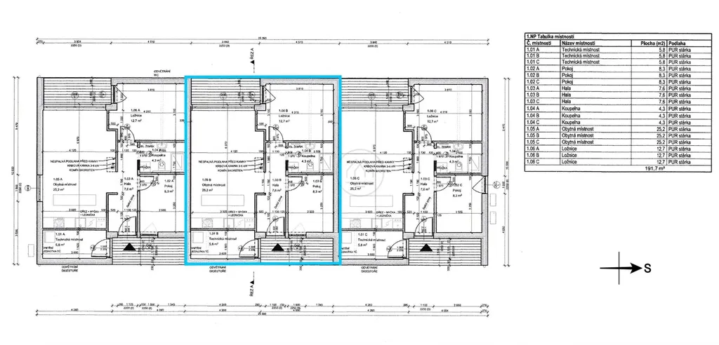
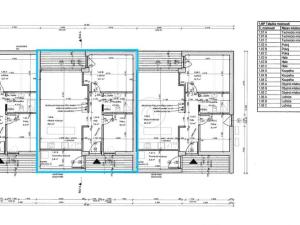
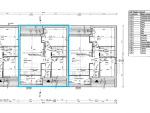
Jedná se o jednotku s dispozičně vhodně navrženým půdorysem, kterému dominuje prostorný obývací pokoj spojený s kuchyní, jídelnou a vstupem na terasu. Dále jsou součástí dvě ložnice, koupelna s WC a technická místnost s možností uložení zavazadel, kol atd. Cena zahrnuje podlahové krytiny, dveře, sanitární vybavení a dvě parkovací stání. Výhodou jsou portálová okna, krytá lodžie a možnost využití zahrádky o rozloze dalších 30 m². Apartmán je zkrátka navržený pro pohodlnou rekreaci Vaší rodiny a blízkých.

Apartmán je součástí jednopodlažní nepodsklepené dřevostavby se sedlovou střechou a třemi bytovými jednotkami. Objekt je zateplený tepelnou izolací a fasádním polystyrenem dle norem ČSN a minerální omítkou v kombinaci se Sibiřském modřínem. Kolaudace leden 2023. Vytápění bytu je řešeno vlastním elektrokotlem PROTHERM 6 kW napojeným na podlahové vytápění, dále jsou provedeny veškeré rozvody pro případné vytápění tepelným čerpadlem. V obývacím pokoji je připravený komín na napojení krbových kamen. K jednotce patří podíl na společných prostorech zahrady, která má plochu 571 m². K prodeji je také vedlejší jednotka "C".

V okolí Frymburku najdete vše, co potřebujete k bydlení a rekreaci, obchody, kavárny, cyklostezky, Wellness centrum, pláž a další. Poloha největší vodní plochy v srdci Šumavy láká v každém ročním období.

• prostorný obývací pokoj s jídelním prostorem,
• přímý vstup na terasu a zahrádku
• dvě ložnice
• dvě parkovací stání
• technická místnost vhodná pro úložné prostory (kola, zavazadla apod.)

Zarezervujte si nové rodinné sídlo v top lokalitě u vody v krásné přírodě, v podobě investice s pravidelným výnosem a dlouhodobým zhodnocením, kdy turistický ruch na Lipně roste. Exkluzivně nabízíme celoroční údržbu a správu pronájmu nové nemovitosti v období Vaší nepřítomnosti.

Kontaktujte specialistu na investice v lipenské lokalitě pro více informací, popřípadě se zastavte na nezávaznou prohlídku.

Parametry bytu

Cena
6 250 000 Kč /za nemovitost Spočítat hypotéku
Aktualizováno
13. 12. 2025
Adresa
Frymburk, okres jihočeský kraj
ID
134
Stavba
Dřevěná
Stav objektu
Novostavba
Patro
1.
Vybaveno
Částečně
Vlastnictví
Osobní
Užitná plocha
75 m2
Podlahová plocha
75 m2
Třída energetické náročnosti
B - Velmi úsporná
Lodžie
Výtah
Parkování

Kontaktovat makléře

Realitní kancelář

Logo Lipno Real s.r.o.

Lipno Real s.r.o.

Lipno nad Vltavou 89, Lipno nad Vltavou

Chystáte se prodat nemovitost?
Pomůžeme Vám!

Máte zájem o tento byt?

Tímto, v souladu s nařízením Evropského parlamentu a Rady (EU) 2016/679, v platném znění, prohlašuji, že mi je alespoň 16 let a uděluji tak svůj souhlas se zpracováním zadaných údajů (jméno, telefon, e-mail, ip adresa) společnosti B3 Technology, s.r.o., IČ: 07330600, se sídlem Novostavby 126/23, 435 11 Lom (správce dat), za účelem předání dotazu z tohoto formuláře Vámi vybranému inzerentovi a zpětného kontaktování mé osoby. Osobní údaje bude správce zpracovávat manuálně i automaticky přímo prostřednictvím svých zaměstnanců. Informace předané tímto formulářem budou uloženy v databázi správce maximálně po dobu 10 let. Odvolání souhlasu s uložením a zpracováním poskytnutých dat lze e-mailem na info@videobydleni.cz. V případě podezření na neoprávněné použití Vámi poskytnutých údajů máte právo předat podnět k šetření Úřadu pro ochranu osobních údajů. Více informací
Chystáte se prodat nemovitost?
Pomůžeme Vám!

Inzerát si prohlédlo 73 lidí

Prodejce

Ing. Marek Ertl

Ing. Marek Ertl

Hlídací pes

Chcete dostávat emailem podobné nabídky prodeje bytů 3+kk v Frymburku (okr. Český Krumlov)?

Top nabídky

Podobné nemovitosti


Nevyhovuje Vám typ bytu? Podívejte se na jiné kategorie bytů.


Vybrané články z našeho blogu