Prodej rodinného domu, Pec, 378 m2 (ID: 3663521)

Pec

3 985 000 Kč /za nemovitost HYPOTÉKA od 17 811 Kč /za měsíc
Prémioví partneři v Peci

Podlahy

Stěhovací služby

Informace k domu

Nabízíme k prodeji rodinný dům s velkým prostorem pro život a bezpečnou rodinnou atmosférou v obci Pec, okres Domažlice. Tento rodinný dům se nachází na krásném místě pod Čerchovem, jen kousek od lesa, což jej činí ideálním místem pro rodinu s dětmi. Dům disponuje velkou zahradou s pergolou a kamenným krbem, která poskytuje dětem bezpečné místo k hraní a rodičům prostor k relaxaci.

Interiér domu nabízí velkou kuchyni, kde se pohodlně uvaří pro celou rodinu, a v obývacím pokoji můžete ocenit kachlová kamna, která vytvářejí útulnou atmosféru. Celkem se zde nachází 5 ložnic, což poskytuje dostatek prostoru pro celou rodinu. Dům obsahuje 2 samostatné toalety a 1 koupelnu, což usnadňuje každodenní rutinu s dětmi.

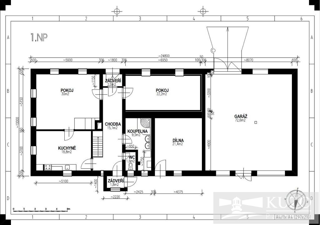
Přízemí - Obývací pokoj, Kuchyně, Ložnice, Koupelna, Toaleta, Chodba, Předsíň 2x
1. Patro - Ložnice 3x, Předpokoj - chodba, Toaleta, Vstup do půdních prostor
2. Patro/podkroví - Ložnice 1x, Předpokoj - chodba


K dispozici je také půda a sklep, které poskytují dostatek úložného prostoru. Skvělé místo pro rodiny s dětmi. Vybavení domu je skvěle přizpůsobeno potřebám rodiny, včetně velké zahrady, herny a dětských pokojů.

Celková zastavěná plocha domu činí 241m², užitná plocha 200m² a plocha parcely 886m². Dům je patrový se třemi podlažími, stav objektu je dobrý. K dispozici je také plocha sklepů o velikosti 18.4m². Odpad je řešen septikem a jímkou, přívod vody zajišťuje dálkový vodovod, elektřina je 230 V a 400V. Topení je zajištěno lokálními tuhými palivy a ústředním plynovým topením. Přístup k nemovitosti je po asfaltové vozovce, s dostupností silnice a autobusu.

V případě zájmu o prohlídku nás neváhejte kontaktovat.

Parametry domu

Cena
3 985 000 Kč /za nemovitost Spočítat hypotéku
Aktualizováno
15. 9. 2025
Adresa
Pec
ID
21238
Stavba
Smíšená
Stav objektu
Dobrý
Vybaveno
Ne
Typ objektu
Patrový
Druh objektu
Samostatný
Lokalita objektu
Klidná část obce
Užitná plocha
200 m2
Zastavěná plocha
241 m2
Podlahová plocha
378 m2
Plocha pozemku
886 m2
Plocha zahrady
645 m2
Třída energetické náročnosti
G - Mimořádně nehospodárná
Ukazatel energetické náročnosti
341 kWh/m2 za rok
Elektřina
230V, 400V
Odpad
Septik, Jímka
Topení
Lokální tuhá paliva, Ústřední plynové
Komunikace
Asfaltová
Doprava
Silnice, Autobus
Voda
Vodovod
Sklep
Převod do OV

Kontaktovat makléře

Realitní kancelář

Logo KUZO Partners s.r.o.

KUZO Partners s.r.o.

Olbrachtova 599/8, Mladá Boleslav II

Chystáte se prodat nemovitost?
Pomůžeme Vám!

Máte zájem o tento dům?

Tímto, v souladu s nařízením Evropského parlamentu a Rady (EU) 2016/679, v platném znění, prohlašuji, že mi je alespoň 16 let a uděluji tak svůj souhlas se zpracováním zadaných údajů (jméno, telefon, e-mail, ip adresa) společnosti B3 Technology, s.r.o., IČ: 07330600, se sídlem Novostavby 126/23, 435 11 Lom (správce dat), za účelem předání dotazu z tohoto formuláře Vámi vybranému inzerentovi a zpětného kontaktování mé osoby. Osobní údaje bude správce zpracovávat manuálně i automaticky přímo prostřednictvím svých zaměstnanců. Informace předané tímto formulářem budou uloženy v databázi správce maximálně po dobu 10 let. Odvolání souhlasu s uložením a zpracováním poskytnutých dat lze e-mailem na info@videobydleni.cz. V případě podezření na neoprávněné použití Vámi poskytnutých údajů máte právo předat podnět k šetření Úřadu pro ochranu osobních údajů. Více informací
Chystáte se prodat nemovitost?
Pomůžeme Vám!

Inzerát si prohlédlo 185 lidí

Prodejce

Libor Hula

Libor Hula

Hlídací pes

Chcete dostávat emailem podobné nabídky prodeje rodinných domů v Peci (okr. Domažlice)?

Podobné nemovitosti


Nevyhovuje Vám typ domu? Podívejte se na jiné kategorie domů.


Vybrané články z našeho blogu