Ruská, Dubí
(Cena včetně právního servisu, poplatků KÚ a provize RK.)
Bytový dům o sedmi bytových jednotkách v centru lázeňského města Dubí v sousedství radnice. Poloha domu umožňuje bezproblémový přístup k obchodům a službám, v pěším dosahu školy, zdravotnická zařízení, okresní město Teplice v dosahu MHD, zastávka přímo před domem.
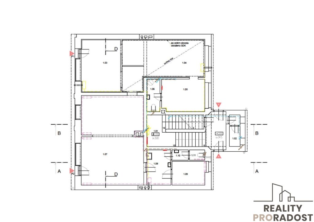
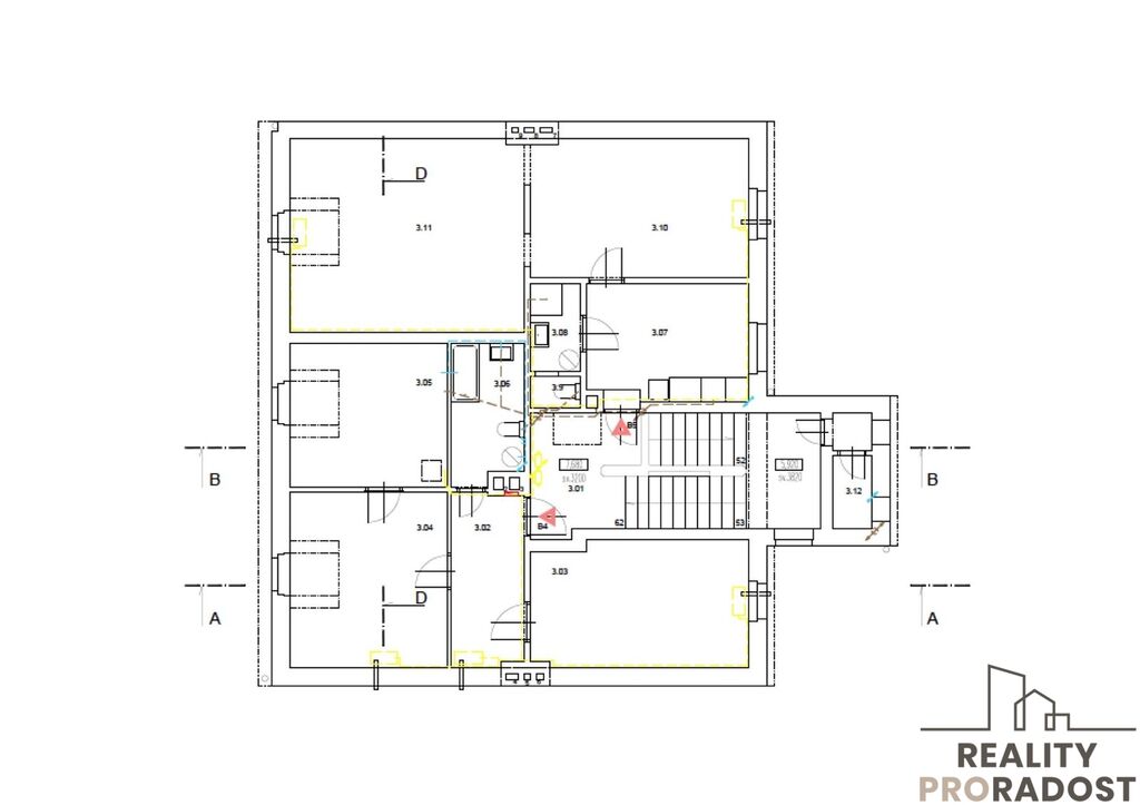
Dům po rekonstrukci (včetně střechy, el. rozvodů, kanalizace - 2019), 7 bytových jednotek, z toho dvě v přízemí nově po rekonstrukci, všechny bytové jednotky volné.
Zastavěná plocha 190 m2, dvůr 70 m2.
přízemí - byt 1: 60,3m2
přízemí - byt 2: 62,3m2
1. patro - garsonka: 17,3m2
1. patro - byt č. 4:  46,4m2
1. patro - byt č. 5:  62,2m2
2. patro - byt č. 6:  63,7m2
2. patro - byt č. 7:  64m2
Podlahová plocha celkem: 376,2 m2, sklepy celkem 128m2, kóje různých velikostí.
Dům napojen na vodovod, kanalizaci, el. přípojku, plyn. Centrální vytápění v suterénu s rozvodem tepla po celém domě.
Mnoho pracovních příležitostí v okolí vč. připravované těžby a zpracování lithia na Cínovci.
Ideální investiční příležitost pro ty, kteří hledají stabilní zdroj příjmů. Pro bližší informace kontaktujte makléře.
 
                                        Vídeňská 1014/18b, Brno
Máte zájem o tuto nemovistost?
Inzerát si prohlédlo 36 lidí
 
                                Ing. Tomáš Zavoral
Chcete dostávat emailem podobné nabídky prodeje činžovních domů v Dubí?