Pronájem ordinace, Sokolov, nábřeží Petra Bezruče, 47 m2

nábřeží Petra Bezruče, Sokolov

15 000 Kč /za měsíc Získejte výhodnou HYPOTÉKU

(Měsíční zálohy na energie 2000)

Prémioví partneři v Sokolově

Informace k nemovitosti

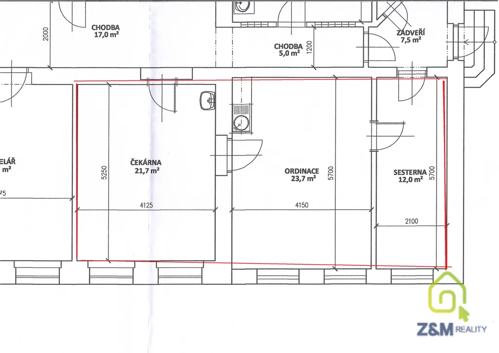
Nabízíme k dlouhodobému pronájmu ordinaci praktického lékaře se zázemím , místnosti 12,0 m2, 23,7m2, 21,7m2,dále kuchyňku + personální WC 9,9 m2 (společné pro tři jednotky) WC pacienti 4,1 m2 ve společných částech domu, v Lékařském domě v centru Sokolova. Jedná se o nové prostory v atraktivní lokalitě v centru města s bezproblémovým parkováním a dostupností MHD. Velmi Dobrá nabídka

Parametry nemovitosti

Cena
15 000 Kč /za měsíc
Poznámka k ceně
Měsíční zálohy na energie 2000
Aktualizováno
10. 9. 2024
Adresa
nábřeží Petra Bezruče, Sokolov
ID
0024-2024
Stavba
Cihlová
Stav objektu
Velmi dobrý
Patro
1. z 3
Vybaveno
Částečně
Typ objektu
Přízemní
Lokalita objektu
Centrum obce
Užitná plocha
47 m2
Zastavěná plocha
437 m2
Podlahová plocha
47 m2
Třída energetické náročnosti
D - Méně úsporná
Plyn
Plynovod
Odpad
Veřejná kanalizace
Topení
Ústřední dálkové
Komunikace
Asfaltová
Telekomunikace
Internet, Kabelová televize
Doprava
Vlak, Dálnice, Silnice, MHD, Autobus
Výtah
Bezbarierový přístup
Převod do OV

Kontaktovat makléře

Realitní kancelář

Logo Z&M REALITY

Z&M REALITY

Dr. Davida Bechera 2037/23, Karlovy Vary

Chystáte se prodat nemovitost?
Pomůžeme Vám!

Máte zájem o tuto nemovistost?

Tímto, v souladu s nařízením Evropského parlamentu a Rady (EU) 2016/679, v platném znění, prohlašuji, že mi je alespoň 16 let a uděluji tak svůj souhlas se zpracováním zadaných údajů (jméno, telefon, e-mail, ip adresa) společnosti B3 Technology, s.r.o., IČ: 07330600, se sídlem Novostavby 126/23, 435 11 Lom (správce dat), za účelem předání dotazu z tohoto formuláře Vámi vybranému inzerentovi a zpětného kontaktování mé osoby. Osobní údaje bude správce zpracovávat manuálně i automaticky přímo prostřednictvím svých zaměstnanců. Informace předané tímto formulářem budou uloženy v databázi správce maximálně po dobu 10 let. Odvolání souhlasu s uložením a zpracováním poskytnutých dat lze e-mailem na info@videobydleni.cz. V případě podezření na neoprávněné použití Vámi poskytnutých údajů máte právo předat podnět k šetření Úřadu pro ochranu osobních údajů. Více informací
Chystáte se prodat nemovitost?
Pomůžeme Vám!

Inzerát si prohlédlo 46 lidí

Prodejce

Reality

Reality

Hlídací pes

Chcete dostávat emailem podobné nabídky pronájmu ordinací v Sokolově?

Podobné nemovitosti


Nevyhovuje Vám typ nemovitosti? Podívejte se na jiné kategorie komerčních.


Vybrané články z našeho blogu