Pronájem bytu 1+kk, Praha - Libeň, Pod Labuťkou, 29 m2

Pod Labuťkou, Praha 8, Libeň

16 500 Kč /za měsíc Získejte výhodnou HYPOTÉKU

(vratná jistota Kč, náklady na bydlení 3100 Kč, poplatek za podnájem)

Prémioví partneři v Praze 8

Stěhovací služby

Výkup a prodej starého nábytku

Informace k bytu

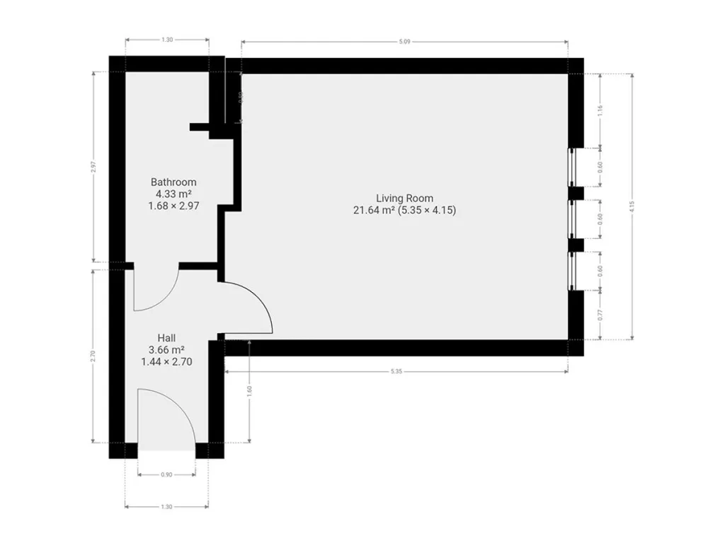
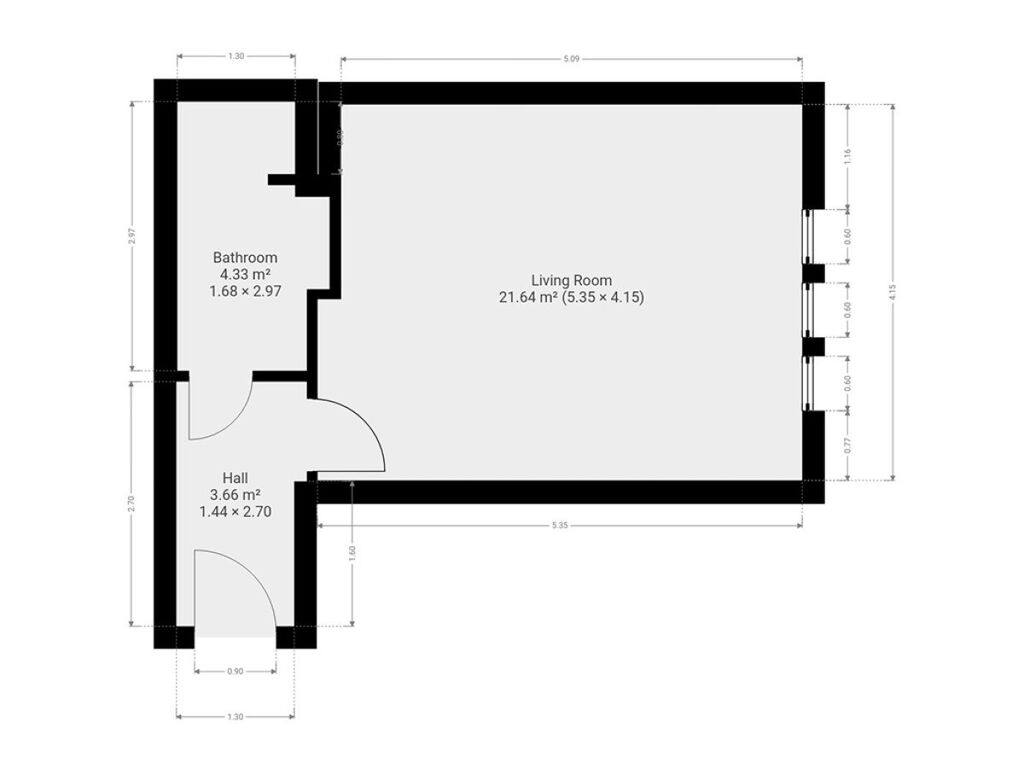
K dlouhodobému podnájmu nabízíme krásný byt o dispozici 1+Kk v oblíbené lokalitě Praha - Libeň. Byt o podlahové ploše 29 m2 se nachází v nejvyšším 3. patře cihlového domu bez výtahu.

Byt se nabízí plně vybavený. Kuchyně disponuje a sklokeramickou varnou deskou a lednicí, obývací část je zařízena pohovkou, konferenčním stolem, šatní skříní a postelí. V koupelně najdeme sprchový kout a pračku.

V okolí domu je veškerá potřebná infrastruktura. Tramvajová zastávka U Kříže je od domu vzdálená pouchých 5 minut.


Majitel preferuje zájemce bez domácích mazlíčků.
Byt je volný k nastěhování od 1.12.2025.


Uvedena energetická kategorie G, jelikož nemáme k dispozici PENB.

Byt pronajímá Ideální nájemce - služba, se kterou budete bydlet bezstarostně a za férových podmínek. Když se něco přihodí, k dispozici jsou správci, kteří s vámi vše vyřeší. Pomůžeme s veškerou administrativou, s nastavením plateb a zajistíme vám speciální pojištění. Pojďte bydlet s námi!

Parametry bytu

Cena
16 500 Kč /za měsíc
Poznámka k ceně
vratná jistota Kč, náklady na bydlení 3100 Kč, poplatek za podnájem
Aktualizováno
30. 3. 2026
Adresa
Pod Labuťkou, Praha 8, Libeň
ID
N3281
Stavba
Cihlová
Stav objektu
Velmi dobrý
Patro
3. z 3
Vybaveno
Ano
Typ objektu
Patrový
Lokalita objektu
Klidná část obce
Vlastnictví
Osobní
Užitná plocha
29 m2
Podlahová plocha
29 m2
Elektřina
230V
Topení
Ústřední dálkové
Výtah

Kontaktovat makléře

Máte zájem o tento byt?

Tímto, v souladu s nařízením Evropského parlamentu a Rady (EU) 2016/679, v platném znění, prohlašuji, že mi je alespoň 16 let a uděluji tak svůj souhlas se zpracováním zadaných údajů (jméno, telefon, e-mail, ip adresa) společnosti B3 Technology, s.r.o., IČ: 07330600, se sídlem Novostavby 126/23, 435 11 Lom (správce dat), za účelem předání dotazu z tohoto formuláře Vámi vybranému inzerentovi a zpětného kontaktování mé osoby. Osobní údaje bude správce zpracovávat manuálně i automaticky přímo prostřednictvím svých zaměstnanců. Informace předané tímto formulářem budou uloženy v databázi správce maximálně po dobu 10 let. Odvolání souhlasu s uložením a zpracováním poskytnutých dat lze e-mailem na info@videobydleni.cz. V případě podezření na neoprávněné použití Vámi poskytnutých údajů máte právo předat podnět k šetření Úřadu pro ochranu osobních údajů. Více informací
Chystáte se prodat nemovitost?
Pomůžeme Vám!

Inzerát si prohlédlo 2 lidí

Prodejce

Miloslava Kačerová

Miloslava Kačerová

Hlídací pes

Chcete dostávat emailem podobné nabídky pronájmu bytů 1+kk v Praze 8?

Podobné nemovitosti


Nevyhovuje Vám typ bytu? Podívejte se na jiné kategorie bytů.


Vybrané články z našeho blogu