Prodej pozemku pro bydlení, Červená Řečice, 289 m2

Červená Řečice, Popelištná

499 900 Kč /za nemovitost HYPOTÉKA od 2 234 Kč /za měsíc
Prémioví partneři v Červené Řečici

Informace k pozemku

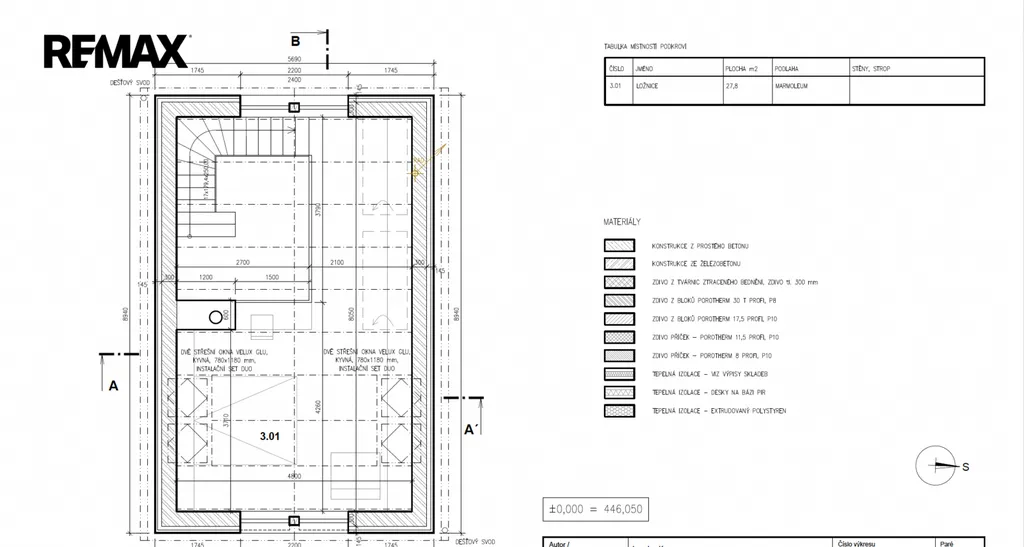
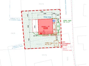
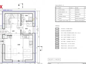
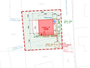
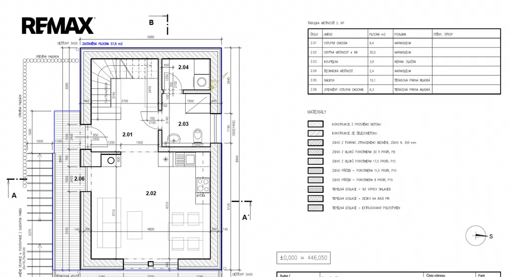
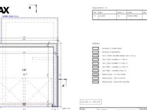
Jedná se o prodej stavebního pozemku určeného k výstavbě rekreačního objektu o výměře 289m2. Pozemek je umístěn 700m od vodní nádrže Trnávka, v okrajové části obce Popelištná. Je zpracována projektová dokumentace pro výstavbu rekreačního objektu o zast. ploše 57,8m2, která zahrnuje 1.NP s užitnou plochou 33,6m2 (dvojgaráž), 2.NP s užitnou plochou 32,7m2 (pobytové místnosti), podkroví 27,8m2 (pobytové místnosti), balkon 10,1m2. Elektřina se nachází na hranici pozemku, odkanalizování je dle projektové dokumentace řešeno jímkou na vyvážení, dešťová voda do retenční nádrže s přepadem do vsaku, voda z vlastní studny. Pro více informací volejte makléře nabídky. Prodávající si vyhrazuje právo vybrat kupujícího na základě jím zvolených kritérií.

Parametry pozemku

Cena
499 900 Kč /za nemovitost Spočítat hypotéku
Aktualizováno
23. 4. 2026
Adresa
Červená Řečice, Popelištná
ID
143-NP06817
Lokalita objektu
Okraj obce
Plocha pozemku
289 m2
Převod do OV

Kontaktovat makléře

Realitní kancelář

Logo RE/MAX A-City

RE/MAX A-City

Březinova 4690/144, Jihlava

Chystáte se prodat nemovitost?
Pomůžeme Vám!

Máte zájem o tento pozemek?

Tímto, v souladu s nařízením Evropského parlamentu a Rady (EU) 2016/679, v platném znění, prohlašuji, že mi je alespoň 16 let a uděluji tak svůj souhlas se zpracováním zadaných údajů (jméno, telefon, e-mail, ip adresa) společnosti B3 Technology, s.r.o., IČ: 07330600, se sídlem Novostavby 126/23, 435 11 Lom (správce dat), za účelem předání dotazu z tohoto formuláře Vámi vybranému inzerentovi a zpětného kontaktování mé osoby. Osobní údaje bude správce zpracovávat manuálně i automaticky přímo prostřednictvím svých zaměstnanců. Informace předané tímto formulářem budou uloženy v databázi správce maximálně po dobu 10 let. Odvolání souhlasu s uložením a zpracováním poskytnutých dat lze e-mailem na info@videobydleni.cz. V případě podezření na neoprávněné použití Vámi poskytnutých údajů máte právo předat podnět k šetření Úřadu pro ochranu osobních údajů. Více informací
Chystáte se prodat nemovitost?
Pomůžeme Vám!

Inzerát si prohlédlo 25 lidí

Prodejce

Jan Fuchs

Jan Fuchs

Hlídací pes

Chcete dostávat emailem podobné nabídky prodeje pozemků pro bydlení v Červené Řečici?

Podobné nemovitosti


Nevyhovuje Vám typ pozemku? Podívejte se na jiné kategorie pozemků.


Vybrané články z našeho blogu