Pronájem bytu 1+1, Praha - Nusle, V zálomu, 46 m2

V zálomu, Nusle - Praha 4

18 800 Kč /za měsíc Získejte výhodnou HYPOTÉKU

(vratná jistota, náklady na bydlení 4 509 Kč, poplatek za podnájem)

Prémioví partneři v Praze 4

Stěhovací služby

Výkup a prodej starého nábytku

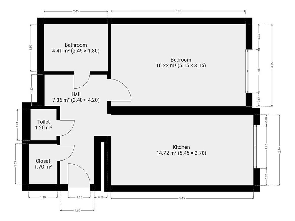
Informace k bytu

K dlouhodobému podnájmu nabízíme krásný byt o dispozici 1+1 v klidné lokalitě Praha 4 - Nusle. Byt o celkové výměře 46 m2 se nachází ve 2. patře zděného domu bez výtahu.

Byt se nabízí plně vybavený. Kuchyně disponuje jídelním stolem se 3 židlemi, rozkládací postelí, lednicí s mrazákem, elektrickou troubou, plynovým sporákem, mikrovlnnou troubou a digestoří. V ložnici najdeme postel s matracemi, 2 noční stolky s lampičkami, šatní skříň, komodu a polici. V koupelně je vana, umyvadlo, koupelnová skříňka, zrcadlo a pračka. Toaleta je umístěna samostatně. V předsíni jsou vestavěné skříně.

Plovoucí podlahy, plastová okna, vytápění plynové, ohřev vody bojlerem, přípojka na internet, v mezipatře společný balkon.

V okolí domu najdeme restaurace, nákupní centrum Arkády Pankrác, supermarket Tesco Express, Divadlo na Jezerce, park Jezerka atd. Pár minut chůze od domu je vzdálena tramvajová zastávka Na Veselí, autobusová zastávka Jezerka, a v docházkové vzdálenosti je stanice metra C - Pražského povstání.

Byt je volný k nastěhování 1.11.2025.

Energetická třída: G (průkaz nedodán).

Parametry bytu

Cena
18 800 Kč /za měsíc
Poznámka k ceně
vratná jistota, náklady na bydlení 4 509 Kč, poplatek za podnájem
Aktualizováno
5. 10. 2025
Adresa
V zálomu, Nusle - Praha 4
ID
N5511
Stavba
Cihlová
Stav objektu
Velmi dobrý
Patro
3. z 5
Vybaveno
Ano
Typ objektu
Patrový
Lokalita objektu
Klidná část obce
Vlastnictví
Osobní
Užitná plocha
46 m2
Podlahová plocha
46 m2
Třída energetické náročnosti
G - Mimořádně nehospodárná
Elektřina
230V
Plyn
Plynovod
Topení
Lokální plynové
Doprava
Vlak, Dálnice, Silnice, MHD, Autobus
Výtah

Kontaktovat makléře

Máte zájem o tento byt?

Tímto, v souladu s nařízením Evropského parlamentu a Rady (EU) 2016/679, v platném znění, prohlašuji, že mi je alespoň 16 let a uděluji tak svůj souhlas se zpracováním zadaných údajů (jméno, telefon, e-mail, ip adresa) společnosti B3 Technology, s.r.o., IČ: 07330600, se sídlem Novostavby 126/23, 435 11 Lom (správce dat), za účelem předání dotazu z tohoto formuláře Vámi vybranému inzerentovi a zpětného kontaktování mé osoby. Osobní údaje bude správce zpracovávat manuálně i automaticky přímo prostřednictvím svých zaměstnanců. Informace předané tímto formulářem budou uloženy v databázi správce maximálně po dobu 10 let. Odvolání souhlasu s uložením a zpracováním poskytnutých dat lze e-mailem na info@videobydleni.cz. V případě podezření na neoprávněné použití Vámi poskytnutých údajů máte právo předat podnět k šetření Úřadu pro ochranu osobních údajů. Více informací
Chystáte se prodat nemovitost?
Pomůžeme Vám!

Inzerát si prohlédlo 4 lidí

Prodejce

Miloslava Kačerová

Miloslava Kačerová

Hlídací pes

Chcete dostávat emailem podobné nabídky pronájmu bytů 1+1 v Praze 4?

Podobné nemovitosti


Nevyhovuje Vám typ bytu? Podívejte se na jiné kategorie bytů.


Vybrané články z našeho blogu