Pronájem výrobních prostor, České Budějovice, 128 m2

České Budějovice 3

25 000 Kč /za měsíc Získejte výhodnou HYPOTÉKU

(Odměnu realitního zprostředkovatele REALDOMUS hradí nájemce.)

Prémioví partneři v Českých Budějovicích

Výkup a prodej starého nábytku

Informace k nemovitosti

REALDOMUS Vám ve výhradním zastoupení pronajímatele zprostředkuje pronájem přízemní části multifunkční budovy v komerční zóně v Českých Budějovicích.

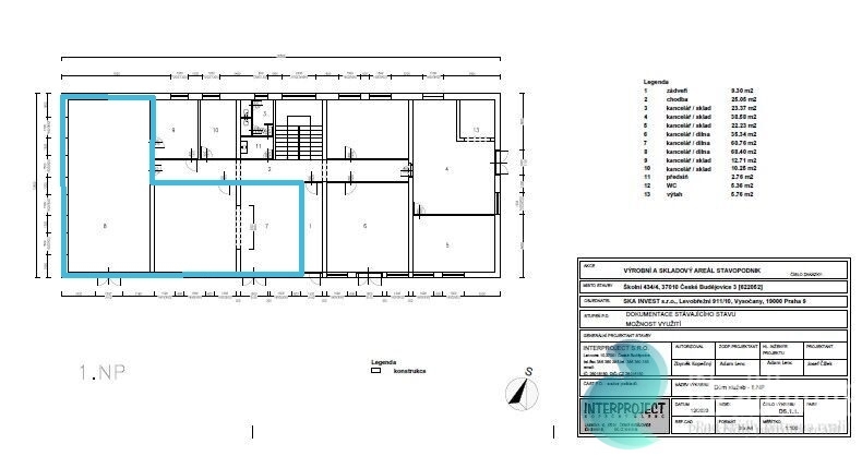
Předmět nájmu nabízí celkovou užitnou plochu 128 m2 a se sestává se ze 4 prostor využitelných jako sklad/dílna/administrativní zázemí (128 m2). Kromě vstupu pro personál disponuje objekt samostatným vstupem, který umožňují zásobování paletovou manipulací.
Potřeba sociální zařízení může být řešena instalací sanitárního kontejneru.

K předmětu nájmu je možné přidružit i rozsáhlejší zpevněné plochy pro skladování, manipulaci a parkování osobních i nákladních vozidel.
Objekt, ve kterém se nachází předmět nájmu je součástí uzavřeného komerčního areálu, který disponuje kompletní kapacitní infrastrukturou (dopravní konektivita, elektřina, plyn, voda, kanalizace).

Poloha předmětu nájmu umožňuje výborné napojení na dálnici D3 a budoucí severní spojku ČB, jejíž výstavba byla již zahájena.

Bližší informace o předmětu nájmu Vám poskytne REALDOMUS.

Parametry nemovitosti

Cena
25 000 Kč /za měsíc
Poznámka k ceně
Odměnu realitního zprostředkovatele REALDOMUS hradí nájemce.
Aktualizováno
23. 10. 2025
Adresa
České Budějovice 3
ID
1836
Stavba
Cihlová
Stav objektu
Velmi dobrý
Patro
1. z 2
Vybaveno
Ne
Typ objektu
Přízemní
Lokalita objektu
Klidná část obce
Užitná plocha
128 m2
Zastavěná plocha
128 m2
Podlahová plocha
128 m2
Plocha zahrady
8500 m2
Třída energetické náročnosti
G - Mimořádně nehospodárná
Elektřina
400V
Plyn
Plynovod
Odpad
Veřejná kanalizace
Topení
Lokální elektrické
Voda
Vodovod
Výtah
Převod do OV
Parkování

Kontaktovat makléře

Realitní kancelář

Logo REALDOMUS s.r.o.

REALDOMUS s.r.o.

Radniční 133/1, České Budějovice

Chystáte se prodat nemovitost?
Pomůžeme Vám!

Máte zájem o tuto nemovistost?

Tímto, v souladu s nařízením Evropského parlamentu a Rady (EU) 2016/679, v platném znění, prohlašuji, že mi je alespoň 16 let a uděluji tak svůj souhlas se zpracováním zadaných údajů (jméno, telefon, e-mail, ip adresa) společnosti B3 Technology, s.r.o., IČ: 07330600, se sídlem Novostavby 126/23, 435 11 Lom (správce dat), za účelem předání dotazu z tohoto formuláře Vámi vybranému inzerentovi a zpětného kontaktování mé osoby. Osobní údaje bude správce zpracovávat manuálně i automaticky přímo prostřednictvím svých zaměstnanců. Informace předané tímto formulářem budou uloženy v databázi správce maximálně po dobu 10 let. Odvolání souhlasu s uložením a zpracováním poskytnutých dat lze e-mailem na info@videobydleni.cz. V případě podezření na neoprávněné použití Vámi poskytnutých údajů máte právo předat podnět k šetření Úřadu pro ochranu osobních údajů. Více informací
Chystáte se prodat nemovitost?
Pomůžeme Vám!

Inzerát si prohlédlo 41 lidí

Prodejce

Mgr. Petr Wölfl

Mgr. Petr Wölfl

Hlídací pes

Chcete dostávat emailem podobné nabídky pronájmu výrobních prostor v Českých Budějovicích?

Podobné nemovitosti


Nevyhovuje Vám typ nemovitosti? Podívejte se na jiné kategorie komerčních.


Vybrané články z našeho blogu