Prodej bytu 2+kk, Karlovy Vary, Petřín, 46 m2 (ID: 3775261)

Petřín, Karlovy Vary

3 590 000 Kč /za nemovitost HYPOTÉKA od 16 045 Kč /za měsíc
Prémioví partneři v Karlových Varech

Informace k bytu

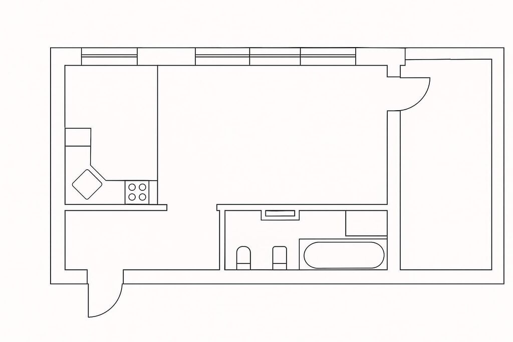
Nabízíme Vám k prodeji útulný byt o dispozici 2+KK o velikosti 46,65 m², který se nachází ve 2. patře cihlové budovy v centru Karlových Varů, v ulici Petřín. Byt je po celkové a kvalitní rekonstrukci. Je nový, kompletně zařízený nábytkem a technikou. Má vysoké stropy a vytápění zajišťuje nový plynový kotel. V bytě jsou nová plastová okna a kvalitní povrchové materiály. Byt se nachází 5 minut pěšky od Kolonády s minerálními prameny. V pěší dostupnosti je veškerá občanská vybavenost: obchody, restaurace, autobusová zastávka, škola, školka. V blízkosti jsou parky s nádhernou přírodou.
Byt se skládá z předsíně, obývacího pokoje s kuchyňským koutem, ložnice, koupelny s WC a vanou. Budova disponuje společným dvorem a před domem je parkoviště. K dispozici je společná zahrada pro využítí vlastníky bytových jednotek.
K bytu náleží opravená zařízená mansarda nacházející se ve 3. patře (13,04 m2). V mezipatře je koupelna se sprchovým koutem a WC (2,5 m2).
Vřele doporučujeme prohlídku tohoto pěkného bytu. Budova, ve které se byt nachází, je v perfektním stavu: nová střecha, opravená fasáda.

Parametry bytu

Cena
3 590 000 Kč /za nemovitost Spočítat hypotéku
Aktualizováno
24. 9. 2025
Adresa
Petřín, Karlovy Vary
ID
N00136
Stavba
Cihlová
Stav objektu
Po rekonstrukci
Patro
3. z 4
Vybaveno
Ano
Lokalita objektu
Klidná část obce
Vlastnictví
Osobní
Užitná plocha
46 m2
Podlahová plocha
46 m2
Třída energetické náročnosti
G - Mimořádně nehospodárná
Plyn
Plynovod
Odpad
Veřejná kanalizace
Topení
Lokální plynové
Doprava
Silnice, MHD, Autobus
Voda
Vodovod

Kontaktovat makléře

Realitní kancelář

Logo Carlsbad Reality

Carlsbad Reality

Karla IV. 505/1, Karlovy Vary

Chystáte se prodat nemovitost?
Pomůžeme Vám!

Máte zájem o tento byt?

Tímto, v souladu s nařízením Evropského parlamentu a Rady (EU) 2016/679, v platném znění, prohlašuji, že mi je alespoň 16 let a uděluji tak svůj souhlas se zpracováním zadaných údajů (jméno, telefon, e-mail, ip adresa) společnosti B3 Technology, s.r.o., IČ: 07330600, se sídlem Novostavby 126/23, 435 11 Lom (správce dat), za účelem předání dotazu z tohoto formuláře Vámi vybranému inzerentovi a zpětného kontaktování mé osoby. Osobní údaje bude správce zpracovávat manuálně i automaticky přímo prostřednictvím svých zaměstnanců. Informace předané tímto formulářem budou uloženy v databázi správce maximálně po dobu 10 let. Odvolání souhlasu s uložením a zpracováním poskytnutých dat lze e-mailem na info@videobydleni.cz. V případě podezření na neoprávněné použití Vámi poskytnutých údajů máte právo předat podnět k šetření Úřadu pro ochranu osobních údajů. Více informací
Chystáte se prodat nemovitost?
Pomůžeme Vám!

Inzerát si prohlédlo 87 lidí

Prodejce

Sergey Kopanev

Sergey Kopanev

Hlídací pes

Chcete dostávat emailem podobné nabídky prodeje bytů 2+kk v Karlových Varech?

Podobné nemovitosti


Nevyhovuje Vám typ bytu? Podívejte se na jiné kategorie bytů.


Vybrané články z našeho blogu