Prodej chaty, Chyňava, 45 m2 (ID: 3793993)

Chyňava, okres beroun

1 650 000 Kč /za nemovitost HYPOTÉKA od 7 375 Kč /za měsíc

(Cena je uvedena včetně provize, právního servisu včetně advokátní úschovy kupní ceny)

Prémioví partneři v Chyňavě

Informace k domu

Rekreační chata s vlastním pozemkem v malebné obci Chyňava
Představujeme Vám útulnou rekreační chatu v krásné přírodní lokalitě Středočeského kraje, v obci Chyňava (okres Beroun) blízko osady Dědkův Mlýn. Chata stojí na zastavěné ploše 33 m² (pozemek na kterém chata stojí je v dlouhodobém pronájmu) , přičemž k ní patří vlastní pozemek o výměře 241 m² na kterém je umístěn vrt se zdrojem vody.
Celý pozemek poskytuje dostatek prostoru pro zahradu, relaxační zónu nebo drobné zahradnické aktivity.
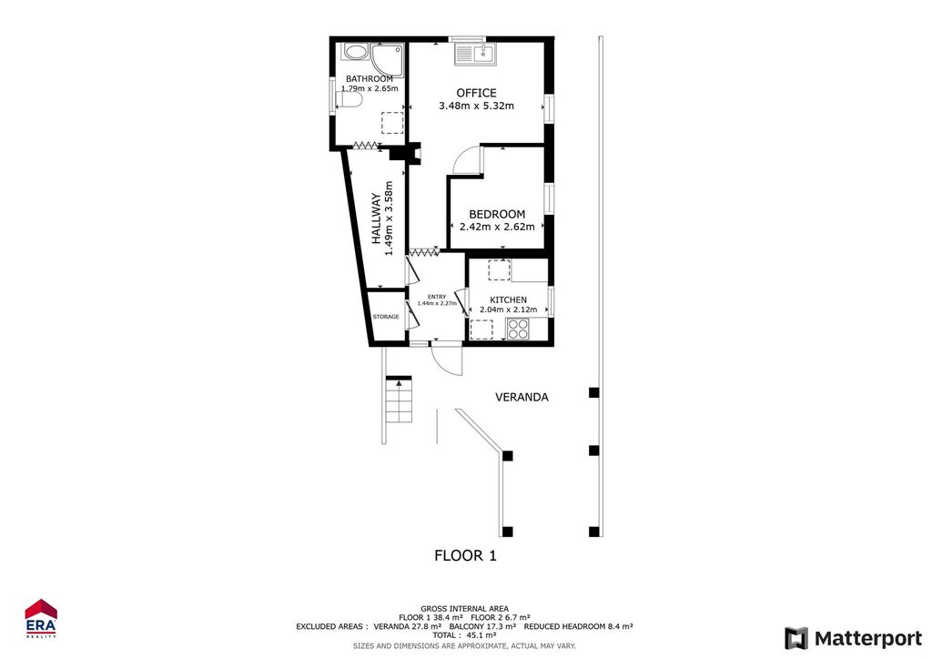
Užitná plocha chaty činí 55 m², s dispozicí 2+1 , což zahrnuje obytnou místnost, kuchyňský kout, malou ložnici, sociálním zařízením s WC a sprchou, ložnici v podkroví a další nezbytné zázemí pro pohodlný celoroční pobyt.
Chata je rozdělena do dvou nadzemních podlaží, částečně zařízená a připravena k okamžitému užívání. Vytápění je řešeno vlastní klimatizační jednotkou (v létě chladí, v zimě hřeje) a krbovými kamny.
Chyňava je klidná obec s malebnou přírodou, která je ideální pro rekreační aktivity i odpočinek. V blízkosti naleznete veškerou občanskou vybavenost, včetně obchodů, restaurací, pošty, sportovišť a lékaře. Výborné dopravní spojení zajišťující autobusové linky, silnice první třídy a snadná dostupnost autem.
Okolí nabízí možnosti pro pěší turistiku, cyklovýlety nebo houbaření, což z této lokality představuje ideální místo pro milovníky přírody.
Tato chata je vhodná pro sezónní rekreaci i celoroční rekreační bydlení díky svému praktickému zázemí a blízkosti služeb a nabízí příležitost spojit klid přírody s komfortem vlastního rekreačního zázemí.
Neváhejte nás kontaktovat pro více informací nebo prohlídku!

Disclaimer: Uvedené výměry jsou orientační. V případě více zájemců bude nemovitost prodána nejlepší nabídce a majitel si vyhrazuje právo vybrat kupujícího na základě jím zvolených kritérií. Veškeré zveřejněné údaje obsažené v tomto inzerátu mají pouze informativní charakter a nejsou nabídkou ve smyslu § 1731 nebo § 1732 občanského zákoníku, ani se nejedná o veřejný příslib dle § 1733 občanského zákoníku.

Parametry domu

Cena
1 650 000 Kč /za nemovitost Spočítat hypotéku
Poznámka k ceně
Cena je uvedena včetně provize, právního servisu včetně advokátní úschovy kupní ceny
Aktualizováno
18. 3. 2026
Adresa
Chyňava, okres beroun
ID
927246
Stavba
Dřevěná
Stav objektu
Dobrý
Vybaveno
Částečně
Typ objektu
Patrový
Vlastnictví
Osobní
Užitná plocha
45 m2
Zastavěná plocha
33 m2
Podlahová plocha
45 m2
Plocha pozemku
241 m2
Třída energetické náročnosti
G - Mimořádně nehospodárná
Elektřina
230V
Odpad
Jímka
Topení
Lokální tuhá paliva, Lokální elektrické
Doprava
Silnice, MHD
Voda
Místní zdroj vody

Kontaktovat makléře

Máte zájem o tento dům?

Tímto, v souladu s nařízením Evropského parlamentu a Rady (EU) 2016/679, v platném znění, prohlašuji, že mi je alespoň 16 let a uděluji tak svůj souhlas se zpracováním zadaných údajů (jméno, telefon, e-mail, ip adresa) společnosti B3 Technology, s.r.o., IČ: 07330600, se sídlem Novostavby 126/23, 435 11 Lom (správce dat), za účelem předání dotazu z tohoto formuláře Vámi vybranému inzerentovi a zpětného kontaktování mé osoby. Osobní údaje bude správce zpracovávat manuálně i automaticky přímo prostřednictvím svých zaměstnanců. Informace předané tímto formulářem budou uloženy v databázi správce maximálně po dobu 10 let. Odvolání souhlasu s uložením a zpracováním poskytnutých dat lze e-mailem na info@videobydleni.cz. V případě podezření na neoprávněné použití Vámi poskytnutých údajů máte právo předat podnět k šetření Úřadu pro ochranu osobních údajů. Více informací
Chystáte se prodat nemovitost?
Pomůžeme Vám!

Inzerát si prohlédlo 72 lidí

Prodejce

Michal Kutzendörfer

Michal Kutzendörfer

Hlídací pes

Chcete dostávat emailem podobné nabídky prodeje chat v Chyňavě?

Podobné nemovitosti


Nevyhovuje Vám typ domu? Podívejte se na jiné kategorie domů.


Vybrané články z našeho blogu