Prodej bytu 1+1, Abertamy, Blatenská, 33 m2

Blatenská, Abertamy

3 300 000 Kč /za nemovitost HYPOTÉKA od 14 749 Kč /za měsíc

(včetně právního servisu a odměny zprostředkovatele)

Prémioví partneři v Abertamech

Informace k bytu

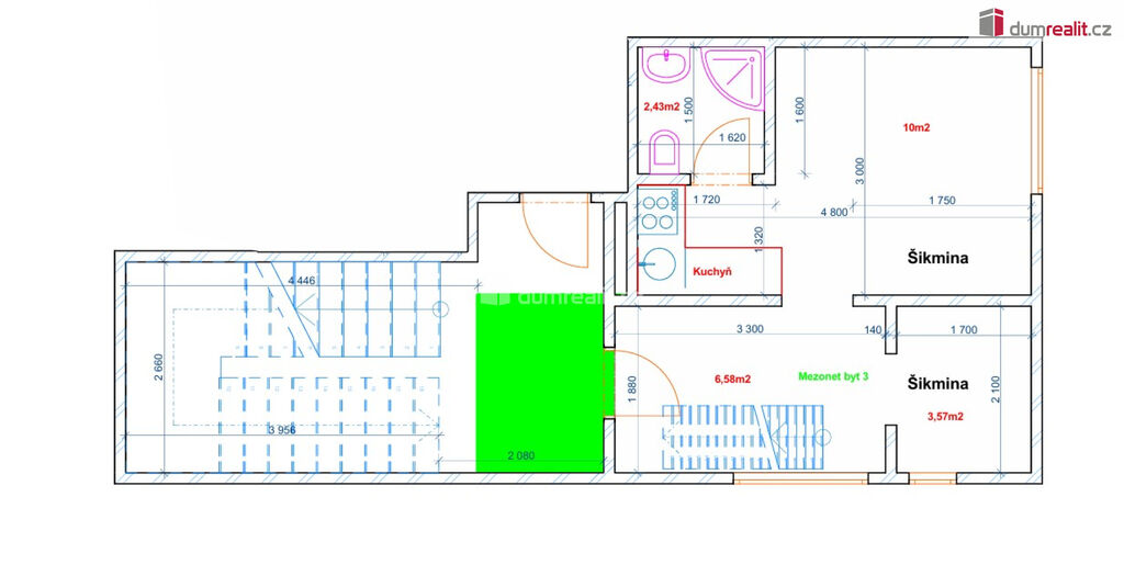
Dumrealit.cz Vám zprostředkuje exkluzivně prodej zajímavého horského apartmánu (mezonetu) 1+1 o velikosti 33 m² v obci Abertamy, okr. Karlovy Vary. Jedná se o byt ve 3. a 4.patře cihlového domu. Byt je zařízen vkusným nábytkem a vybavením. K bytu náleží prostorný zděný sklep o velikosti 8 m² a jedno vyhrazené parkovací stání. Budova z třicátých let 20. století byla kompletně zrekonstruována v letech 2021 – 2022 a je zateplena a opatřena plastovými okny. V přízemí se nachází nebytové prostory v současné době půjčovna kol a prádelna. Pro obytnou část je samostatný vchod. Ve třech nadzemních podlaží se nachází celkem 5 jednotek a společná chodba se schodištěm. V domě je veřejný vodovod, kanalizace a každá jednotka má vlastní elektro rozvaděč s elektroměrem. Z apartmánu je vzhledem k jeho poloze krásný výhled zejména na vrchol Plešivec. Nachází se cca. 100 metrů od náměstí a tedy i občanské vybavenosti. Vzhledem k tomu, že před zadáním do inzerce nebyl předložen PENB, je tento byt v souladu s platným zákonem zařazen do energetické třídy G. Ev. číslo: 650310.

Parametry bytu

Cena
3 300 000 Kč /za nemovitost Spočítat hypotéku
Poznámka k ceně
včetně právního servisu a odměny zprostředkovatele
Aktualizováno
12. 1. 2026
Adresa
Blatenská, Abertamy
ID
650924
Stavba
Cihlová
Stav objektu
Po rekonstrukci
Patro
4. z 5
Vybaveno
Ano
Vlastnictví
Osobní
Užitná plocha
33 m2
Podlahová plocha
33 m2
Třída energetické náročnosti
G - Mimořádně nehospodárná
Sklep
Parkování

Kontaktovat makléře

Máte zájem o tento byt?

Tímto, v souladu s nařízením Evropského parlamentu a Rady (EU) 2016/679, v platném znění, prohlašuji, že mi je alespoň 16 let a uděluji tak svůj souhlas se zpracováním zadaných údajů (jméno, telefon, e-mail, ip adresa) společnosti B3 Technology, s.r.o., IČ: 07330600, se sídlem Novostavby 126/23, 435 11 Lom (správce dat), za účelem předání dotazu z tohoto formuláře Vámi vybranému inzerentovi a zpětného kontaktování mé osoby. Osobní údaje bude správce zpracovávat manuálně i automaticky přímo prostřednictvím svých zaměstnanců. Informace předané tímto formulářem budou uloženy v databázi správce maximálně po dobu 10 let. Odvolání souhlasu s uložením a zpracováním poskytnutých dat lze e-mailem na info@videobydleni.cz. V případě podezření na neoprávněné použití Vámi poskytnutých údajů máte právo předat podnět k šetření Úřadu pro ochranu osobních údajů. Více informací
Chystáte se prodat nemovitost?
Pomůžeme Vám!

Inzerát si prohlédlo 31 lidí

Prodejce

Petr Kraus

Petr Kraus

Hlídací pes

Chcete dostávat emailem podobné nabídky prodeje bytů 1+1 v Abertamech?

Podobné nemovitosti


Nevyhovuje Vám typ bytu? Podívejte se na jiné kategorie bytů.


Vybrané články z našeho blogu