Pronájem bytu 4+kk, Mokrá-Horákov - Mokrá, 127 m2

Mokrá-Horákov

32 900 Kč /za měsíc Získejte výhodnou HYPOTÉKU

(vratná jistota , náklady na bydlení 4727 Kč, poplatek za podnájem)

Prémioví partneři v Mokré

Pojištění a finance

Informace k bytu

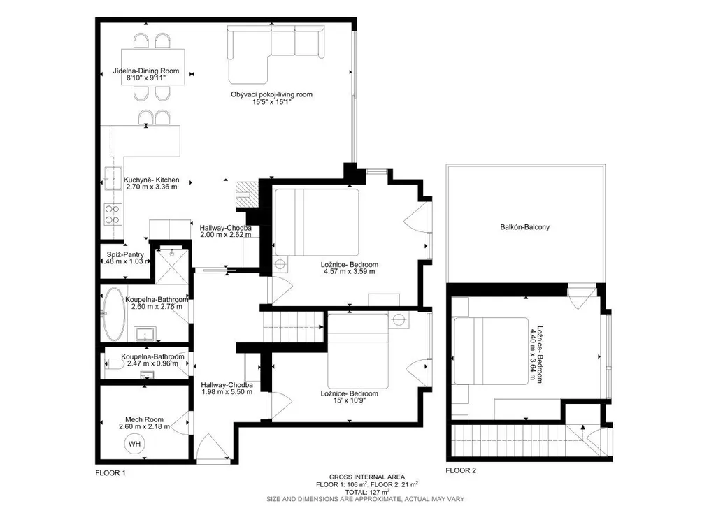
K dlouhodobému pronájmu nabízíme luxusní byt v krásném rodinném dvojdomku o celkové užitné ploše [127 m²] s prostornou terasou a zahradou o velikosti přibližně [250 m²]. Dům má dvě podlaží a k dispozici jsou také dvě parkovací stání přímo u nemovitosti. Nemovitost je částečně vybavená dle fotografií a nabízí velmi komfortní bydlení v klidném prostředí nedaleko Brna.

V prvním patře se nachází prostorný obývací pokoj propojený s kuchyňským koutem, jehož součástí je také sedací souprava. Kuchyňská linka je plně vybavena spotřebiči včetně myčky nádobí. Dále je zde koupelna s vanou a toaletou, technická místnost a dva samostatné pokoje vhodné například jako ložnice, dětský pokoj či pracovna. Ve druhém patře se nachází další pokoj a velká terasa, která poskytuje příjemné místo k relaxaci i posezení.

Dům se nachází v krásné a klidné lokalitě v blízkosti Brna s velmi dobrou dostupností do centra města. Autem se do centra dostanete přibližně za 15 minut, veřejnou dopravou (autobus a MHD) přibližně za 40 minut. V okolí je k dispozici základní občanská vybavenost, například pošta, mateřská škola, knihovna, koupaliště a další služby.

Dům je k dispozici ihned.

První čtyři fotografie jsou vizualizace s nábytkem.

Byt pronajímá Ideální nájemce – služba, se kterou budete bydlet bezstarostně a za férových podmínek. Když se něco přihodí, k dispozici jsou správci, kteří s vámi vše vyřeší. Pomůžeme s veškerou administrativou, s nastavením plateb a zajistíme vám speciální pojištění. Pojďte bydlet s námi!

Parametry bytu

Cena
32 900 Kč /za měsíc
Poznámka k ceně
vratná jistota , náklady na bydlení 4727 Kč, poplatek za podnájem
Aktualizováno
15. 5. 2026
Adresa
Mokrá-Horákov
ID
N6099
Stavba
Cihlová
Stav objektu
Velmi dobrý
Patro
1. z 2
Vybaveno
Částečně
Typ objektu
Patrový
Lokalita objektu
Klidná část obce
Vlastnictví
Osobní
Užitná plocha
127 m2
Podlahová plocha
127 m2
Plocha zahrady
125 m2
Třída energetické náročnosti
B - Velmi úsporná
Elektřina
230V
Výtah
Parkování

Kontaktovat makléře

Realitní kancelář

Logo Ideální nájemce

Ideální nájemce

Milady Horákové 1957/13, Brno

Chystáte se prodat nemovitost?
Pomůžeme Vám!

Máte zájem o tento byt?

Tímto, v souladu s nařízením Evropského parlamentu a Rady (EU) 2016/679, v platném znění, prohlašuji, že mi je alespoň 16 let a uděluji tak svůj souhlas se zpracováním zadaných údajů (jméno, telefon, e-mail, ip adresa) společnosti B3 Technology, s.r.o., IČ: 07330600, se sídlem Novostavby 126/23, 435 11 Lom (správce dat), za účelem předání dotazu z tohoto formuláře Vámi vybranému inzerentovi a zpětného kontaktování mé osoby. Osobní údaje bude správce zpracovávat manuálně i automaticky přímo prostřednictvím svých zaměstnanců. Informace předané tímto formulářem budou uloženy v databázi správce maximálně po dobu 10 let. Odvolání souhlasu s uložením a zpracováním poskytnutých dat lze e-mailem na info@videobydleni.cz. V případě podezření na neoprávněné použití Vámi poskytnutých údajů máte právo předat podnět k šetření Úřadu pro ochranu osobních údajů. Více informací
Chystáte se prodat nemovitost?
Pomůžeme Vám!
Theleadway banner

Inzerát si prohlédlo 19 lidí

Prodejce

Dana Oralová

Dana Oralová

Hlídací pes

Chcete dostávat emailem podobné nabídky pronájmu bytů 4+kk v Mokré?

Podobné nemovitosti


Nevyhovuje Vám typ bytu? Podívejte se na jiné kategorie bytů.


Vybrané články z našeho blogu