Pronájem kanceláře, Frýdek-Místek - Frýdek, tř. T. G. Masaryka, 800 m2

tř. T. G. Masaryka, Frýdek-Místek

Cena na vyžádání /za měsíc Získejte výhodnou HYPOTÉKU

(cena u makléře)

Prémioví partneři v Frýdku-Místku

Informace k nemovitosti

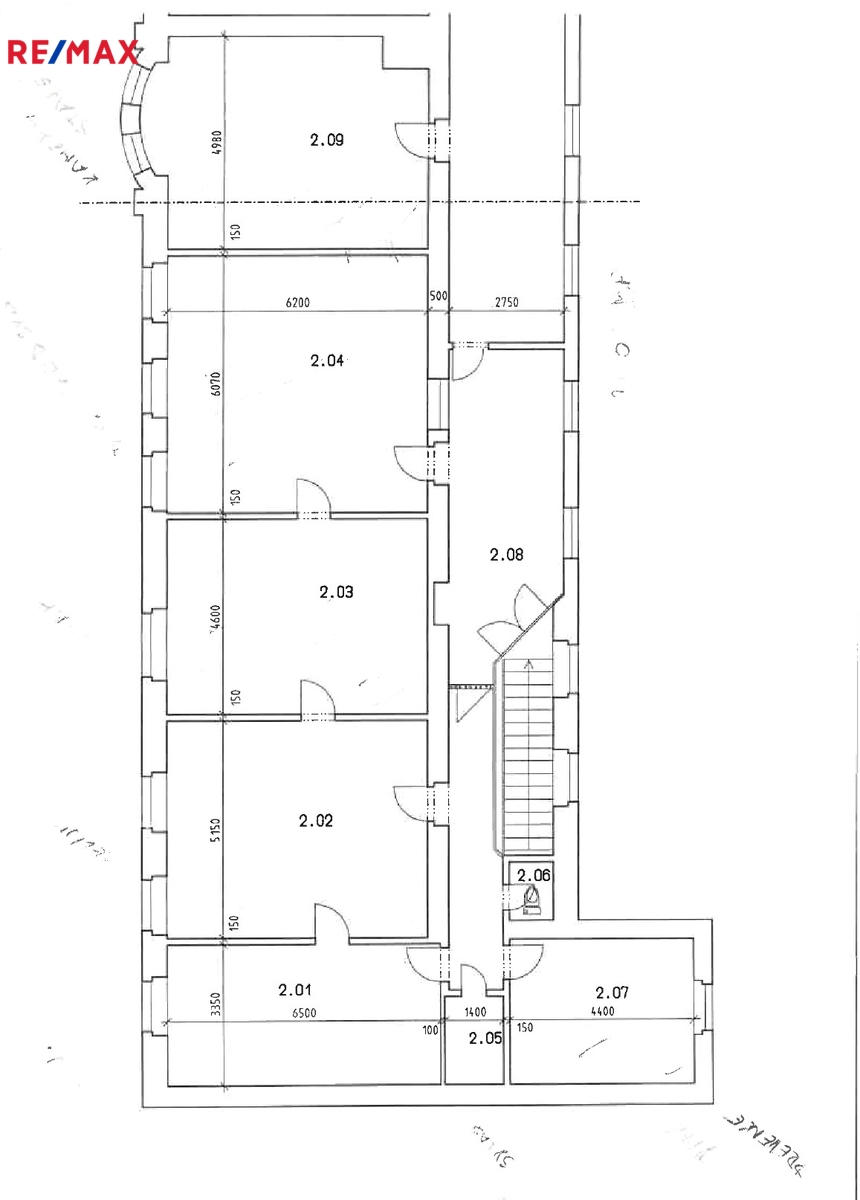
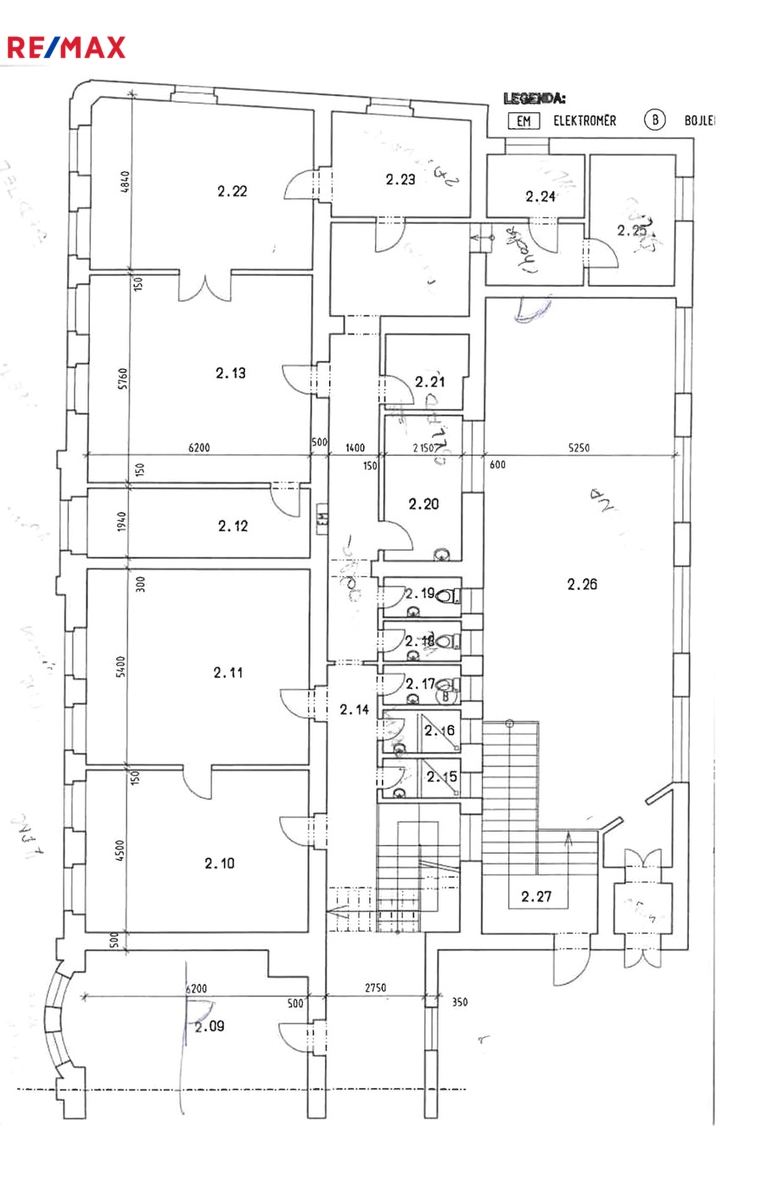
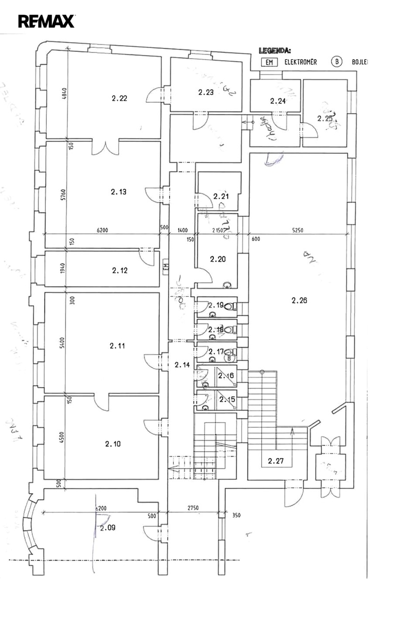
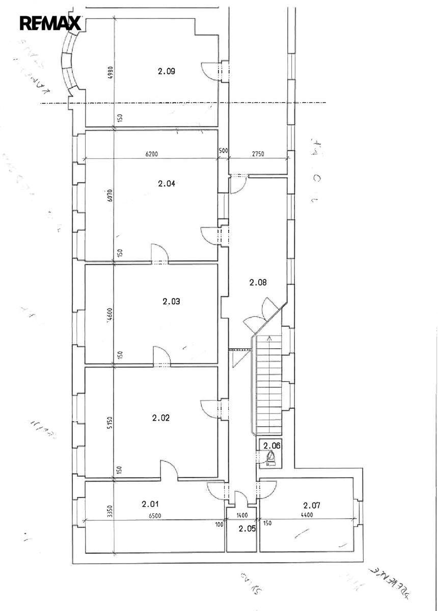
Nabízíme k pronájmu kancelářské prostory v centru města, situované na adrese tř. T. G. Masaryka, č. p. 633 a 634 ve Frýdku-Místku, které se nacházejí ve 2.NP a 3.NP třípatrového objektu. Tyto prostory o celkové výměře 800 m2 jsou ideálně umístěny v oblasti s velmi dobrou dostupností, což je zvláště výhodné pro ordinace a jiná zdravotnická zařízení.
Prostory nabízejí velkou variabilitu užívání a lze je přizpůsobit specifickým potřebám nového nájemce.
V blízkém okolí je možnost parkování, což může být velkým plusem pro zaměstnance a klienty. Objekt je napojen na všechny IS, topení je zajištěno ústředním dálkovým vytápěním.
Doprava k samotnému objektu je výborná, hned vedle domu je zastávka MHD. Tato lokalita poskytuje široké spektrum služeb a vybavení v bezprostředním okolí, čímž zaručuje pohodlné pracovní prostředí pro všechny uživatele.
Kancelářské prostory v centru města představují skvělé místo pro rozvoj ordinací či jiných zdravotnických zařízení, a to nejen díky svému strategickému umístění, ale i prostornosti a flexibilitě dispozic. Celková užitná plocha nabízí možnost různorodých úprav podle individuálních požadavků a představy nového nájemce.

V případě zájmu o prohlídku nás neváhejte kontaktovat. Pronajímající si vyhrazuje právo vybrat nájemce na základě jím zvolených kritérií.

Parametry nemovitosti

Cena
Cena na vyžádání
Poznámka k ceně
cena u makléře
Aktualizováno
28. 3. 2026
Adresa
tř. T. G. Masaryka, Frýdek-Místek
ID
158-NP02437
Stavba
Smíšená
Stav objektu
Dobrý
Patro
2. z 3
Typ objektu
Patrový
Lokalita objektu
Centrum obce
Užitná plocha
800 m2
Zastavěná plocha
272 m2
Podlahová plocha
800 m2
Třída energetické náročnosti
E - Nehospodárná
Ukazatel energetické náročnosti
200 kWh/m2 za rok
Elektřina
400V
Odpad
Veřejná kanalizace
Komunikace
Asfaltová, Zpevněná
Doprava
Vlak, Silnice, MHD, Autobus
Voda
Vodovod
Převod do OV

Kontaktovat makléře

Realitní kancelář

Logo RE/MAX Nej

RE/MAX Nej

Hlavní třída 436/77, Havířov

Chystáte se prodat nemovitost?
Pomůžeme Vám!

Máte zájem o tuto nemovistost?

Tímto, v souladu s nařízením Evropského parlamentu a Rady (EU) 2016/679, v platném znění, prohlašuji, že mi je alespoň 16 let a uděluji tak svůj souhlas se zpracováním zadaných údajů (jméno, telefon, e-mail, ip adresa) společnosti B3 Technology, s.r.o., IČ: 07330600, se sídlem Novostavby 126/23, 435 11 Lom (správce dat), za účelem předání dotazu z tohoto formuláře Vámi vybranému inzerentovi a zpětného kontaktování mé osoby. Osobní údaje bude správce zpracovávat manuálně i automaticky přímo prostřednictvím svých zaměstnanců. Informace předané tímto formulářem budou uloženy v databázi správce maximálně po dobu 10 let. Odvolání souhlasu s uložením a zpracováním poskytnutých dat lze e-mailem na info@videobydleni.cz. V případě podezření na neoprávněné použití Vámi poskytnutých údajů máte právo předat podnět k šetření Úřadu pro ochranu osobních údajů. Více informací
Chystáte se prodat nemovitost?
Pomůžeme Vám!

Inzerát si prohlédlo 30 lidí

Prodejce

Petr Závodný

Petr Závodný

Hlídací pes

Chcete dostávat emailem podobné nabídky pronájmu kanceláří v Frýdku-Místku?

Podobné nemovitosti


Nevyhovuje Vám typ nemovitosti? Podívejte se na jiné kategorie komerčních.


Vybrané články z našeho blogu