Prodej rodinného domu, Srubec, U Školky, 106 m2

U Školky, Srubec

Rezervováno
10 800 000 Kč /za nemovitost HYPOTÉKA od 48 269 Kč /za měsíc
Prémioví partneři v Srubci

Výkup a prodej starého nábytku

Informace k domu

ZTV Srubec U Školky - Nová výstavba přízemních rodinných domů "na klíč". V nabídce volný dům č.20 na rovinatém pozemku. Nabízíme samostatné prostorné rodinné domy 4+kk typ "Stodola" s pozemkem o výměře 551 m2 s moderním zpracováním a možností využití podkroví. Zahrady jsou orientovány na západ. Dokončení, kolaudace, předání 8/2026.
Bydlení na Srubci – soukromí ve vlastním domě, sportovní vyžití v okolní přírodě a snadná dostupnost do Č. Budějovic autem, MHD a nově obyvatelé šetří čas do zaměstnání díky sjezdu na dálnici na Pohůrce. V obci se koná spoustu sportovních a zábavných akcí pro děti, v těsné blízkosti domu je krásná příroda, kde můžou obyvatelé relaxovat při procházkách nebo při venčení čtyřnohých mazlíčků. Na Srubci je mateřská i základní škola, obchod s potravinami, hospůdka, fotbalové hřiště a několik dětských hřišť. Pár minut od Srubce je supermarket Lidl.
Zákazník nyní může sám volit konečnou podobu domu výběrem dle vlastního přání (podlahových krytin, vnitřních dveří, obkladů, dlažeb a sanity koupelny), pozemek je oplocen, standardy předložíme zájemci.
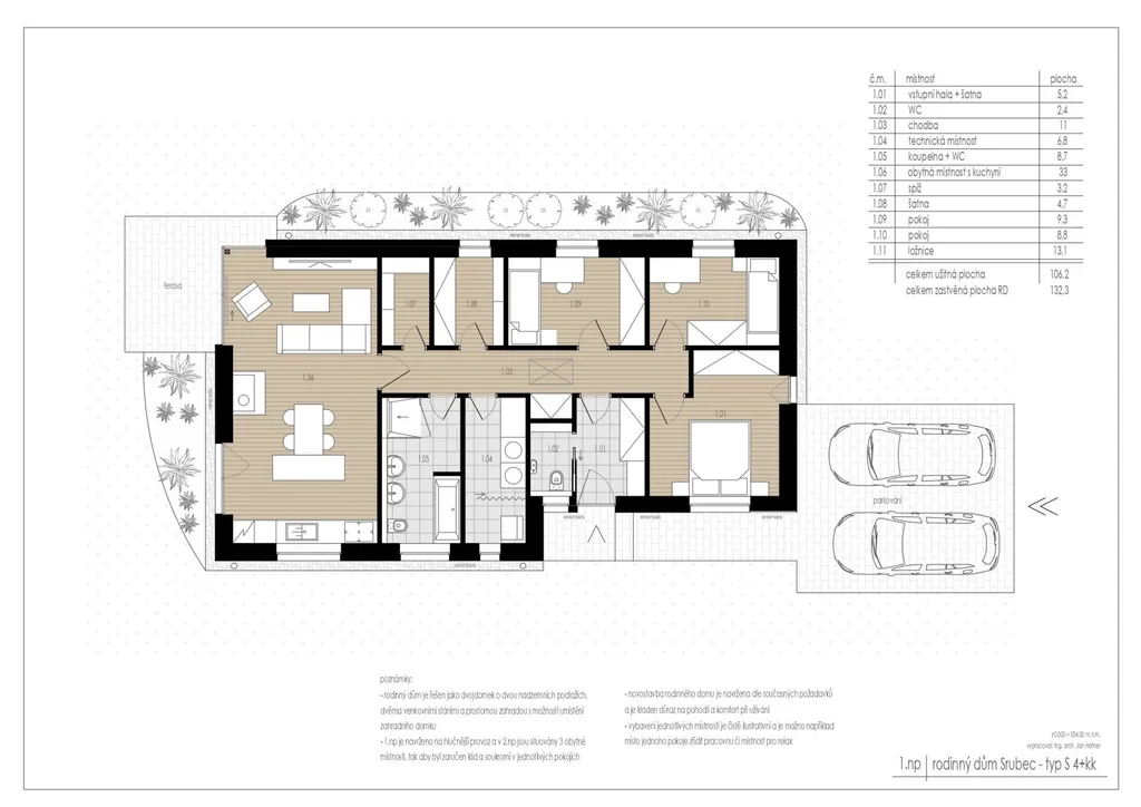
Obytná plocha domu je 106,17m2. Zastavěná plocha domu 142m2 + parkovací stání pro 2 auta cca 36m2+terasa o výměře 9,37m2.
Dispozice: vstupní předsíň(5,18m2), samostatné WC(2,35m2), tech.místnost(6,58m2), koupelna s WC(8,91m2), obývací pokoj s kuch.koutem (33m2), spíž (3,23m2), chodba (11m2), 3 ložnice (13,15m2, 9,25m2, 8,8m2), šatna (4,72m2)+úložný prostor na půdě.
Vybavenost domu: Zpevněná plocha – terasa ze zámkové dlažby Best Beleza, vchod a parking ze zámkové dlažby Best Klasik, plot – podhrabový obrubník + 3D drátěné poplastované pletivo (180–200cm), systémová branka cca 1m + 3m brána dvoukřídlá, příprava na venkovní žaluzie (kastlíky), příprava na krbová kamna a klimatizaci, konstrukce Porotherm 240–300 obvod, vnitřní 200, příčky 150, zateplovací systém 180/200mm polystyren, plastová okna a dveře – izolační trojsklo, barva bílá, veškeré vnitřní rozvody – elektřina, plyn, voda, topení, plynový kotel BAXI se zásobníkem vody, v celém domě podlahové vytápění, podlahy vinyl a dlažba, dveře s obložkami, koupelna se sprchovým koutem, vanou, umyvadlem a toaletou, příprava na fotovoltaiku.
V ceně není: kuch.linka, svítidla, žaluzie, klimatizace, komín, nábytek, pergola, finální úprava zahrady.
Pozemky jsou přístupné po obecní komunikaci, výstavba domů probíhá na zasíťovaném a zkolaudovaném ZTV–plyn, elektřina, vodovod, kanalizace, Starnet – optický kabel.
Velký zřetel je kladen na energetickou úspornost domu, aby jeho budoucí majitel měl co nejnižší náklady na provoz domu (PENB–B).
Hypoteční servis zdarma (naši hypoteční poradci řeší úvěry u všech bankovních domů za nejlepších podmínek na trhu).
Navazujeme na již několikátý úspěšně realizovaný a velmi žádaný projekt investora, který je jednička ve svém oboru.
Již 15 let bydlíme v domě, který stavěl tento developer, tak můžeme z vlastní zkušenosti vřele doporučit.
Těšíme se na vás při prohlídce na Srubci. Buďte další spokojený soused.

Parametry domu

Stav
Rezervováno
Cena
10 800 000 Kč /za nemovitost Spočítat hypotéku
Aktualizováno
7. 1. 2026
Adresa
U Školky, Srubec
ID
CB20250409
Stavba
Cihlová
Stav objektu
Ve výstavbě
Typ objektu
Přízemní
Druh objektu
Samostatný
Lokalita objektu
Klidná část obce
Užitná plocha
106 m2
Zastavěná plocha
142 m2
Podlahová plocha
106 m2
Plocha pozemku
559 m2
Plocha zahrady
417 m2
Třída energetické náročnosti
B - Velmi úsporná
Elektřina
230V, 400V
Plyn
Plynovod
Odpad
Veřejná kanalizace
Topení
Lokální plynové
Komunikace
Asfaltová
Telekomunikace
Internet
Doprava
Dálnice, Silnice, MHD, Autobus
Voda
Vodovod
Topné těleso
Podlahové vytápění
Zdroj topení
Plynový kondenzační kotel
Zdroj teplé vody
Plynový kondenzační kotel
Terasa
Výtah
Bezbarierový přístup
Parkování

Kontaktovat makléře

Realitní kancelář

Logo SORENT-CB s. r. o.

SORENT-CB s. r. o.

Lannova tř. 14/9, České Budějovice 6

Chystáte se prodat nemovitost?
Pomůžeme Vám!

Máte zájem o tento dům?

Tímto, v souladu s nařízením Evropského parlamentu a Rady (EU) 2016/679, v platném znění, prohlašuji, že mi je alespoň 16 let a uděluji tak svůj souhlas se zpracováním zadaných údajů (jméno, telefon, e-mail, ip adresa) společnosti B3 Technology, s.r.o., IČ: 07330600, se sídlem Novostavby 126/23, 435 11 Lom (správce dat), za účelem předání dotazu z tohoto formuláře Vámi vybranému inzerentovi a zpětného kontaktování mé osoby. Osobní údaje bude správce zpracovávat manuálně i automaticky přímo prostřednictvím svých zaměstnanců. Informace předané tímto formulářem budou uloženy v databázi správce maximálně po dobu 10 let. Odvolání souhlasu s uložením a zpracováním poskytnutých dat lze e-mailem na info@videobydleni.cz. V případě podezření na neoprávněné použití Vámi poskytnutých údajů máte právo předat podnět k šetření Úřadu pro ochranu osobních údajů. Více informací
Chystáte se prodat nemovitost?
Pomůžeme Vám!

Inzerát si prohlédlo 84 lidí

Prodejce

Dana Kolářová

Dana Kolářová

Hlídací pes

Chcete dostávat emailem podobné nabídky prodeje rodinných domů v Srubci?

Podobné nemovitosti


Nevyhovuje Vám typ domu? Podívejte se na jiné kategorie domů.


Vybrané články z našeho blogu