Prodej pozemku pro bydlení, Želiv, 1211 m2

Želiv

1 767 Kč /za metr čtvereční HYPOTÉKA od 8 Kč /za měsíc
Prémioví partneři v Želivi

Informace k pozemku

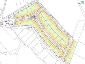
Dovoluji si nabídnout ke koupi stavební pozemek v obci Želiv. Lokalita Pod Haštalem je nově vznikající části obce. Samotná obec kompletně zajištuje zasíťování jednotlivých pozemků, výstavbu komunikací, chodníků i veřejného osvětlení. V listopadu proběhla kolaudace přípojek inženýrských sítí (vodovod, kanalizace, elektřina a datový kabel). Lokalita nabízí rozmanité výměry pozemků od 800 do 1211m². Prodej stavebních pozemků bude probíhat formou obálkové metody. Minimální nabídka činí 1760,60,-Kč za 1 metr čtvereční pozemku. Detaily i pravidla pro podání nabídky Vám rádi vysvětlíme. Lokalita pod Haštalem se nachází v klidné části obce Želiv. V docházkové vzdálenosti je škola, školka, restaurace i obchody. Želiv je perfektně fungující obec s ideálním zázemím pro rodinný život. Výhodou je také poloha obce. Města Humpolec i Pelhřimov se nachází v dojezdové vzdálenosti 15 minut. Obcí protéká řeka Želivka. Na dohled od parcel stojí vodní nádrž Trnávka, která je oblíbenou destinací v letních měsících (koupání, rybolov i vodní sporty). Nepropásněte tuto jedinečnou příležitost a zajistěte si své místo pro stavbu domu. Pro více informací kontaktujte realitního specialistu. Ev. číslo: 27373.

Parametry pozemku

Cena
1 767 Kč /za metr čtvereční Spočítat hypotéku
Aktualizováno
10. 12. 2025
Adresa
Želiv
ID
27373
Lokalita objektu
Klidná část obce
Plocha pozemku
1211 m2
Odpad
Veřejná kanalizace
Voda
Vodovod

Kontaktovat makléře

Realitní kancelář

Logo Reality 11

Reality 11

Svornosti 985/8, Praha

Chystáte se prodat nemovitost?
Pomůžeme Vám!

Máte zájem o tento pozemek?

Tímto, v souladu s nařízením Evropského parlamentu a Rady (EU) 2016/679, v platném znění, prohlašuji, že mi je alespoň 16 let a uděluji tak svůj souhlas se zpracováním zadaných údajů (jméno, telefon, e-mail, ip adresa) společnosti B3 Technology, s.r.o., IČ: 07330600, se sídlem Novostavby 126/23, 435 11 Lom (správce dat), za účelem předání dotazu z tohoto formuláře Vámi vybranému inzerentovi a zpětného kontaktování mé osoby. Osobní údaje bude správce zpracovávat manuálně i automaticky přímo prostřednictvím svých zaměstnanců. Informace předané tímto formulářem budou uloženy v databázi správce maximálně po dobu 10 let. Odvolání souhlasu s uložením a zpracováním poskytnutých dat lze e-mailem na info@videobydleni.cz. V případě podezření na neoprávněné použití Vámi poskytnutých údajů máte právo předat podnět k šetření Úřadu pro ochranu osobních údajů. Více informací
Chystáte se prodat nemovitost?
Pomůžeme Vám!

Inzerát si prohlédlo 5 lidí

Prodejce

Radim Dalík

Radim Dalík

Hlídací pes

Chcete dostávat emailem podobné nabídky prodeje pozemků pro bydlení v Želivi?

Podobné nemovitosti


Nevyhovuje Vám typ pozemku? Podívejte se na jiné kategorie pozemků.