Prodej rodinného domu, Brno, Závist, 127 m2

Závist, Brno, Komín

11 399 000 Kč /za nemovitost HYPOTÉKA od 50 947 Kč /za měsíc

(včetně provize, včetně právního servisu)

Prémioví partneři v Brně

Informace k domu

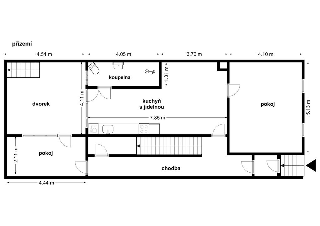
Nabízíme Vám k prodeji řadový zděný třípodlažní rodinný dům nacházející se v Brně v městské části Komín na klidné ulici Závist s velmi dobrou možností parkování nejen v garáži, ale také na vlastním pozemku před domem (2 parkovací místa).

Dispozice:

suterén - garáž 30.0, přízemí - vstupní chodba 7.7, obývací pokoj 15.4, pokoj 20.9 do ulice (orientace JJZ), jídelna 11.8 s kuchyňskou linkou, výstup na spodní terasu 18.8 (dále je venku skleník 13.5 a horní terasa 18.2 - orientace SSV), koupelna 4.0 se sprchovým koutem, umyvadlem a toaletou, skládek 16.5 m2, mezipatro - kuchyňka, patro - dva pokoje, koupelna s vanou, umyvadlem a toaletou.

Nemovité věci budou uvolněny a předány po dohodě s novým majitelem. Prohlídky nemovitých věcí jsou možné po předešlé telefonické domluvě s makléřem v podstatě kdykoli.

Parametry domu

Cena
11 399 000 Kč /za nemovitost Spočítat hypotéku
Poznámka k ceně
včetně provize, včetně právního servisu
Náklady na bydlení
7.000 Kč/měsíc
Aktualizováno
15. 10. 2025
Adresa
Závist, Brno, Komín
ID
ver1479RDK
Stavba
Cihlová
Stav objektu
Dobrý
Vybaveno
Částečně
Typ objektu
Patrový
Druh objektu
Řadový
Lokalita objektu
Klidná část obce
Užitná plocha
127 m2
Plocha pozemku
198 m2
Plocha zahrady
71 m2
Třída energetické náročnosti
G - Mimořádně nehospodárná
Elektřina
230V, 400V
Plyn
Plynovod
Odpad
Veřejná kanalizace
Topení
Ústřední plynové
Komunikace
Asfaltová
Telekomunikace
Internet, Kabelové rozvody
Doprava
Dálnice, Silnice, MHD, Autobus
Voda
Vodovod
Garáž
Terasa
Výtah
Parkování

Kontaktovat makléře

Máte zájem o tento dům?

Tímto, v souladu s nařízením Evropského parlamentu a Rady (EU) 2016/679, v platném znění, prohlašuji, že mi je alespoň 16 let a uděluji tak svůj souhlas se zpracováním zadaných údajů (jméno, telefon, e-mail, ip adresa) společnosti B3 Technology, s.r.o., IČ: 07330600, se sídlem Novostavby 126/23, 435 11 Lom (správce dat), za účelem předání dotazu z tohoto formuláře Vámi vybranému inzerentovi a zpětného kontaktování mé osoby. Osobní údaje bude správce zpracovávat manuálně i automaticky přímo prostřednictvím svých zaměstnanců. Informace předané tímto formulářem budou uloženy v databázi správce maximálně po dobu 10 let. Odvolání souhlasu s uložením a zpracováním poskytnutých dat lze e-mailem na info@videobydleni.cz. V případě podezření na neoprávněné použití Vámi poskytnutých údajů máte právo předat podnět k šetření Úřadu pro ochranu osobních údajů. Více informací
Chystáte se prodat nemovitost?
Pomůžeme Vám!

Inzerát si prohlédlo 22 lidí

Prodejce

Bc. Radim Ouředník

Bc. Radim Ouředník

Hlídací pes

Chcete dostávat emailem podobné nabídky prodeje rodinných domů v Brně?

Podobné nemovitosti


Nevyhovuje Vám typ domu? Podívejte se na jiné kategorie domů.


Vybrané články z našeho blogu