Pronájem bytu 3+kk, Praha - Hlubočepy, Dreyerova, 71 m2

Dreyerova, Hlubočepy - Praha 5

25 400 Kč /za měsíc Získejte výhodnou HYPOTÉKU

(vratná jistota, náklady na bydlení 8.501 Kč, poplatek za podnájem)

Prémioví partneři v Praze 5

Stěhovací služby

Výkup a prodej starého nábytku

Informace k bytu

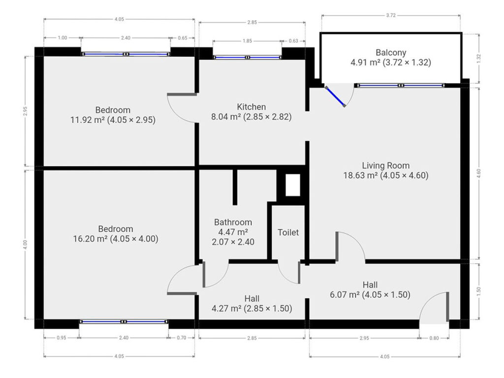
K dlouhodobému podnájmu nabízíme pěkný byt o dispozici 3+kk v klidné části Prahy, na adrese Dreyerova. Byt o celkové výměře 71 m2 se nachází v prvním patře panelového domu. K bytu patří i krásná lodžie a k dispozici je klimatizace.

Byt se nabízí částečně vybavený. Kuchyně disponuje elektrickou troubou, elektrickou varnou deskou, myčkou a úložným prostorem. V obývacím pokoji jsou k dispozici skříně. a ostatní ložnice jsou nezařízené. Součástí moderní koupelny je prostorný sprchový kout, umyvadlo a úložné skříňky. Toaleta je v samostatné místnosti.

V blízkosti je možné relaxovat nebo sportovat v Prokopském údolí.
V klidném okolí domu jsou základní a mateřské školy, lékárna, supermarkety Billa a Lidl, pošta atd. Dopravní dostupnost je zajištěna zastávkou Dreyerova, která je přímo u domu.

Byt je volný k nastěhování od 1.1.2026. Majitel preferuje zájemce bez domácích mazlíčků.

Uvedena energetická kategorie G, jelikož nemáme k dispozici PENB.

Byt pronajímá Ideální nájemce - služba, se kterou budete bydlet bezstarostně a za férových podmínek. Když se něco přihodí, k dispozici jsou správci, kteří s vámi vše vyřeší. Pomůžeme s veškerou administrativou, s nastavením plateb a zajistíme vám speciální pojištění. Pojďte bydlet s námi!

Parametry bytu

Cena
25 400 Kč /za měsíc
Poznámka k ceně
vratná jistota, náklady na bydlení 8.501 Kč, poplatek za podnájem
Aktualizováno
30. 9. 2025
Adresa
Dreyerova, Hlubočepy - Praha 5
ID
N3150
Stavba
Panelová
Stav objektu
Velmi dobrý
Patro
1. z 8
Vybaveno
Ne
Typ objektu
Patrový
Lokalita objektu
Klidná část obce
Vlastnictví
Osobní
Užitná plocha
71 m2
Podlahová plocha
71 m2
Elektřina
230V
Topení
Ústřední dálkové
Doprava
Vlak, Dálnice, Silnice, MHD, Autobus
Lodžie
Výtah

Kontaktovat makléře

Máte zájem o tento byt?

Tímto, v souladu s nařízením Evropského parlamentu a Rady (EU) 2016/679, v platném znění, prohlašuji, že mi je alespoň 16 let a uděluji tak svůj souhlas se zpracováním zadaných údajů (jméno, telefon, e-mail, ip adresa) společnosti B3 Technology, s.r.o., IČ: 07330600, se sídlem Novostavby 126/23, 435 11 Lom (správce dat), za účelem předání dotazu z tohoto formuláře Vámi vybranému inzerentovi a zpětného kontaktování mé osoby. Osobní údaje bude správce zpracovávat manuálně i automaticky přímo prostřednictvím svých zaměstnanců. Informace předané tímto formulářem budou uloženy v databázi správce maximálně po dobu 10 let. Odvolání souhlasu s uložením a zpracováním poskytnutých dat lze e-mailem na info@videobydleni.cz. V případě podezření na neoprávněné použití Vámi poskytnutých údajů máte právo předat podnět k šetření Úřadu pro ochranu osobních údajů. Více informací
Chystáte se prodat nemovitost?
Pomůžeme Vám!

Inzerát si prohlédlo 7 lidí

Prodejce

Miloslava Kačerová

Miloslava Kačerová

Hlídací pes

Chcete dostávat emailem podobné nabídky pronájmu bytů 3+kk v Praze 5?

Podobné nemovitosti


Nevyhovuje Vám typ bytu? Podívejte se na jiné kategorie bytů.


Vybrané články z našeho blogu