Vlasatice
Moderní rodinný dům 4+kk - pravý s vinným sklepem, zahradou a designovým poradenstvím – Vlasatice
Hledáte pohodlné, zdravé a úsporné bydlení pro svou rodinu v dojezdové vzdálenosti od Brna? Tato novostavba moderního řadového domu ve Vlasaticích si vás získá hned na první pohled – a nejen tím!
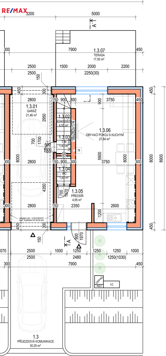
Dům o dispozici 4+kk a celkové užitné ploše 132 m² je součástí developerského projektu společnosti Service Stav Development, s.r.o., která má za sebou desítky úspěšných realizací po celé ČR. K domu náleží pozemek o výměře 220 m², kde najdete praktickou zahradu a dvě soukromá parkovací stání.
Proč právě tento dům?
✅ Energeticky úsporné bydlení – dům spadá do energetické třídy B. Vytápění a chlazení zajišťuje moderní tepelné čerpadlo, v kombinaci s elektrickým bojlerem s podporou fotovoltaické elektrárny. V přízemí i v patře je instalováno podlahové topení, což přispívá k velmi nízkým provozním nákladům.
✅ Kvalitní stavební materiály – dům je postaven z cihel Porotherm 30 a Porotherm 30 AKU, které zajišťují zdravé vnitřní prostředí a vysokou akustickou pohodu.
✅ Vinný sklep (2,5 × 3 m) – ideální místo pro uskladnění vína, stylové posezení s přáteli nebo jako praktický úložný prostor.
✅ Soukromá zahrada – prostor pro dětské hry, pěstování zeleniny, letní grilování nebo klidný odpočinek.
✅ Možnost instalace krbových kamen – dům je na jejich zapojení připraven.
✅ Příprava na venkovní žaluzie – komfortní a estetické řešení stínění pro ještě vyšší pohodlí.
✅ Konzultace s interiérovým designérem v ceně – součástí nabídky je konzultace se studiem Archouse, které vám pomůže přizpůsobit interiér domu přesně vašim představám.
✅ Flexibilní řešení soukromí – možnost individuálního provedení zábran mezi domy pro větší komfort a klid.
✅ Skvělá dostupnost do Brna – 25 minut autem do centra Brna díky přímému napojení na D52.
✅ Příjemná a klidná lokalita – obec Vlasatice nabízí základní občanskou vybavenost, bezpečné prostředí a blízkost přírody.
Financování & rezervační proces
Kupní cena je rozdělena do 3 splátek:
1) při podpisu rezervační smlouvy - 240 000,- Kč
-> kompletní specifikace domu dle individuálních požadavků
2) při podpisu smlouvy o smlouvě budoucí - 1 750 000,- Kč
3) po kompletním dokončení stavby a kolaudaci v červenci 2026 - 5 990 000,- Kč
Tento dům je připraven stát se novým domovem pro rodinu, která hledá kvalitní a bezpečné zázemí s rychlým dosahem do Brna a možností individuálního doladění interiéru.
Zaujala vás tato nabídka? Neváhejte mě kontaktovat a domluvte si prohlídku!
 
                                        Banskobystrická 819/52, Brno
Máte zájem o tento dům?
Inzerát si prohlédlo 13 lidí
 
                                Ing. Jan Sigmund
Chcete dostávat emailem podobné nabídky prodeje rodinných domů v Vlasaticích?