Prodej bytu 1+kk, Praha - Horní Měcholupy, Hornoměcholupská, 26 m2

Hornoměcholupská, Horní Měcholupy - Praha 15

5 100 000 Kč /za nemovitost HYPOTÉKA od 22 794 Kč /za měsíc

(včetně provize RK)

Prémioví partneři v Praze 10

Stěhovací služby

Výkup a prodej starého nábytku

Informace k bytu

Prodej hezkého bytu 1+kk/B/S, 26 m2, Praha 10 - Horní Měcholupy, Hornoměcholupská
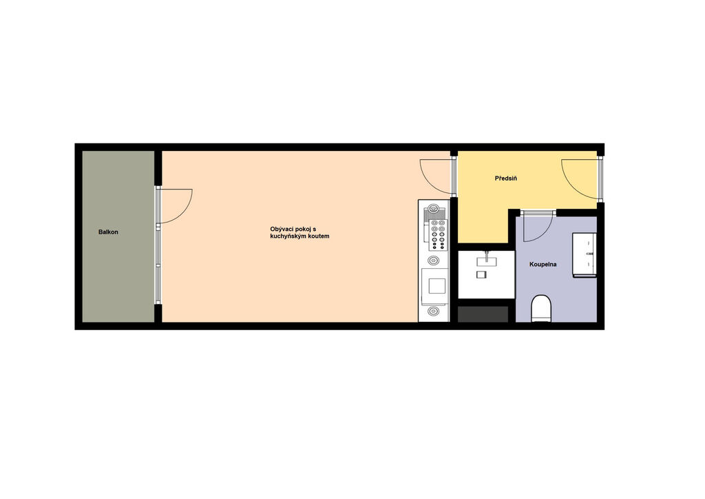
Hledáte vlastní dostupné bydlení v novostavbě? Toužíte po balkonu? Oceníte sklep?

Soccer Reality vám nabízí útulný byt, který se nachází ve 2. nadzemním podlaží moderní novostavby od CENTRAL GROUP v oblíbené Javorové čtvrti v Praze 10 – Horních Měcholupech. Byt se pyšní výhodnou polohou s výhledem do klidné části projektu, příjemnou východní orientací a balkonem o velikosti 5 m², ideálním pro ranní kávu nebo chvíle odpočinku.

Hlavní výhody: zateplený plášť budovy, plastová okna s izolačními dvojskly, centrální dálkové vytápění, bezpečnostní dveře NEXT, datové rozvody pro internet, praktická kuchyňská linka se spotřebiči, hezká laminátová plovoucí podlaha. V chodbě je praktická skříň. Koupelna je vybavena sprchovým koutem, pračkou a žebříčkovým radiátorem.

V ceně bytu je navíc vlastní uzamykatelný sklep (3,7 m2), ideální na uskladnění kol, lyží, nářadí, pneumatik a všeho ostatního.

Lokalita má vynikající dopravní dostupnost MHD. Na metro C – Háje a metro A – Strašnickou a Skalku jezdí autobusy 183, 154 a 175.

Veškerá občanská vybavenost je v místě. Kaufland, Retail Park. Dostatek zeleně, hřišť a sportovišť naleznete u blízké Hostivařské přehrady. Dostatek parkovacích míst je přímo u domu.

Prohlídky a rezervace jsou možné ihned.

Parametry bytu

Cena
5 100 000 Kč /za nemovitost Spočítat hypotéku
Poznámka k ceně
včetně provize RK
Aktualizováno
13. 10. 2025
Adresa
Hornoměcholupská, Horní Měcholupy - Praha 15
ID
N66102
Stavba
Cihlová
Stav objektu
Novostavba
Patro
2. z 5
Vybaveno
Částečně
Typ objektu
Patrový
Lokalita objektu
Klidná část obce
Vlastnictví
Osobní
Užitná plocha
26 m2
Podlahová plocha
35 m2
Třída energetické náročnosti
C - Úsporná
Elektřina
230V
Topení
Ústřední dálkové
Telekomunikace
Internet
Doprava
Vlak, Dálnice, Silnice, MHD, Autobus
Voda
Vodovod
Balkon
Sklep
Výtah
Bezbarierový přístup

Kontaktovat makléře

Máte zájem o tento byt?

Tímto, v souladu s nařízením Evropského parlamentu a Rady (EU) 2016/679, v platném znění, prohlašuji, že mi je alespoň 16 let a uděluji tak svůj souhlas se zpracováním zadaných údajů (jméno, telefon, e-mail, ip adresa) společnosti B3 Technology, s.r.o., IČ: 07330600, se sídlem Novostavby 126/23, 435 11 Lom (správce dat), za účelem předání dotazu z tohoto formuláře Vámi vybranému inzerentovi a zpětného kontaktování mé osoby. Osobní údaje bude správce zpracovávat manuálně i automaticky přímo prostřednictvím svých zaměstnanců. Informace předané tímto formulářem budou uloženy v databázi správce maximálně po dobu 10 let. Odvolání souhlasu s uložením a zpracováním poskytnutých dat lze e-mailem na info@videobydleni.cz. V případě podezření na neoprávněné použití Vámi poskytnutých údajů máte právo předat podnět k šetření Úřadu pro ochranu osobních údajů. Více informací
Chystáte se prodat nemovitost?
Pomůžeme Vám!

Inzerát si prohlédlo 97 lidí

Prodejce

Ing. Jaroslav Šesták

Ing. Jaroslav Šesták

Hlídací pes

Chcete dostávat emailem podobné nabídky prodeje bytů 1+kk v Praze 10?

Podobné nemovitosti


Nevyhovuje Vám typ bytu? Podívejte se na jiné kategorie bytů.


Vybrané články z našeho blogu