Prodej komerčního pozemku, Votice, 5037 m2

Votice, Buchov

5 790 000 Kč /za nemovitost HYPOTÉKA od 25 878 Kč /za měsíc
Prémioví partneři v Voticích

Informace k pozemku

Areál s podnikatelským i rezidenčním využitím – přímo u hlavní silnice E55 u Votic

Nabízíme oplocený areál o rozloze 3 345 m², který je díky svému umístění a charakteru ideální pro podnikání nejrůznějšího druhu – drobná výroba, skladování, parkování techniky, sídlo firmy, servisní zázemí nebo i ubytování pracovníků. V areálu se nachází dvě stavby – dva rodinné domy – které lze využít jak k bydlení, tak k podnikatelským účelům (např. kanceláře, provozovna, ubytovací zařízení).

Součástí prodeje jsou i dva navazující zemědělské pozemky o celkové výměře 1 692 m². Celkem tak získáte 5 037 m² pozemků, jejichž poloha a územní určení (zóna BV) umožňují široké využití v komerční sféře i pro další rozvoj.

Strategické umístění přímo u hlavní silnice E55 zajišťuje výbornou dopravní dostupnost, vysokou denní frekvenci (více než 15 000 projíždějících vozidel) a tím i skvělou viditelnost – ideální podmínky pro podnikání, které potřebuje být na očích. Další výraznou výhodou je plánovaný sjezd z dálnice D3 u Voračic, který v blízké budoucnosti ještě zlepší napojení na dálniční síť a zvýší atraktivitu této lokality.

Tato nemovitost je ideálním řešením pro podnikatele hledající spojení bydlení a podnikání na jednom místě, nebo investory se zájmem o komerční využití s potenciálem dalšího růstu.

Hlavní a přípustné doplňkové využití dle územního plánu (BV - bydlení v rodinných domech - venkovské):

– bydlení v rodinných domech a venkovských usedlostech
– drobná výroba bez negativního vlivu na okolí
– mechanické a řemeslné dílny
– skladování a technické zázemí
– parkování stavebních strojů a vozidel podnikatele
– hobby zemědělství a související hospodářské využití
– ubytování pracovníků
– ubytovací služby s parkováním na pozemku
– objekty obslužného charakteru


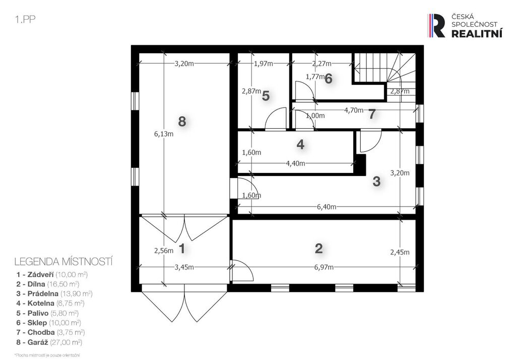
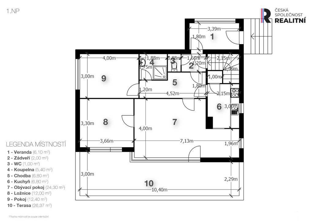
Stavby na pozemku:

– budova A: částečně zrekonstruovaná, plastová okna, zateplená fasáda
– ekologický kotel H8–A se zásobníkem, nízkoemisní řešení
– využitelná pro kancelář, zázemí firmy, ubytování pracovníků
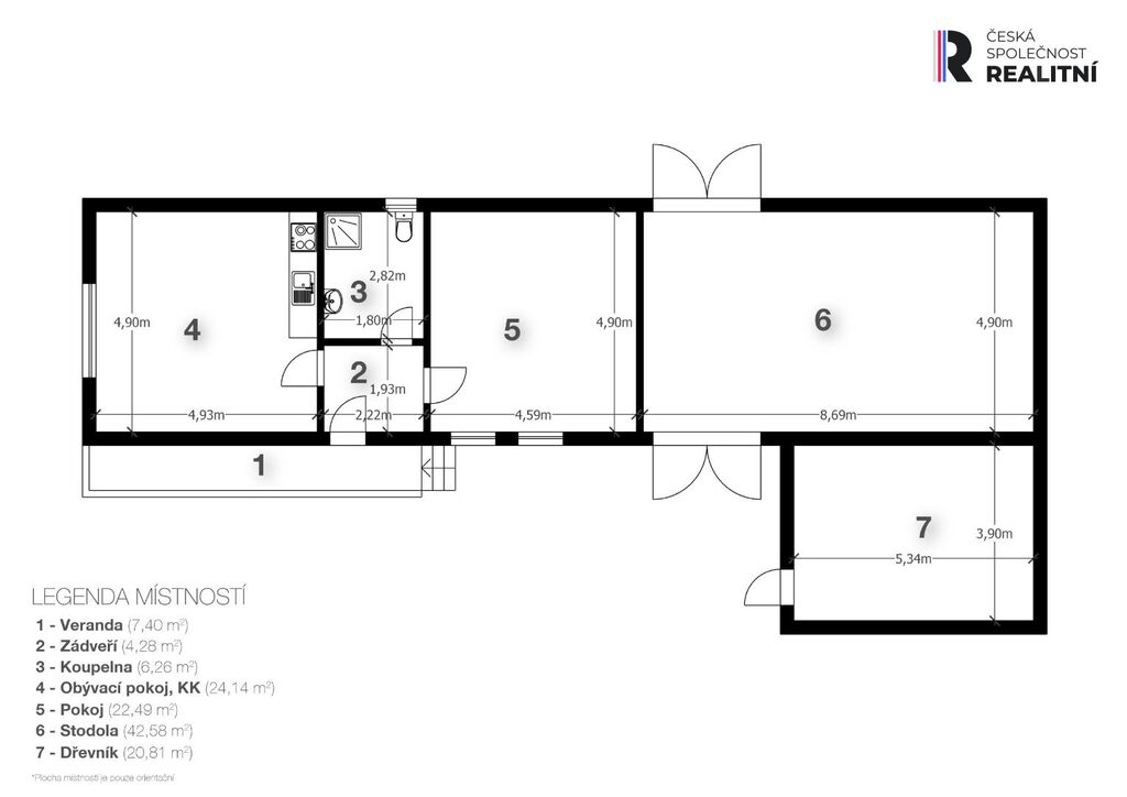
– budova B: určena k rekonstrukci
– navazuje na prostornou stodolu
– možnost dílny, garáží nebo skladu 


Technické vybavení:

– elektřina přivedena (3x25 A)
– voda zdarma z obecní studny
– odpad řešen vlastní jímkou
– mírně svažitý terén, celý areál oplocen, přímý vjezd z E55


Výhody nemovitosti:

– kombinace bydlení, ubytování a podnikání na jednom místě
– vysoká viditelnost u E55 s možností legální reklamy formou zaparkovaného vozidla s plachtou
– variabilní využití dle zóny BV
– možnost okamžitého provozu díky stavbě A
– připravené zázemí s možností přestavby
– v těsné blízkosti silnice E55 a nedaleko plánovaného napojení na D3
– přes pozemek vede elektrické vedení, kvůli čemuž je zde vymezeno ochranné pásmo I. stupně


Ideální pro drobné podnikatele, stavební firmy, servisní techniky, řemeslníky, e-shopy, provozy se sklady či ubytováním zaměstnanců. Energetická třída budovy G (PENB v přípravě).

Pro více informací nebo odkaz na webovou stránku nemovitosti nás neváhejte kontaktovat.

 

Parametry pozemku

Cena
5 790 000 Kč /za nemovitost Spočítat hypotéku
Aktualizováno
14. 10. 2025
Adresa
Votice, Buchov
ID
N90679
Stavba
Smíšená
Stav objektu
Před rekonstrukcí
Typ objektu
Patrový
Druh objektu
Samostatný
Lokalita objektu
Rušná část obce
Vlastnictví
Osobní
Plocha pozemku
5037 m2
Třída energetické náročnosti
G - Mimořádně nehospodárná
Elektřina
400V
Odpad
Jímka
Topení
Lokální tuhá paliva, Ústřední tuhá paliva
Komunikace
Asfaltová
Doprava
Silnice, Autobus
Voda
Místní zdroj vody
Garáž
Sklep
Bezbarierový přístup
Parkování

Kontaktovat makléře

Máte zájem o tento pozemek?

Tímto, v souladu s nařízením Evropského parlamentu a Rady (EU) 2016/679, v platném znění, prohlašuji, že mi je alespoň 16 let a uděluji tak svůj souhlas se zpracováním zadaných údajů (jméno, telefon, e-mail, ip adresa) společnosti B3 Technology, s.r.o., IČ: 07330600, se sídlem Novostavby 126/23, 435 11 Lom (správce dat), za účelem předání dotazu z tohoto formuláře Vámi vybranému inzerentovi a zpětného kontaktování mé osoby. Osobní údaje bude správce zpracovávat manuálně i automaticky přímo prostřednictvím svých zaměstnanců. Informace předané tímto formulářem budou uloženy v databázi správce maximálně po dobu 10 let. Odvolání souhlasu s uložením a zpracováním poskytnutých dat lze e-mailem na info@videobydleni.cz. V případě podezření na neoprávněné použití Vámi poskytnutých údajů máte právo předat podnět k šetření Úřadu pro ochranu osobních údajů. Více informací
Chystáte se prodat nemovitost?
Pomůžeme Vám!

Inzerát si prohlédlo 48 lidí

Prodejce

Michal Šebor

Michal Šebor

Hlídací pes

Chcete dostávat emailem podobné nabídky prodeje komerčních pozemků v Voticích?

Podobné nemovitosti


Nevyhovuje Vám typ pozemku? Podívejte se na jiné kategorie pozemků.


Vybrané články z našeho blogu