Prodej rodinného domu, Praha - Hostivař, Štěrboholská, 137 m2

Štěrboholská, Praha 10

13 900 000 Kč /za nemovitost HYPOTÉKA od 62 125 Kč /za měsíc
Prémioví partneři v Praze 10

Stěhovací služby

Výkup a prodej starého nábytku

Informace k domu

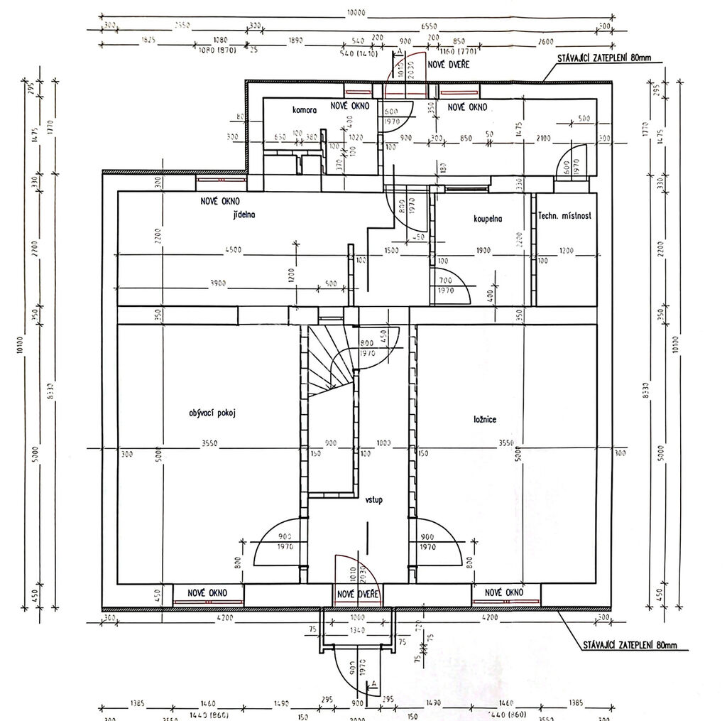
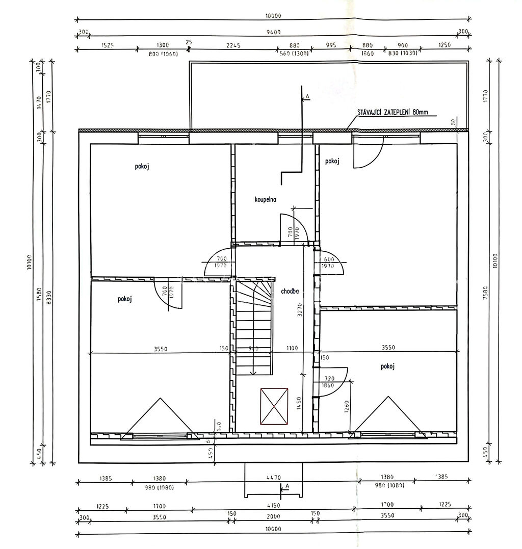
Nabízíme prodej útulného RD o velikosti 6+1, podlahová plocha 137 m2, Praha 10 - Hostivař. Pozemek 303 m2. Dům je dvou podlažní, kdy v roce 2001 se dělala kompletní rekonstrukce a nástavba horního podlaží. První podlaží domu je z cihel, přístavba do zahrady a horní podlaží jsou z Ytongu. Dům je dále zateplený polystyrénem (8 cm) a střecha 2x 8 cm vatou. Okna jsou plastová včetně předních a zadních dveří, elektřina je v mědi, odpady, vodovod jsou v plastu, elektrokotel 2x 4 kWh, bojler 160l z Dražic řízený spínačem HDO, do ulice jako krytina je betonová taška a do zahrady plechová střecha. Plovoucí podlahy v pokojích, jinak dlažba. Kuchyňská linka je z roku 2022. V přízemí domu je obývací pokoj, kuchyně, pokoj, chodba s předsíní, prostor pod schody, koupelna s vanou, samostatné WC, komora a technická místnost. V patře jsou čtyři pokoje a koupelna se sprchovým koutem a WC. Z jedné ložnice je výstup na terasu. Na pozemku za domem je dílna/sklad (7 m2) a parkovací přístřešek na auto. Předzahrádka má 54 m2 a pozemek za domem má 141 m2. Výborné spojení do centra Prahy. Zastávka autobusu je cca 2 min pěšky od domu a za dalších 6 min jste na Skalce na metru A. Hypoteční úvěr vám vyřídíme zdarma. Volejte a domluvte si prohlídku.

Parametry domu

Cena
13 900 000 Kč /za nemovitost Spočítat hypotéku
Aktualizováno
7. 11. 2025
Adresa
Štěrboholská, Praha 10
ID
16211
Stavba
Cihlová
Stav objektu
Velmi dobrý
Typ objektu
Přízemní
Druh objektu
Řadový
Lokalita objektu
Klidná část obce
Užitná plocha
137 m2
Zastavěná plocha
98 m2
Podlahová plocha
153 m2
Plocha pozemku
303 m2
Plocha zahrady
195 m2
Třída energetické náročnosti
G - Mimořádně nehospodárná
Elektřina
230V, 400V
Odpad
Veřejná kanalizace
Komunikace
Asfaltová
Doprava
Vlak, Dálnice, Silnice, MHD, Autobus
Voda
Vodovod
Převod do OV

Kontaktovat makléře

Realitní kancelář

Logo QARA, s.r.o.

QARA, s.r.o.

Šafaříkova 201/17, Praha

Chystáte se prodat nemovitost?
Pomůžeme Vám!

Máte zájem o tento dům?

Tímto, v souladu s nařízením Evropského parlamentu a Rady (EU) 2016/679, v platném znění, prohlašuji, že mi je alespoň 16 let a uděluji tak svůj souhlas se zpracováním zadaných údajů (jméno, telefon, e-mail, ip adresa) společnosti B3 Technology, s.r.o., IČ: 07330600, se sídlem Novostavby 126/23, 435 11 Lom (správce dat), za účelem předání dotazu z tohoto formuláře Vámi vybranému inzerentovi a zpětného kontaktování mé osoby. Osobní údaje bude správce zpracovávat manuálně i automaticky přímo prostřednictvím svých zaměstnanců. Informace předané tímto formulářem budou uloženy v databázi správce maximálně po dobu 10 let. Odvolání souhlasu s uložením a zpracováním poskytnutých dat lze e-mailem na info@videobydleni.cz. V případě podezření na neoprávněné použití Vámi poskytnutých údajů máte právo předat podnět k šetření Úřadu pro ochranu osobních údajů. Více informací
Chystáte se prodat nemovitost?
Pomůžeme Vám!

Inzerát si prohlédlo 11 lidí

Prodejce

Aleš Hanzlíček

Aleš Hanzlíček

Hlídací pes

Chcete dostávat emailem podobné nabídky prodeje rodinných domů v Praze 10?

Podobné nemovitosti


Nevyhovuje Vám typ domu? Podívejte se na jiné kategorie domů.


Vybrané články z našeho blogu