Prodej rodinného domu, Votice, 291 m2

Votice, Buchov

5 790 000 Kč /za nemovitost HYPOTÉKA od 25 878 Kč /za měsíc
Prémioví partneři v Voticích

Informace k domu

Rodinný dům s možností podnikání u Votic, přímo u E55

Nabízíme k prodeji rozlehlý areál o celkové ploše 5 037 m², ideální pro bydlení i podnikání. Z toho 3 345 m² tvoří oplocený funkční celek s rodinným domem a navazující stodolou. Součástí nabídky jsou i dvě přilehlé zemědělské parcely o výměře 1 692 m².

Nemovitost se nachází v obci nedaleko Votic, přímo u frekventované silnice E55. Díky tomu nabízí výbornou viditelnost, snadnou dostupnost a atraktivní komerční potenciál. Lokalita zároveň zaručuje soukromí a dostatek prostoru pro rodinné zázemí.

Do budoucna je plánováno napojení této oblasti na dálnici D3, což ještě zvýší její dopravní atraktivitu.

Vhodné pro rodinné bydlení i podnikatelské aktivity:

Lokalita je dle územního plánu zařazena do zóny BV (bydlení v rodinných domech - venkovské), což umožňuje kombinaci pohodlného bydlení s podnikatelskými záměry.

Hlavní výhody nemovitosti:

-Možnost kombinace bydlení, podnikání i ubytování zaměstnanců
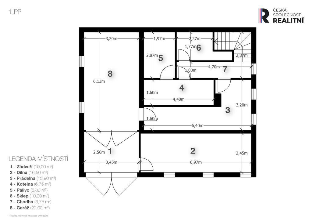
-Rodinný dům: zateplená fasáda, plastová okna, ekologický kotel H8-A se zásobníkem, vhodný pro bydlení, kancelář nebo ubytování
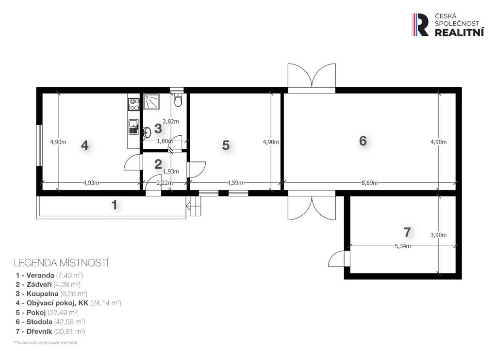
-Navazující stodola: určena k rekonstrukci – možné využití jako dílna, sklad nebo garáž
-Elektřina 3x25 A, voda zadarmo z obecní studny, odpad řešen vlastní jímkou
-Přímý vjezd z E55, oplocený areál (3 345 m²), mírně svažitý terén
-Budoucí sjezd dálnice D3 pouze 8km


Využití dle územního plánu zahrnuje:

-Bydlení v rodinných domech
-Drobná výroba bez negativního vlivu na okolí
-Dílna, sklady, technické zázemí, parkování techniky
-Hobby zemědělství a hospodářské využití
-Ubytování zaměstnanců, ubytovací služby s parkováním 


Ideální pro: rodiny hledající bydlení s možností podnikat z domova, stavební nebo servisní firmy, e-shopy, řemeslníky či menší provozy.

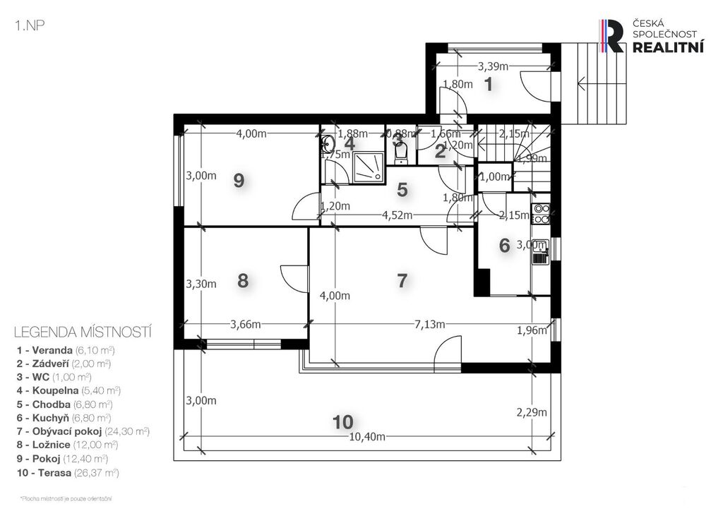
Velikosti místností vycházejí ze zaměření skutečného stavu a jsou uvedeny v přiloženém plánku.

Více informací nebo odkaz na webovou stránku nemovitosti rádi poskytneme na vyžádání.

Parametry domu

Cena
5 790 000 Kč /za nemovitost Spočítat hypotéku
Aktualizováno
14. 10. 2025
Adresa
Votice, Buchov
ID
N90692
Stavba
Dřevěná
Stav objektu
Dobrý
Typ objektu
Patrový
Druh objektu
Samostatný
Lokalita objektu
Rušná část obce
Vlastnictví
Osobní
Užitná plocha
291 m2
Zastavěná plocha
313 m2
Plocha pozemku
5037 m2
Plocha zahrady
3345 m2
Třída energetické náročnosti
F - Velmi nehospodárná
Elektřina
400V
Odpad
Jímka
Topení
Lokální tuhá paliva, Ústřední tuhá paliva
Komunikace
Asfaltová
Doprava
Silnice, Autobus
Voda
Místní zdroj vody
Garáž
Sklep
Bezbarierový přístup
Parkování

Kontaktovat makléře

Máte zájem o tento dům?

Tímto, v souladu s nařízením Evropského parlamentu a Rady (EU) 2016/679, v platném znění, prohlašuji, že mi je alespoň 16 let a uděluji tak svůj souhlas se zpracováním zadaných údajů (jméno, telefon, e-mail, ip adresa) společnosti B3 Technology, s.r.o., IČ: 07330600, se sídlem Novostavby 126/23, 435 11 Lom (správce dat), za účelem předání dotazu z tohoto formuláře Vámi vybranému inzerentovi a zpětného kontaktování mé osoby. Osobní údaje bude správce zpracovávat manuálně i automaticky přímo prostřednictvím svých zaměstnanců. Informace předané tímto formulářem budou uloženy v databázi správce maximálně po dobu 10 let. Odvolání souhlasu s uložením a zpracováním poskytnutých dat lze e-mailem na info@videobydleni.cz. V případě podezření na neoprávněné použití Vámi poskytnutých údajů máte právo předat podnět k šetření Úřadu pro ochranu osobních údajů. Více informací
Chystáte se prodat nemovitost?
Pomůžeme Vám!

Inzerát si prohlédlo 27 lidí

Prodejce

Michal Šebor

Michal Šebor

Hlídací pes

Chcete dostávat emailem podobné nabídky prodeje rodinných domů v Voticích?

Podobné nemovitosti


Nevyhovuje Vám typ domu? Podívejte se na jiné kategorie domů.


Vybrané články z našeho blogu