Prodej rodinného domu, Orlické Podhůří, 267 m2

Orlické Podhůří, Dobrá Voda

12 990 000 Kč /za nemovitost HYPOTÉKA od 58 057 Kč /za měsíc
Prémioví partneři v Orlickém Podhůří

Informace k domu

Nabízím k prodeji unikátní rodinný dům zkolaudovaný jako rodinný dům s ubytováním v soukromí, který lze po úpravách případně překolaudovat na ubytovací zařízení. Tato nemovitost nabízí široké možnosti využití – ideální pro bydlení s podnikáním nebo jako investice na krátkodobé i dlouhodobé pronájmy. Dosud dům hostil jógové pobyty, seberozvojové víkendy a kurzy vyváženého vaření pro max. 15 osob. Společenská místnost v patře je právě pro taková setkávání vhodná.

Hlavní benefity:
Dvě samostatné ubytovací jednotky s vlastním vstupem, koupelnou a přípravou na kuchyňský kout (jeden pokoj v přízemí, druhý v patře). Každý má vlastní elektroměr a je oddělen protipožárními dveřmi. Okna jsou plastová s trojskly. Dům je kompletně odizolován (jak podlahy, tak vnější zdi domu).

Prostorové dispozice domu:
Přízemí: vstupní chodba, společenská místnost s kuchyňským koutem, kachlovými kamny (plotna i topná část/pec), spíž, ložnice s vlastní koupelnou, samostatná toaleta, koupelna, prádelna, technická místnost, kotelna, uhelna a stodola.
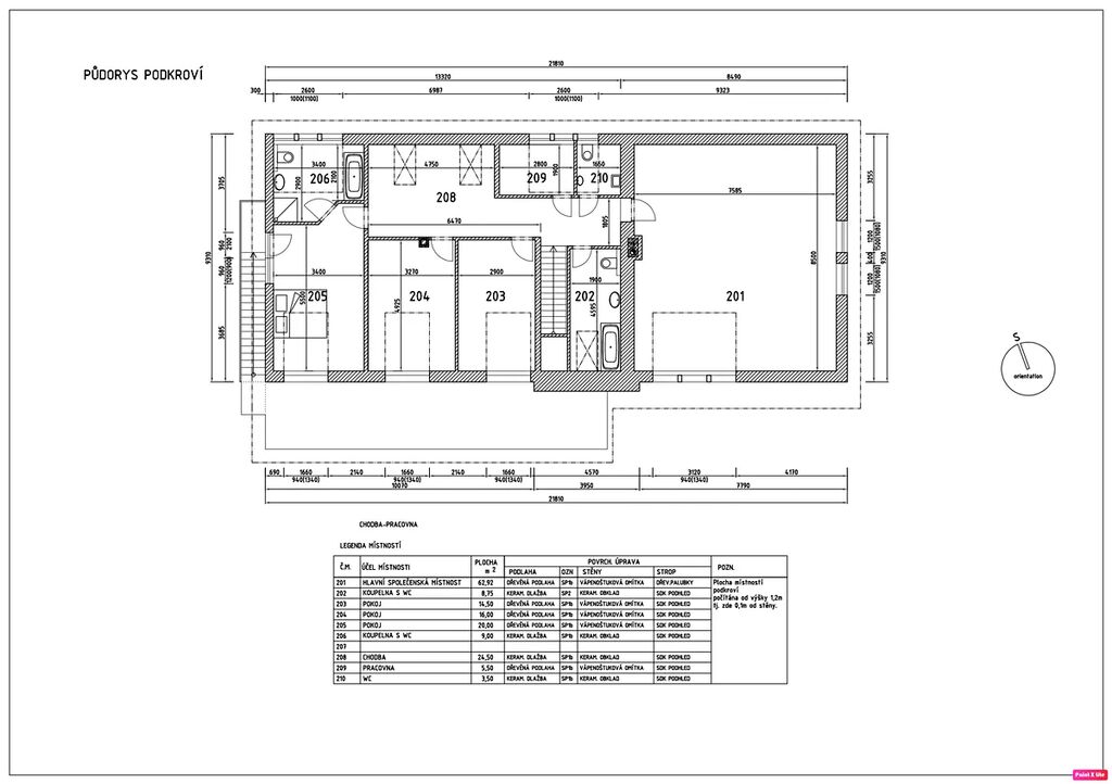
Patro: chodba, společenská místnost (cca 63 m2 - viz půdorys), pracovna, dvě ložnice bez koupelny, jedna ložnice s vlastní koupelnou, samostatná toaleta a koupelna.
Pod domem je původní sklep na uchovávání ovoce a zeleniny.

Flexibilní možnost vytápění: kachlová kamna, plynový kotel nebo kotel na uhlí se zásobníkem. Bojler lze přepnout na elektřinu.

Moderní povrchy: Dřevěné podlahy v obytných místnostech, dlažba s podlahovým vytápěním v koupelnách a chodbách.

Zahrada jako ráj pro pěstitele i relaxaci - rozlehlá zahrada je plná vzrostlých stromů (jabloně, hrušně, třešně, švestky, ořešáky, broskvoň a další) a obhospodařovaných záhonků. Na pozemku stojí zrekonstruovaná maringotka, která slouží jako sklad v zimě a přes léto může být využita na přespání, a zahradní domek na nářadí. Dešťová voda je jímána do staré jímky a využívána na zavlažování zahrady.

Technické zázemí / zasíťování:
Napojení na vodovod, elektřinu a plyn.
Vyvážecí jímka (obec má již projekt na kanalizaci).
Příprava na splachování dešťovou vodou.

Díky předchozí rekonstrukci Vám dům nabídne moderní komfort při stále zachovaném autentickém vzhledu.
Tento dům je ideální pro ty, kteří hledají prostorné bydlení s možností podnikání, případně zajímavou investici do nemovitosti s vysokým výnosovým potenciálem.

Parametry domu

Cena
12 990 000 Kč /za nemovitost Spočítat hypotéku
Aktualizováno
18. 11. 2025
Adresa
Orlické Podhůří, Dobrá Voda
ID
18324
Stavba
Smíšená
Stav objektu
Po rekonstrukci
Lokalita objektu
Centrum obce
Užitná plocha
267 m2
Zastavěná plocha
542 m2
Plocha pozemku
2674 m2
Elektřina
230V
Plyn
Plynovod
Odpad
Jímka
Komunikace
Asfaltová
Doprava
Silnice, Autobus
Voda
Vodovod, Retenční nádrž na dešt’ovou vodu
Topné těleso
Podlahové vytápění, Radiátory, Kamna
Zdroj topení
Plynový kondenzační kotel, Kotel na tuhá paliva, Kamna
Zdroj teplé vody
Plynový kondenzační kotel, Kotel na tuhá paliva
Sklep
Parkování

Kontaktovat makléře

Realitní kancelář

Nemox

Gorkého 66/17, Brno, Veveří

Chystáte se prodat nemovitost?
Pomůžeme Vám!

Máte zájem o tento dům?

Tímto, v souladu s nařízením Evropského parlamentu a Rady (EU) 2016/679, v platném znění, prohlašuji, že mi je alespoň 16 let a uděluji tak svůj souhlas se zpracováním zadaných údajů (jméno, telefon, e-mail, ip adresa) společnosti B3 Technology, s.r.o., IČ: 07330600, se sídlem Novostavby 126/23, 435 11 Lom (správce dat), za účelem předání dotazu z tohoto formuláře Vámi vybranému inzerentovi a zpětného kontaktování mé osoby. Osobní údaje bude správce zpracovávat manuálně i automaticky přímo prostřednictvím svých zaměstnanců. Informace předané tímto formulářem budou uloženy v databázi správce maximálně po dobu 10 let. Odvolání souhlasu s uložením a zpracováním poskytnutých dat lze e-mailem na info@videobydleni.cz. V případě podezření na neoprávněné použití Vámi poskytnutých údajů máte právo předat podnět k šetření Úřadu pro ochranu osobních údajů. Více informací
Chystáte se prodat nemovitost?
Pomůžeme Vám!

Inzerát si prohlédlo 22 lidí

Prodejce

Jan Víšek

Jan Víšek

Hlídací pes

Chcete dostávat emailem podobné nabídky prodeje rodinných domů v Orlickém Podhůří?

Podobné nemovitosti


Nevyhovuje Vám typ domu? Podívejte se na jiné kategorie domů.


Vybrané články z našeho blogu