Prodej rodinného domu, Žiželice - Končice, 483 m2

Žiželice, Končice

4 250 000 Kč /za nemovitost HYPOTÉKA od 18 995 Kč /za měsíc

(včetně odměny RK)

Prémioví partneři v Žiželicích

Informace k domu

Přednosti: velká stodola a vedlejší stavby pro využití domu k podnikání

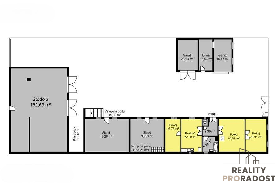
Na prodej rodinný dům s obytnou částí a vedlejšími stavbami na pozemku o celkové výměře 1 124 m², nacházející se v obci Žiželice, okres Kolín.

Tato nemovitost tvoří komplex budov – hlavní obytný dům, navazující hospodářská část se sýpkou v patře, prostorná stodola umístěná za domem a samostatně stojící objekt - dílna a garáže.

Obytná část o dispozici 3+1 má celkovou užitnou plochu 107 m² a je ve velmi udržovaném stavu. Nachází se zde:

průchozí kuchyně s jídelnou
prostorný obytný pokoj
dvě ložnice
vstupní chodba
koupelna a WC

Vytápění je řešeno lokálně – kamny v jednotlivých místnostech. Dům je napojen na elektřinu, zdrojem vody je vlastní studna ale je možné dům napojit na vodovodní řad. Plyn je před domem. K domu je přivedena kanalizace a je jen potřeba se na tuto kanalizaci napojit.

Pozemek o rozloze 1 124 m². Zastavěná plocha činí celkem 483 m² – hlavní budova 242 m², stodola 173 m² a vedlejší stavba 68 m².

Občanská vybavenost a dopravní dostupnost
V samotných Žiželicích naleznete základní služby včetně obchodů, mateřské i základní školy. Kompletní občanskou vybavenost včetně supermarketů Lidl a Penny Market poskytuje nedaleký Chlumec nad Cidlinou (cca 7 km). Zde se také nachází vlakové nádraží. Další železniční spojení je možné ze stanice Převýšov. Před domem je k dispozici autobusová zastávka. Velkým benefitem je rychlé napojení na dálnici D11 – ideální pro ty, kteří pravidelně dojíždějí do Prahy nebo Hradce Králové.

Zaujala Vás tato příležitost? Neváhejte mě kontaktovat, rád Vám sdělím více informací a domluvím osobní prohlídku.

Realitní makléř
Martin Socha

Parametry domu

Cena
4 250 000 Kč /za nemovitost Spočítat hypotéku
Poznámka k ceně
včetně odměny RK
Aktualizováno
18. 11. 2025
Adresa
Žiželice, Končice
ID
26894
Stavba
Cihlová
Stav objektu
Dobrý
Typ objektu
Přízemní
Druh objektu
Řadový
Užitná plocha
483 m2
Plocha pozemku
1124 m2
Třída energetické náročnosti
G - Mimořádně nehospodárná
Elektřina
400V
Odpad
Veřejná kanalizace
Voda
Studna
Převod do OV

Kontaktovat makléře

Máte zájem o tento dům?

Tímto, v souladu s nařízením Evropského parlamentu a Rady (EU) 2016/679, v platném znění, prohlašuji, že mi je alespoň 16 let a uděluji tak svůj souhlas se zpracováním zadaných údajů (jméno, telefon, e-mail, ip adresa) společnosti B3 Technology, s.r.o., IČ: 07330600, se sídlem Novostavby 126/23, 435 11 Lom (správce dat), za účelem předání dotazu z tohoto formuláře Vámi vybranému inzerentovi a zpětného kontaktování mé osoby. Osobní údaje bude správce zpracovávat manuálně i automaticky přímo prostřednictvím svých zaměstnanců. Informace předané tímto formulářem budou uloženy v databázi správce maximálně po dobu 10 let. Odvolání souhlasu s uložením a zpracováním poskytnutých dat lze e-mailem na info@videobydleni.cz. V případě podezření na neoprávněné použití Vámi poskytnutých údajů máte právo předat podnět k šetření Úřadu pro ochranu osobních údajů. Více informací
Chystáte se prodat nemovitost?
Pomůžeme Vám!

Inzerát si prohlédlo 32 lidí

Prodejce

Martin Socha

Martin Socha

Hlídací pes

Chcete dostávat emailem podobné nabídky prodeje rodinných domů v Žiželicích (okr. Kolín)?

Podobné nemovitosti


Nevyhovuje Vám typ domu? Podívejte se na jiné kategorie domů.


Vybrané články z našeho blogu