Prodej domu na klíč, Hustopeče, 230 m2 (ID: 3972259)

Hustopeče u Brna

Cena na vyžádání /za nemovitost Získejte výhodnou HYPOTÉKU

(Včetně provize RK a právního servisu)

Prémioví partneři v Hustopečích

Informace k domu

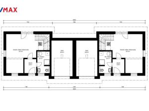
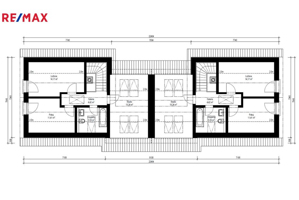
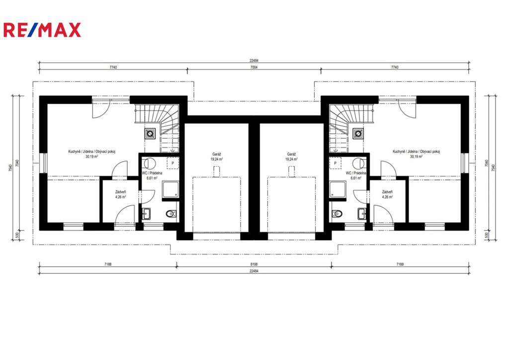
Ve spolupráci s německou firmou Haas Fertigbau Vám nabízíme nízkoenergetický dvojdům o dispozici 2x 4+kk, s zastavěnou plochou 170 m² a užitnou plochou 230 m². Je zde možnost klientské úpravy domu a vyřízení dotace z programu Zelená úsporám. Dodací lhůta domu je 10 měsíců.

Nabízíme stavební pozemek o rozloze 1289 m² přímo v srdci Hustopečí. S uliční šířkou 22 m a kompletními inženýrskými sítěmi na hranici pozemku (elektřina, voda, kanalizace). Pozemek je možné dále dělit.

Dle územního plánu je zde možnost výstavby patrového domu se zastavěností až 40%. Pozemek je částečně rovinatý a částečně svažitý. A to vše s výhledem na město a v blízkosti malebných vinných sklepů.

Vytvořte si domov, který bude odrazem vašich snů a přání. Kontaktujte pro více informací či osobní schůzku
Uvedená výměra je orientační, Vizualizace použité v inzerci jsou zobrazuji možnost výstavby domu, který je možné upravit dle potřeb klienta. V případě dotazů se neváhejte ozvat na uvedený kontakt v inzerci

Parametry domu

Cena
Cena na vyžádání Spočítat hypotéku
Poznámka k ceně
Včetně provize RK a právního servisu
Aktualizováno
21. 9. 2025
Adresa
Hustopeče u Brna
ID
197-NP05013
Stavba
Dřevěná
Stav objektu
Projekt
Vybaveno
Ne
Typ objektu
Patrový
Druh objektu
Řadový
Lokalita objektu
Klidná část obce
Užitná plocha
230 m2
Zastavěná plocha
170 m2
Plocha pozemku
1289 m2
Plocha zahrady
960 m2
Třída energetické náročnosti
A - Mimořádně úsporná
Ukazatel energetické náročnosti
18700 kWh/m2 za rok
Elektřina
230V
Komunikace
Asfaltová
Telekomunikace
Internet
Doprava
Vlak, Dálnice, Silnice, MHD, Autobus
Voda
Vodovod
Převod do OV
Parkování
Nízkoenergetický

Kontaktovat makléře

Realitní kancelář

Logo RE/MAX Magnum

RE/MAX Magnum

Banskobystrická 819/52, Brno

Chystáte se prodat nemovitost?
Pomůžeme Vám!

Máte zájem o tento dům?

Tímto, v souladu s nařízením Evropského parlamentu a Rady (EU) 2016/679, v platném znění, prohlašuji, že mi je alespoň 16 let a uděluji tak svůj souhlas se zpracováním zadaných údajů (jméno, telefon, e-mail, ip adresa) společnosti B3 Technology, s.r.o., IČ: 07330600, se sídlem Novostavby 126/23, 435 11 Lom (správce dat), za účelem předání dotazu z tohoto formuláře Vámi vybranému inzerentovi a zpětného kontaktování mé osoby. Osobní údaje bude správce zpracovávat manuálně i automaticky přímo prostřednictvím svých zaměstnanců. Informace předané tímto formulářem budou uloženy v databázi správce maximálně po dobu 10 let. Odvolání souhlasu s uložením a zpracováním poskytnutých dat lze e-mailem na info@videobydleni.cz. V případě podezření na neoprávněné použití Vámi poskytnutých údajů máte právo předat podnět k šetření Úřadu pro ochranu osobních údajů. Více informací
Chystáte se prodat nemovitost?
Pomůžeme Vám!

Inzerát si prohlédlo 11 lidí

Prodejce

Ing. Jan Sigmund

Ing. Jan Sigmund

Hlídací pes

Chcete dostávat emailem podobné nabídky prodeje domů na klíč v Hustopečích?


Nevyhovuje Vám typ domu? Podívejte se na jiné kategorie domů.


Vybrané články z našeho blogu