Prodej pozemku pro bydlení, Šestajovice, 1008 m2 (ID: 3976249)

Šestajovice u Prahy

10 600 000 Kč /za nemovitost HYPOTÉKA od 47 376 Kč /za měsíc
Prémioví partneři v Šestajovicích

Informace k pozemku

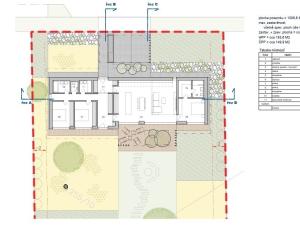
Jediný volný pozemek v Šestajovicích v lokalitě za Billou o ploše 1 008 m2 a to s možností dokoupení studie moderního bungalovu o ploše 184 m2 od architektonického studia EXA. Zajištění stavebního povolení a výstavba domu na klíč jsou také možné. Samotný pozemek je za 10 600 000 Kč, dům postavený na klíč včetně pozemku je přibližně za 26 000 000 Kč s předpokládaným dokončením 1 rok od vydání stavebního povolení.

Představte si, že se probouzíte v nádherném prostředí Šestajovic, v prestižní lokalitě V cestách u Billy. Máme pro vás jedinečnou příležitost – atraktivní stavební pozemek, kde můžete postavit svůj vysněný domov.

Pozemek má plochu 1 008 m², ideální tvar (cca 30 x 34 m) a zastavěnost až 30%. Protihluková stěna podél Revoluční ulice je již hotová a zkolaudovaná. Vodovod a kanalizace jsou vybudované, chodníky a osvětlení hotové, komunikace už mají finální povrch. Zbývá už jen elektřina od ČEZ, ta bude předána začátkem roku 2026. 

Pokud si budete přát, můžete si od majitele dokoupit i architektonickou studii od od renomovaného studia Expert Architects (EXA) a také zajištění stavebního povolení na vyprojektovaný dům. Moderní bungalov má hrubou podlahovou plochu 184 m2 a čistou 150 m2, dřevěná terasa bude mít 48 m2. Dispozice bude 4+kk, nechybí 2 koupelny, šatna nebo technická místnost. Parkování v severní části pozemku je koncipováno jako přístřešek pro 2 automobily. Vytápění a ohřev vody obstará tepelné čerpadlo vzduch-voda, počítá se s podlahovým vytápěním.

Pokud se rozhodnete přijít k hotovému, rádi vám i dům postavíme a cena na klíč včetně pozemku bude asi 26 000 000 Kč. V ceně jsou terénní úpravy a zatravnění, zpevněné plochy,  oplocení černým drátěným plotem s podhrabovými deskami včetně vrat a vrátek v barvě černé. Kuchyně v podobě přípravy vyvedených médií v rohu u kuchyně, koupelny budou komplet hotové, podlahové krytiny také (vinyl).

Pomůžeme i s případným financováním. 

Architektonickou studii a výčet standardů domu vám rád zašlu. Stejně tak vám rád ukáži pozemek přímo na místě. 

Parametry pozemku

Cena
10 600 000 Kč /za nemovitost Spočítat hypotéku
Aktualizováno
15. 9. 2025
Adresa
Šestajovice u Prahy
ID
00662
Vybaveno
Ne
Plocha pozemku
1008 m2
Elektřina
230V
Odpad
Veřejná kanalizace
Doprava
Dálnice, Silnice, MHD, Autobus
Voda
Vodovod, Retenční nádrž na dešt’ovou vodu
Převod do OV

Kontaktovat makléře

Máte zájem o tento pozemek?

Tímto, v souladu s nařízením Evropského parlamentu a Rady (EU) 2016/679, v platném znění, prohlašuji, že mi je alespoň 16 let a uděluji tak svůj souhlas se zpracováním zadaných údajů (jméno, telefon, e-mail, ip adresa) společnosti B3 Technology, s.r.o., IČ: 07330600, se sídlem Novostavby 126/23, 435 11 Lom (správce dat), za účelem předání dotazu z tohoto formuláře Vámi vybranému inzerentovi a zpětného kontaktování mé osoby. Osobní údaje bude správce zpracovávat manuálně i automaticky přímo prostřednictvím svých zaměstnanců. Informace předané tímto formulářem budou uloženy v databázi správce maximálně po dobu 10 let. Odvolání souhlasu s uložením a zpracováním poskytnutých dat lze e-mailem na info@videobydleni.cz. V případě podezření na neoprávněné použití Vámi poskytnutých údajů máte právo předat podnět k šetření Úřadu pro ochranu osobních údajů. Více informací
Chystáte se prodat nemovitost?
Pomůžeme Vám!

Inzerát si prohlédlo 4 lidí

Prodejce

Ing. Zdeněk Hašek

Ing. Zdeněk Hašek

Hlídací pes

Chcete dostávat emailem podobné nabídky prodeje pozemků pro bydlení v Šestajovicích (okr. Praha-východ)?

Podobné nemovitosti


Nevyhovuje Vám typ pozemku? Podívejte se na jiné kategorie pozemků.


Vybrané články z našeho blogu