Pronájem bytu 1+kk, Praha - Vinohrady, Soběslavská, 20 m2 (ID: 3985036)

Soběslavská, Vinohrady - Praha 3

14 000 Kč /za měsíc Získejte výhodnou HYPOTÉKU

(vratná jistota, náklady na bydlení 4 512 Kč, poplatek za podnájem)

Prémioví partneři v Praze 3

Stěhovací služby

Výkup a prodej starého nábytku

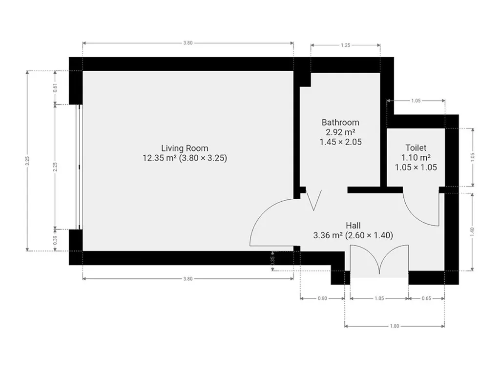
Informace k bytu

Nabízíme k podnájmu vybavený byt 1+kk o velikosti 20 m², který se nachází ve 3. patře cihlového domu s výtahem. Byt je ideální pro jednotlivce nebo pár hledající klidné bydlení v atraktivní lokalitě s výbornou dopravní dostupností.

Při vstupu do bytu je k dispozici menší šatní skříň a botník. Hlavní obytná místnost je propojena s kuchyňským koutem, kde se nachází trouba, varná deska, varná konvice a lednice. V pokoji jsou praktické úložné skříňky a rozkládací sedací souprava vhodná ke každodennímu spaní.

Byt se nachází v žádané lokalitě pražských Vinohrad. Stanice metra A – Želivského je vzdálena 4 minuty chůze, tramvajová zastávka Olšanské hřbitovy je taktéž do 4 minut. Obchodní centrum Flora je vzdálené cca 15 minut chůze. V okolí najdete množství kaváren, restaurací a obchodů.

Byt je volný od 01.06.2026.

Uvedena energetická kategorie G, jelikož nemáme k dispozici PENB.

Byt pronajímá Ideální nájemce - služba, se kterou budete bydlet bezstarostně a za férových podmínek. Když se něco přihodí, k dispozici jsou správci, kteří s vámi vše vyřeší. Pomůžeme s veškerou administrativou, s nastavením plateb a zajistíme vám speciální pojištění. Pojďte bydlet s námi!

Parametry bytu

Cena
14 000 Kč /za měsíc
Poznámka k ceně
vratná jistota, náklady na bydlení 4 512 Kč, poplatek za podnájem
Aktualizováno
2. 3. 2026
Adresa
Soběslavská, Vinohrady - Praha 3
ID
N6458
Stavba
Cihlová
Stav objektu
Dobrý
Patro
3. z 7
Vybaveno
Částečně
Typ objektu
Patrový
Lokalita objektu
Klidná část obce
Vlastnictví
Osobní
Užitná plocha
20 m2
Podlahová plocha
20 m2
Třída energetické náročnosti
G - Mimořádně nehospodárná
Elektřina
230V
Topení
Ústřední elektrické
Doprava
Vlak, Dálnice, Silnice, MHD, Autobus
Výtah

Kontaktovat makléře

Máte zájem o tento byt?

Tímto, v souladu s nařízením Evropského parlamentu a Rady (EU) 2016/679, v platném znění, prohlašuji, že mi je alespoň 16 let a uděluji tak svůj souhlas se zpracováním zadaných údajů (jméno, telefon, e-mail, ip adresa) společnosti B3 Technology, s.r.o., IČ: 07330600, se sídlem Novostavby 126/23, 435 11 Lom (správce dat), za účelem předání dotazu z tohoto formuláře Vámi vybranému inzerentovi a zpětného kontaktování mé osoby. Osobní údaje bude správce zpracovávat manuálně i automaticky přímo prostřednictvím svých zaměstnanců. Informace předané tímto formulářem budou uloženy v databázi správce maximálně po dobu 10 let. Odvolání souhlasu s uložením a zpracováním poskytnutých dat lze e-mailem na info@videobydleni.cz. V případě podezření na neoprávněné použití Vámi poskytnutých údajů máte právo předat podnět k šetření Úřadu pro ochranu osobních údajů. Více informací
Chystáte se prodat nemovitost?
Pomůžeme Vám!

Inzerát si prohlédlo 14 lidí

Prodejce

Miloslava Kačerová

Miloslava Kačerová

Hlídací pes

Chcete dostávat emailem podobné nabídky pronájmu bytů 1+kk v Praze 3?

Podobné nemovitosti


Nevyhovuje Vám typ bytu? Podívejte se na jiné kategorie bytů.


Vybrané články z našeho blogu