Prodej rodinného domu, Černá v Pošumaví - Mokrá, 200 m2 (ID: 3988355)

Černá v Pošumaví, Mokrá

7 200 000 Kč /za nemovitost HYPOTÉKA od 32 180 Kč /za měsíc
Prémioví partneři v Černé v Pošumaví

Výkup a prodej starého nábytku

Pojištění a finance

Informace k domu

Prodej velkého třípodlažního domu se dvěma bytovými jednotkami, 6+2, u Černé v Pošumaví, Lipno, Lipensko.

Celková plocha prodávaných pozemků má výměru 1.309m2, přičemž zastavěná ploch a nádvoří je 182m2 a pozemky, zahrada, okolo o ploše 1.127m2.

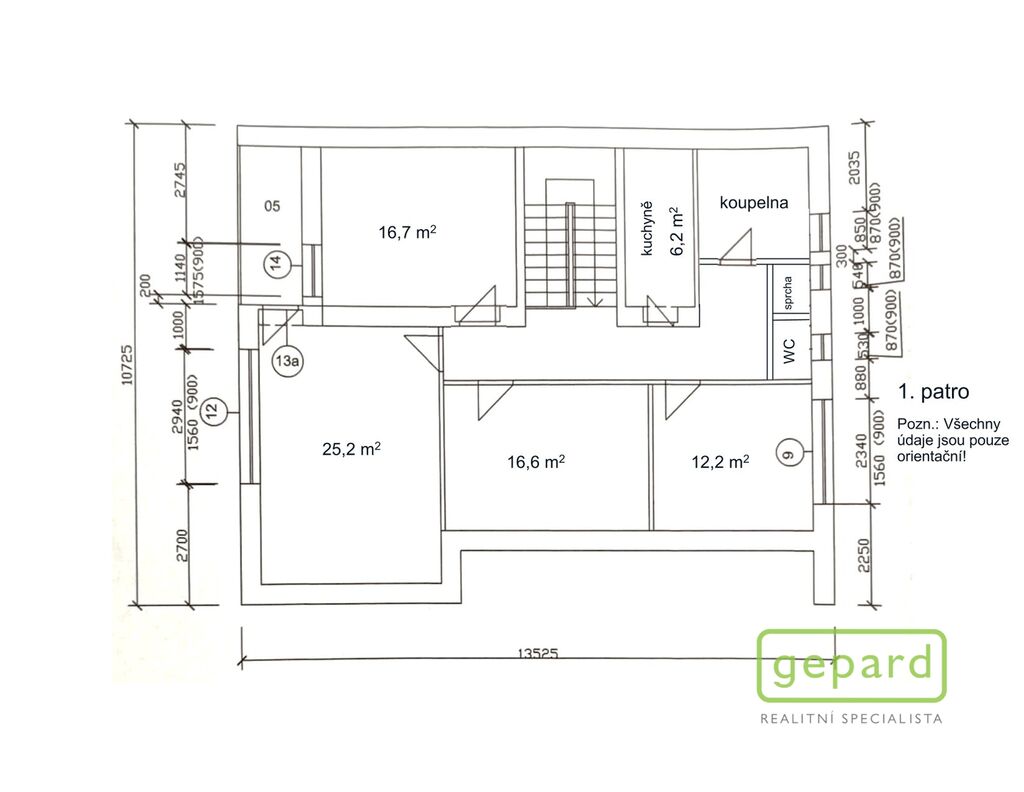
Budova samotná se skládá ze dvou samostatných velkých bytových jednotek, sklepa s garáží a prostorného podkroví.

V 1.NP je byt se dvěma pokoji, kuchyní s jídelním koutem a sociálním zařízením.

Výstupem po schodišti se dostaneme do 2.NP kde se nachází větší bytová jednotka sestávající ze 4 pokojů, kuchyně a sociálního zařízení.

V obou patrech je k dispozici balkon a v přízemním pak i prosluněná terasa orientovaná jižním směrem.

Suterénní část je tvořena prostornou garáží, technickým zázemím domu, skladovacími prostory hernou pro děti.

Prostorné podkroví je vhodné jak k vestavbě tak jako další úložný a skladovací prostor.

Na dům navazuje v zadní části i pergola s posezením a výhledem do zahrady.

Prohlídněte si prosím naší fotogalerii.

Nemovitost je vhodná jak k trvalému bydlení, tak svou polohou na Lipensku a v blízkosti lipenské přehrady, i ke komerčním účelům, pronájmu, ubytovacím službám.

Vzdálenost do Černé v Pošumaví 3km, do Českého Krumlova 20km po kvalitní rychlé komunikaci.

V okolí a dojezdové vzdálenosti jsou k dispozici veškeré sportovní a volnočasové areály pro letní i zimní sporty v Lipně nad Vltavou, Frymburku i v Černé v Pošumaví.

Energetická třída PENB „G“ je uvedena z formálních důvodů dle zákona č. 103/2015 Sb., po obdržení průkazu energetické náročnosti budovy bude uvedena skutečná hodnota.

Více informací na níže uvedeném telefonním čísle, včetně zmíněného geometrického plánu.
Prohlídky po předchozí domluvě z kanceláře v Českém Krumlově.

Možnost zajištění financování koupě této nemovitosti hypotéčním úvěrem.

Parametry domu

Cena
7 200 000 Kč /za nemovitost Spočítat hypotéku
Aktualizováno
12. 5. 2026
Adresa
Černá v Pošumaví, Mokrá
ID
11153
Stavba
Cihlová
Stav objektu
Velmi dobrý
Vybaveno
Částečně
Typ objektu
Patrový
Druh objektu
Samostatný
Lokalita objektu
Klidná část obce
Užitná plocha
200 m2
Zastavěná plocha
182 m2
Podlahová plocha
300 m2
Plocha pozemku
1309 m2
Plocha zahrady
1127 m2
Třída energetické náročnosti
G - Mimořádně nehospodárná
Elektřina
120V, 230V
Odpad
Septik, Jímka
Komunikace
Zpevněná
Telekomunikace
Internet
Doprava
Silnice, Autobus
Voda
Vodovod
Garáž
Sklep
Převod do OV
Parkování

Kontaktovat makléře

Realitní kancelář

Logo GEPARD REALITY/Boars

GEPARD REALITY/Boars

Husova tř. 640/33, České Budějovice

Chystáte se prodat nemovitost?
Pomůžeme Vám!

Máte zájem o tento dům?

Tímto, v souladu s nařízením Evropského parlamentu a Rady (EU) 2016/679, v platném znění, prohlašuji, že mi je alespoň 16 let a uděluji tak svůj souhlas se zpracováním zadaných údajů (jméno, telefon, e-mail, ip adresa) společnosti B3 Technology, s.r.o., IČ: 07330600, se sídlem Novostavby 126/23, 435 11 Lom (správce dat), za účelem předání dotazu z tohoto formuláře Vámi vybranému inzerentovi a zpětného kontaktování mé osoby. Osobní údaje bude správce zpracovávat manuálně i automaticky přímo prostřednictvím svých zaměstnanců. Informace předané tímto formulářem budou uloženy v databázi správce maximálně po dobu 10 let. Odvolání souhlasu s uložením a zpracováním poskytnutých dat lze e-mailem na info@videobydleni.cz. V případě podezření na neoprávněné použití Vámi poskytnutých údajů máte právo předat podnět k šetření Úřadu pro ochranu osobních údajů. Více informací
Chystáte se prodat nemovitost?
Pomůžeme Vám!
Theleadway banner

Inzerát si prohlédlo 17 lidí

Prodejce

Pavel Daoudi

Pavel Daoudi

Hlídací pes

Chcete dostávat emailem podobné nabídky prodeje rodinných domů v Černé v Pošumaví?

Podobné nemovitosti


Nevyhovuje Vám typ domu? Podívejte se na jiné kategorie domů.


Vybrané články z našeho blogu