Prodej bytu 3+1, Rožnov pod Radhoštěm, 5. května, 64 m2

5. května, Rožnov pod Radhoštěm

4 300 000 Kč /za nemovitost HYPOTÉKA od 19 218 Kč /za měsíc
Prémioví partneři v Rožnově pod Radhoštěm

Informace k bytu

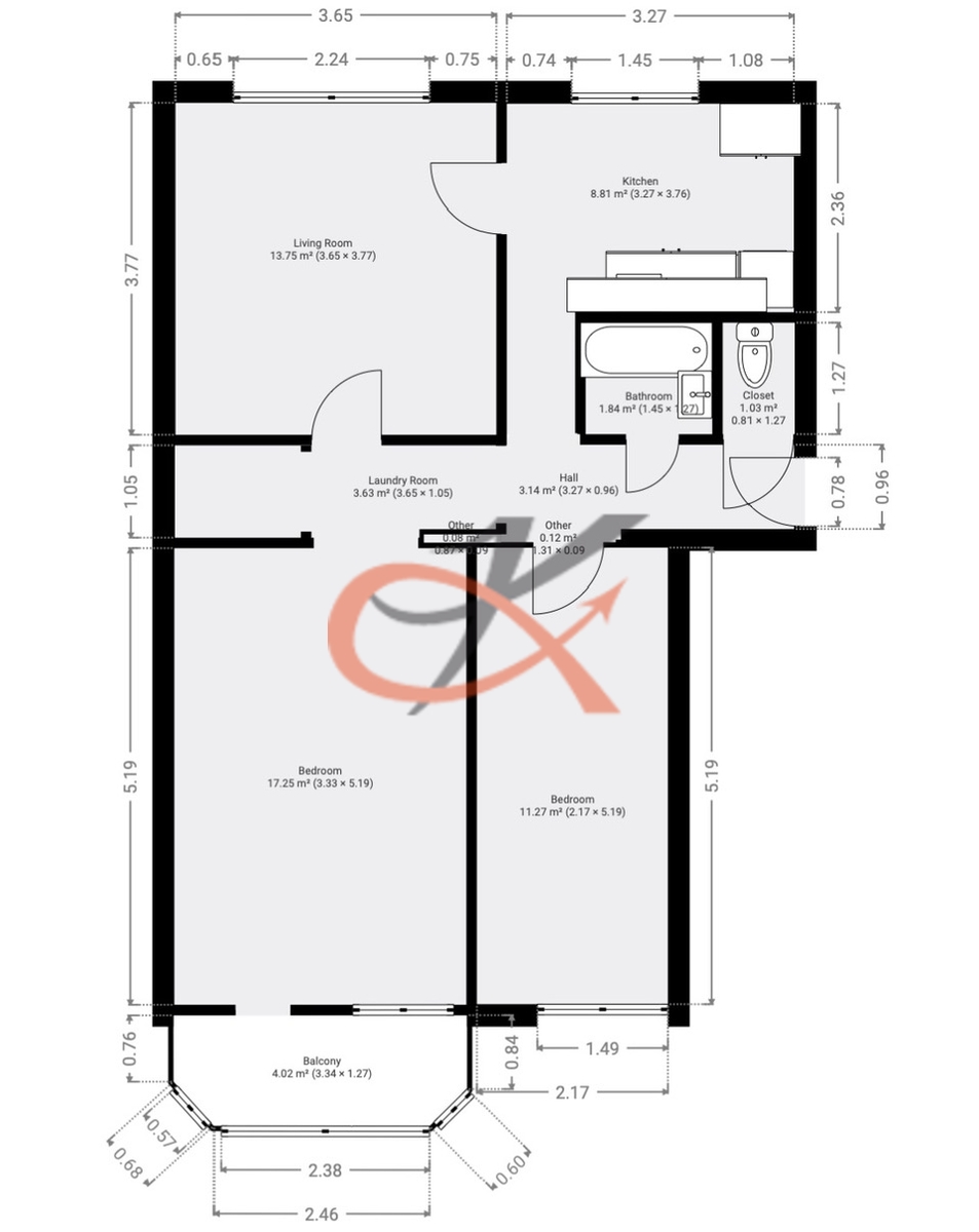
Bytová jednotka je situovaná ve vyhledávané části Rožnova pod Radhoštěm v lokalitě sídliště 1. máje na ul. 5. května v V. patře nízkopodlažního panelového domu s výtahem.
Byt v osobním vlastnictví je v původním stavu, s dílčími rekonstrukcemi (renovace parket v pokojích, výměna kuchyňských skříněk, výmalba). Aktuálně je nemovitost vyklizená a připravená k okamžitému nastěhování nebo k dalším úpravám dle potřeb a vkusu nového majitele. Oblíbená dispozice nabízí mnoho možností a variant pro renovaci a modernizaci současných bytových potřeb.
Dispozice bytu 3+1 o podlahové ploše 64m² skýtá mnoho možností, jak využít, upravit či změnit stávající prostor. Jednotlivé pokoje jsou neprůchozí, kuchyně je natolik prostorná, že se do ní vejde jídelní kout, ze kterého je výhled na zeleň. Výhled do zeleně a klidové zóny je také z balkónu (4m²), jedná se o západní orientaci. Dále je k dispozici praktická šatna, kterou lze propojit s ložnicí/pokojem a ušetřit tak prostor pro šatní skříň v samotné místnosti. Popř. může prostor sloužit jako pracovna, dílna nebo sklad méně používaných věcí. Jádro bytu je původní, takže lze jednoduše odstranit a nahradit zděnou příčkou a např. zvětšit prostor pro koupelnu a WC. Další úložný prostor pro šaty a obuv lze vybudovat na chodbě. Součástí bytu je také sklepní box na I.PP domu.
Dům, ve kterém se bytová jednotka nachází, je zateplený, jsou vyměněná okna za plastová a nový výtah. Parkování u domem na přilehlém veřejném parkovišti.
Energetický štítek nebyl dodán, proto je uváděna třída G.
Měsíční náklady na provoz bytu cca 5.500kč vč. platby do fondu oprav.
Velkou výhodou je poloha bytu s rychlým dopravním napojením jak na město Rožnov, tak na výjezd z města všemi směry. Veškerá občanská vybavenost je však v docházkové vzdálenosti. Oblíbenou polohou je tato lokalita také pro zaměstnance či osoby pracující v areálu bývalé Tesly.
Na bytě neváznou žádné právní vady či věcná břemena, tudíž převod vlastnického práva a nastěhování jsou možné ihned. Konzultace a zajištění financování u kteréhokoliv bankovního ústavu s nejvýhodnějšími podmínkami vám zajistím na jednom místě bez nutnosti návštěvy pobočky banky.
V případě zájmu o prohlídku se na mně neváhejte obrátit.

Parametry bytu

Cena
4 300 000 Kč /za nemovitost Spočítat hypotéku
Aktualizováno
30. 9. 2025
Adresa
5. května, Rožnov pod Radhoštěm
ID
7138
Stavba
Panelová
Stav objektu
Velmi dobrý
Patro
5. z 6
Vybaveno
Ne
Vlastnictví
Osobní
Užitná plocha
64 m2
Zastavěná plocha
871 m2
Podlahová plocha
68 m2
Třída energetické náročnosti
G - Mimořádně nehospodárná
Plyn
Plynovod
Odpad
Veřejná kanalizace
Sklep
Lodžie
Výtah

Kontaktovat makléře

Realitní kancelář

Logo Reality Kocourek

Reality Kocourek

Palackého 2205, Rožnov pod Radhoštěm

Chystáte se prodat nemovitost?
Pomůžeme Vám!

Máte zájem o tento byt?

Tímto, v souladu s nařízením Evropského parlamentu a Rady (EU) 2016/679, v platném znění, prohlašuji, že mi je alespoň 16 let a uděluji tak svůj souhlas se zpracováním zadaných údajů (jméno, telefon, e-mail, ip adresa) společnosti B3 Technology, s.r.o., IČ: 07330600, se sídlem Novostavby 126/23, 435 11 Lom (správce dat), za účelem předání dotazu z tohoto formuláře Vámi vybranému inzerentovi a zpětného kontaktování mé osoby. Osobní údaje bude správce zpracovávat manuálně i automaticky přímo prostřednictvím svých zaměstnanců. Informace předané tímto formulářem budou uloženy v databázi správce maximálně po dobu 10 let. Odvolání souhlasu s uložením a zpracováním poskytnutých dat lze e-mailem na info@videobydleni.cz. V případě podezření na neoprávněné použití Vámi poskytnutých údajů máte právo předat podnět k šetření Úřadu pro ochranu osobních údajů. Více informací
Chystáte se prodat nemovitost?
Pomůžeme Vám!

Inzerát si prohlédlo 5 lidí

Prodejce

Lenka Rebrošová, DiS.

Lenka Rebrošová, DiS.

Hlídací pes

Chcete dostávat emailem podobné nabídky prodeje bytů 3+1 v Rožnově pod Radhoštěm?

Podobné nemovitosti


Nevyhovuje Vám typ bytu? Podívejte se na jiné kategorie bytů.


Vybrané články z našeho blogu