Prodej vícegeneračního domu, Úpice, Dr. A. Hejny, 549 m2

Dr. A. Hejny, Úpice

8 900 000 Kč /za nemovitost HYPOTÉKA od 39 778 Kč /za měsíc
Prémioví partneři v Úpici

Informace k domu

Nabízíme k prodeji nemovitost, která se nachází v Úpici, v ulici Dr. A. Hejny. Tato nemovitost představuje vynikající investiční příležitost s vysokým potenciálem návratnosti investice a osloví široké spektrum zájemců, ať už jde o jednotlivce, rodiny či podnikatele.

Nemovitost se nachází ve výhodné poloze, která zajišťuje skvělou dostupnost. Úpice, jakožto region s bohatou historií a dobře rozvinutou infrastrukturou, nabízí široké možnosti pro volnočasové aktivity, vzdělání a zdravotní péči. V přímém okolí se nachází veškerá občanská vybavenost, jako jsou školy, obchody a restaurace. Z důvodu narůstající poptávky po bydlení v této lokalitě lze očekávat značný zájem o pronájmy.

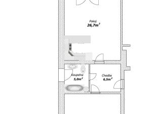
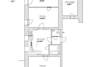
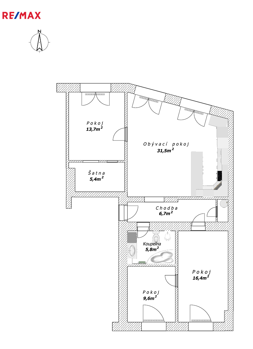
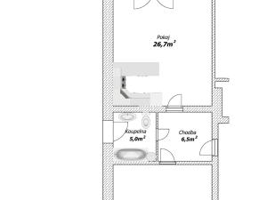
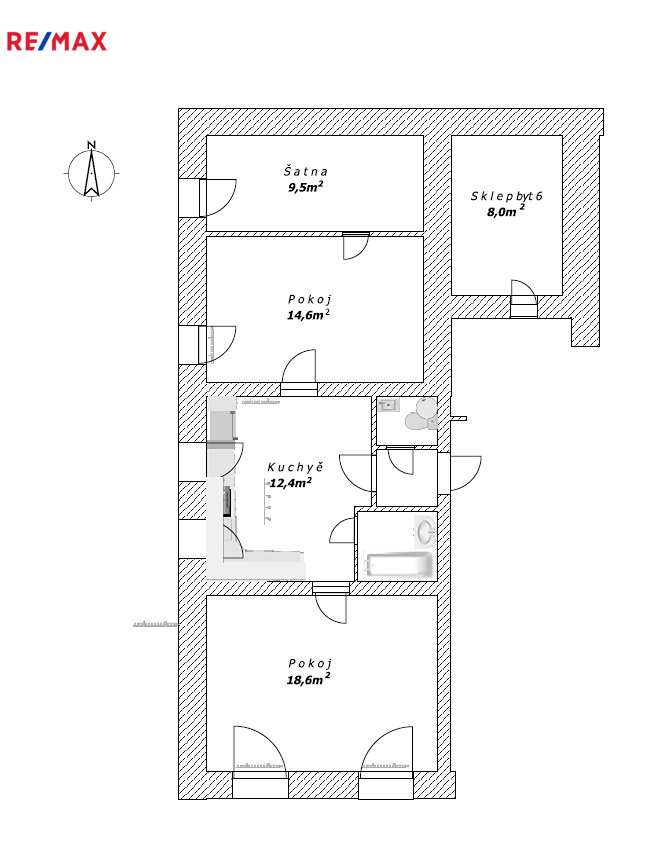
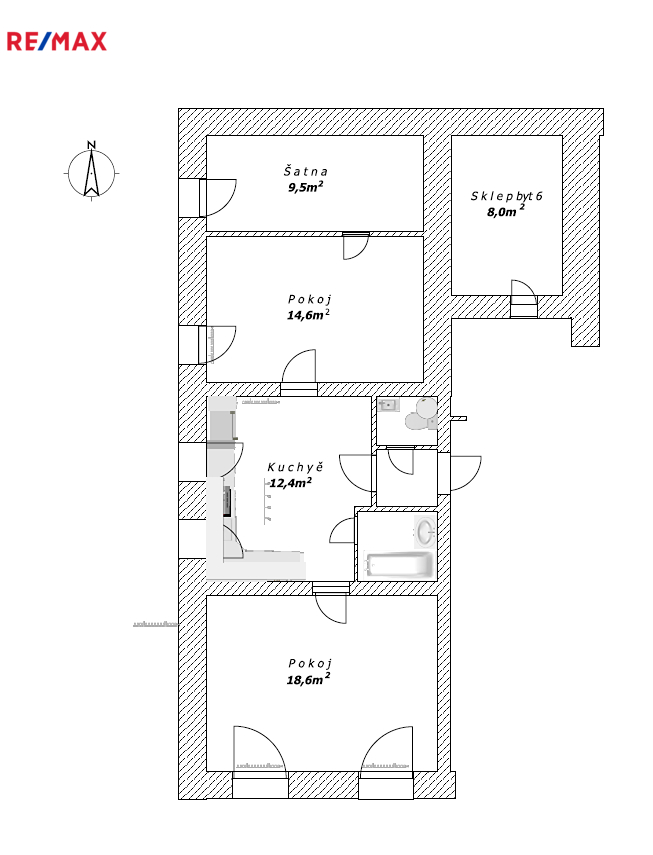
Dům se skládá z 6 bytových jednotek s těmito parametry:

- Byt č. 1 o výměře 65,6 m²
- Byt č. 2 o výměře 44,3 m²
- Byt č. 3 o výměře 39,6 m²
- Byt č. 4 o výměře 63,1 m²
- Byt č. 5 o výměře 67,7 m²
- Byt č. 6 o výměře 97,2 m²

Dále je k dispozici podsklepení. Dům má 3 podlaží a jeho zastavěná plocha činí 220 m² s obestavěným prostorem 1980 m². Nemovitost je vybavena plastovými okny a topení je ústřední, dálkové. Zavedena je voda, elektřina, a je zde připojena kanalizace. Dům prošel mezi léty 2020 - 2024 kompletní revitalizací. Za domem se navíc nachází zahrada o výměře 115 m².

Tato nemovitost nabízí také potenciál pro další rozvoj a úpravy, což je obzvlášť zajímavé pro investory zaměřené na rekonstrukce a modernizace. Vzhledem k aktuálním trendům na trhu s nemovitostmi existuje možnost valorizace hodnoty této nemovitosti v krátkodobém až střednědobém horizontu. Investice do této nemovitosti tak představuje kombinaci stabilního příjmu, možného zhodnocení a praktického bydlení pro nájemníky.

V případě zájmu o prohlídku nás neváhejte kontaktovat.

Parametry domu

Cena
8 900 000 Kč /za nemovitost Spočítat hypotéku
Aktualizováno
23. 10. 2025
Adresa
Dr. A. Hejny, Úpice
ID
305-NP00734
Stavba
Smíšená
Stav objektu
Dobrý
Typ objektu
Přízemní
Druh objektu
Řadový
Lokalita objektu
Centrum obce
Užitná plocha
549 m2
Zastavěná plocha
224 m2
Podlahová plocha
549 m2
Plocha pozemku
339 m2
Třída energetické náročnosti
G - Mimořádně nehospodárná
Elektřina
230V
Odpad
Veřejná kanalizace
Komunikace
Asfaltová
Telekomunikace
Telefon, Internet, Kabelové rozvody
Doprava
Silnice, MHD, Autobus
Voda
Vodovod
Převod do OV

Kontaktovat makléře

Realitní kancelář

RE/MAX Infinity

Masarykovo náměstí 392/14, Hradec Králové

Chystáte se prodat nemovitost?
Pomůžeme Vám!

Máte zájem o tento dům?

Tímto, v souladu s nařízením Evropského parlamentu a Rady (EU) 2016/679, v platném znění, prohlašuji, že mi je alespoň 16 let a uděluji tak svůj souhlas se zpracováním zadaných údajů (jméno, telefon, e-mail, ip adresa) společnosti B3 Technology, s.r.o., IČ: 07330600, se sídlem Novostavby 126/23, 435 11 Lom (správce dat), za účelem předání dotazu z tohoto formuláře Vámi vybranému inzerentovi a zpětného kontaktování mé osoby. Osobní údaje bude správce zpracovávat manuálně i automaticky přímo prostřednictvím svých zaměstnanců. Informace předané tímto formulářem budou uloženy v databázi správce maximálně po dobu 10 let. Odvolání souhlasu s uložením a zpracováním poskytnutých dat lze e-mailem na info@videobydleni.cz. V případě podezření na neoprávněné použití Vámi poskytnutých údajů máte právo předat podnět k šetření Úřadu pro ochranu osobních údajů. Více informací
Chystáte se prodat nemovitost?
Pomůžeme Vám!

Inzerát si prohlédlo 13 lidí

Prodejce

Pavel Licek

Pavel Licek

Hlídací pes

Chcete dostávat emailem podobné nabídky prodeje vícegeneračních domů v Úpici?

Top nabídky

Podobné nemovitosti


Nevyhovuje Vám typ domu? Podívejte se na jiné kategorie domů.


Vybrané články z našeho blogu