Prodej pozemku pro bydlení, Dolní Kounice, 1849 m2

Dolní Kounice

4 190 000 Kč /za nemovitost HYPOTÉKA od 18 727 Kč /za měsíc

(včetně provize, včetně právního servisu)

Prémioví partneři v Dolních Kounicích

Informace k pozemku

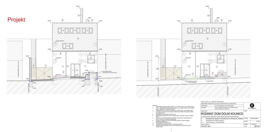
Nabízíme k prodeji atraktivní stavební pozemek s vydaným stavebním povolením a projektem domu, který má důmyslně promyšlené architektonické řešení, a navíc v žádané lokalitě s výhledem na malebné okolí Dolních Kounic. Projekt je koncipován jako dvoupodlažní stavba s podkrovím a navazující terasou, navržený dům tímto umožnil propojit 2 úrovně terénu, terasa umístěna při podkroví umožňuje propojení interiéru s exteriérem zahrady a nabízí dechberoucí výhled do krajiny. Architektonické řešení však umožňuje i alternativní varianty – dům lze realizovat jako čistě přízemní, nebo s plnohodnotným podkrovím a třeba i vikýřem, případně upravit dle investičního záměru například na tři samostatné bytové jednotky navíc s ateliérem. Samotná zastavěná plocha má 202 m2, navazující zahrada pak úctyhodných 1 647 m2, ta je situovaná na slunném jižním svahu je příjemně členěná, osázená mladými stromy a doplněná o stávající mobilní domek, který může sloužit jako zázemí pro hosty nebo zahradní atelier. Součástí pozemku je rovněž 1 větší klenbový sklep s původním charakterem, který dodává místu autentickou atmosféru a další funkční využití z přízemí propojené s domem, dále pak další 3 menší sklípky jakožto úložné prostory.

Přístup k domu je z klidné ulice Benátky, kde je možné parkovat v přilehlé ulici; přímo u pozemku se nachází zvýšené zídky typické pro tuto ulici. Pozemek navazuje na řadovou zástavbu a nabízí flexibilitu v osazení stavby – je možné dům orientovat na hranici k sousednímu domu a na druhé straně ponechat volný průchod se schodištěm, které elegantně překonává výškový rozdíl mezi ulicí a horní částí zahrady.

Dolní Kounice nabízejí ideální propojení klidného rodinného bydlení s dostupností města – do Brna se autem dostanete za cca 25 minut (cca 24 km), veřejná doprava umožňuje pohodlné cestování; z Dolních Kounic autobusy linky 512 nebo 154 míří do Modřic či Moravských Bránic, odkud je možné navázat vlakem do Brna v rámci IDS JMK. Obec disponuje kompletní občanskou vybaveností: mateřskou školou i základní školou se školní družinou a jídelnou, zdravotnickým zařízením, poštou, obchodem a knihovnou. Kulturně-historické zázemí obce pak zahrnuje klášter Rosa Coeli, zámek, synagogu, židovský hřbitov a další památky, které dodávají lokalitě jedinečnou atmosféru. Z gastronomie potom zaujme jistě Restaurace a hotel Kounický dvůr.

Tato nabídka představuje ideální kombinaci klidného bydlení s výjimečným výhledem, možností okamžité výstavby v dnešní době složitějšího povolování a zároveň investičního potenciálu s několika variantami budoucího využití dle potřeb nového majitele. Bližší info o projektu u makléře.

Těším se na Vás při prohlídce.

Parametry pozemku

Cena
4 190 000 Kč /za nemovitost Spočítat hypotéku
Poznámka k ceně
včetně provize, včetně právního servisu
Aktualizováno
16. 12. 2025
Adresa
Dolní Kounice
ID
202518
Druh objektu
Řadový
Plocha pozemku
1849 m2
Elektřina
230V, 400V
Plyn
Plynovod
Odpad
Veřejná kanalizace
Komunikace
Asfaltová
Telekomunikace
Internet, Kabelové rozvody
Doprava
Vlak, Dálnice, Silnice, MHD, Autobus
Voda
Vodovod

Kontaktovat makléře

Máte zájem o tento pozemek?

Tímto, v souladu s nařízením Evropského parlamentu a Rady (EU) 2016/679, v platném znění, prohlašuji, že mi je alespoň 16 let a uděluji tak svůj souhlas se zpracováním zadaných údajů (jméno, telefon, e-mail, ip adresa) společnosti B3 Technology, s.r.o., IČ: 07330600, se sídlem Novostavby 126/23, 435 11 Lom (správce dat), za účelem předání dotazu z tohoto formuláře Vámi vybranému inzerentovi a zpětného kontaktování mé osoby. Osobní údaje bude správce zpracovávat manuálně i automaticky přímo prostřednictvím svých zaměstnanců. Informace předané tímto formulářem budou uloženy v databázi správce maximálně po dobu 10 let. Odvolání souhlasu s uložením a zpracováním poskytnutých dat lze e-mailem na info@videobydleni.cz. V případě podezření na neoprávněné použití Vámi poskytnutých údajů máte právo předat podnět k šetření Úřadu pro ochranu osobních údajů. Více informací
Chystáte se prodat nemovitost?
Pomůžeme Vám!

Inzerát si prohlédlo 15 lidí

Prodejce

Boris Tonev

Boris Tonev

Hlídací pes

Chcete dostávat emailem podobné nabídky prodeje pozemků pro bydlení v Dolních Kounicích?

Podobné nemovitosti


Nevyhovuje Vám typ pozemku? Podívejte se na jiné kategorie pozemků.


Vybrané články z našeho blogu