Pronájem obchodního prostoru, Dobřejovice, Jesenická, 395 m2

Jesenická, Dobřejovice

249 Kč /za metr čtvereční / měsíc Získejte výhodnou HYPOTÉKU
Prémioví partneři v Dobřejovicích

Informace k nemovitosti

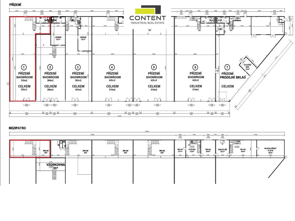
Dobřejovice. V zastoupení majitele a bez provize nabízíme prodejní skladové prostory 395 m², které se nachází v novém komerčním parku na okraji obce Dobřejovice. V těsné blízkosti dálnice D1 a městského okruhu D0. Vzdálenost k dálničnímu nájezdu na D1 2,5 km a vzdálenost nájezdu D0 je 5,0 km.

- k dispozici od 01.01. 2026
- showroom, prodejna, kanceláře a sklady
- přízemí se zázemím a sprchou 303 m²
- vestavěné patro v zadní části prostoru 92 m²
- vnitřní světlá výška skladu 6,2 m
- průmyslová bezprašná podlaha
- stěny PUR panel tl. 100 mm, U=0,2 W/m²K
- tepelně izolovaná střecha, střešní okna
- čelní prosklená výloha s vchodem a další samostatný vchod pro zásobování zezadu
- vytápění / klimatizace TČ s podstropními jednotkami
- celková plocha prostoru je 395 m²
- parkoviště pro zákazníky

Cena nájmu je 249,-Kč/m²/měsíc + záloha na zúčtovatelné poplatky za služby 19,- Kč/m²/měsíc.
Pro více informací nás kontaktujte, rádi Vám zajistíme prohlídku nemovitosti.

Parametry nemovitosti

Cena
249 Kč /za metr čtvereční / měsíc
Aktualizováno
30. 9. 2025
Adresa
Jesenická, Dobřejovice
ID
N5340
Stavba
Skeletová
Stav objektu
Novostavba
Typ objektu
Přízemní
Lokalita objektu
Rušná část obce
Užitná plocha
395 m2
Třída energetické náročnosti
C - Úsporná
Parkování

Kontaktovat makléře

Realitní kancelář

Logo CONTENT REALITY s.r.o.

CONTENT REALITY s.r.o.

Průmyslová 1472/11, Praha 10

Chystáte se prodat nemovitost?
Pomůžeme Vám!

Máte zájem o tuto nemovistost?

Tímto, v souladu s nařízením Evropského parlamentu a Rady (EU) 2016/679, v platném znění, prohlašuji, že mi je alespoň 16 let a uděluji tak svůj souhlas se zpracováním zadaných údajů (jméno, telefon, e-mail, ip adresa) společnosti B3 Technology, s.r.o., IČ: 07330600, se sídlem Novostavby 126/23, 435 11 Lom (správce dat), za účelem předání dotazu z tohoto formuláře Vámi vybranému inzerentovi a zpětného kontaktování mé osoby. Osobní údaje bude správce zpracovávat manuálně i automaticky přímo prostřednictvím svých zaměstnanců. Informace předané tímto formulářem budou uloženy v databázi správce maximálně po dobu 10 let. Odvolání souhlasu s uložením a zpracováním poskytnutých dat lze e-mailem na info@videobydleni.cz. V případě podezření na neoprávněné použití Vámi poskytnutých údajů máte právo předat podnět k šetření Úřadu pro ochranu osobních údajů. Více informací
Chystáte se prodat nemovitost?
Pomůžeme Vám!

Inzerát si prohlédlo 2 lidí

Prodejce

David Machač

David Machač

Hlídací pes

Chcete dostávat emailem podobné nabídky pronájmu obchodních prostor v Dobřejovicích?

Podobné nemovitosti


Nevyhovuje Vám typ nemovitosti? Podívejte se na jiné kategorie komerčních.


Vybrané články z našeho blogu