Pronájem bytu 2+1, Praha - Žižkov, Na vrcholu, 55 m2 (ID: 4026113)

Na vrcholu, Praha 3, Žižkov

20 000 Kč /za měsíc Získejte výhodnou HYPOTÉKU

(+ služby 5000,- Kč, 1x kauce a provize RK)

Prémioví partneři v Praze 3

Stěhovací služby

Výkup a prodej starého nábytku

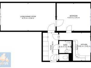
Informace k bytu

K pronájmu nabízíme prostorný a světlý byt o velikosti 2+1 situovaný ve 3. patře panelového domu bez výtahu. Byt o celkové ploše 55,5 m2 je vybaven vestavěnými skříněmi a kuchyňskou linkou se spotřebiči (pultová lednice s mrazákem, plynovým sporákem, troubou a digestoří. Dále se byt skládá ze samostatné ložnice, obývacího pokoje, samostatné toalety a koupelny s rohovou vanou a přípojkou na pračku. Byt prošel před několika lety kompletní rekonstrukcí. Vstupní bezpečnostní dveře. Podlahy: plovoucí laminátová podlaha a dlažba. Vytápění ústřední. Parkování na ulici – modré zóny. K bytu rovněž náleží sklepní kóje (4 m2) situovaná v suterénu domu. V domě také k užívání sauna. Kompletní občanská vybavenost(restaurace, obchody, služby, lékárna, supermarket Kaufland) a dobrá dopravní dostupnost (tři minuty chůze zastávka TRAM Chmelnice, cca 20 minut do centra). V okolí množství zeleně, Sad Třešňovka v docházkové vzdálenosti. Majitelé preferují nekuřáky bez domácích mazlíčků a pouze občany ČR. Byt je vhodný maximálně pro 3 osoby.

Parametry bytu

Cena
20 000 Kč /za měsíc
Poznámka k ceně
+ služby 5000,- Kč, 1x kauce a provize RK
Aktualizováno
7. 10. 2025
Adresa
Na vrcholu, Praha 3, Žižkov
ID
7882
Stavba
Panelová
Stav objektu
Po rekonstrukci
Patro
4. z 5
Lokalita objektu
Klidná část obce
Vlastnictví
Osobní
Užitná plocha
55 m2
Podlahová plocha
60 m2
Třída energetické náročnosti
C - Úsporná
Elektřina
230V
Plyn
Plynovod
Odpad
Veřejná kanalizace
Telekomunikace
Internet
Doprava
MHD
Voda
Vodovod
Sklep
Bezbarierový přístup

Kontaktovat makléře

Realitní kancelář

Logo MAXXUS REALITY

MAXXUS REALITY

Ječná 529/29, Praha, Nové Město

Chystáte se prodat nemovitost?
Pomůžeme Vám!

Máte zájem o tento byt?

Tímto, v souladu s nařízením Evropského parlamentu a Rady (EU) 2016/679, v platném znění, prohlašuji, že mi je alespoň 16 let a uděluji tak svůj souhlas se zpracováním zadaných údajů (jméno, telefon, e-mail, ip adresa) společnosti B3 Technology, s.r.o., IČ: 07330600, se sídlem Novostavby 126/23, 435 11 Lom (správce dat), za účelem předání dotazu z tohoto formuláře Vámi vybranému inzerentovi a zpětného kontaktování mé osoby. Osobní údaje bude správce zpracovávat manuálně i automaticky přímo prostřednictvím svých zaměstnanců. Informace předané tímto formulářem budou uloženy v databázi správce maximálně po dobu 10 let. Odvolání souhlasu s uložením a zpracováním poskytnutých dat lze e-mailem na info@videobydleni.cz. V případě podezření na neoprávněné použití Vámi poskytnutých údajů máte právo předat podnět k šetření Úřadu pro ochranu osobních údajů. Více informací
Chystáte se prodat nemovitost?
Pomůžeme Vám!

Inzerát si prohlédlo 7 lidí

Prodejce

Karel Štaubert

Karel Štaubert

Hlídací pes

Chcete dostávat emailem podobné nabídky pronájmu bytů 2+1 v Praze 3?

Podobné nemovitosti


Nevyhovuje Vám typ bytu? Podívejte se na jiné kategorie bytů.


Vybrané články z našeho blogu