Prodej bytu 3+kk, Praha - Strašnice, Limuzská, 87 m2 (ID: 4029422)

Limuzská, Praha 10

10 466 863 Kč /za nemovitost HYPOTÉKA od 46 781 Kč /za měsíc
Prémioví partneři v Praze 10

Stěhovací služby

Výkup a prodej starého nábytku

Informace k bytu

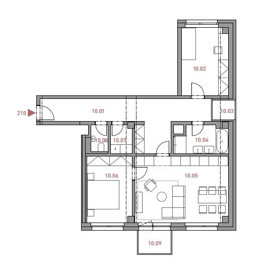
Velmi rádi Vám k prodeji nabízíme krásnou a prostornou bytovou jednotku o dispozici 3+kk a podlahové ploše 87 m2 v projektu Byty Limuzská v pražských Strašnicích. Byt se nachází v 5. nadzemním podlaží skeletové samostatně stojící budovy s výtahem. Součástí bytu je balkon, lodžie, sklepní kóje a venkovní parkovací stání.
Byt se skládá z dlouhé chodby, obývacího pokoje s kuchyňským koutem, dalších dvou pokojů, koupelny s vanou i sprchovým koutem, samostatným WC s umyvadlem a rozměrné komory, která může sloužit jako úložný prostor. Jednotka se nabízí nezařízená nábytkem. V nové kuchyni, která je vestavěná na míru se nachází veškeré moderní spotřebiče značky AEG: indukční varná deska s digestoří, elektrická trouba, mikrovlnná trouba, vestavěná myčka a lednice s mrazákem. V komoře je umístěna kombinovaná pračka se sušičkou značky Samsung. Díky plastovým oknům a výborné mezibytové zvukové izolaci je byt velmi tichý, což Vám zajistí poklidné a spokojené bydlení. Podlahy jsou laminátové plovoucí a keramická dlažba, vytápění a ohřev vody pak ústřední (výměníková stanice v budově). Zrekonstruovaný bytový dům se nachází v městské části Strašnice, které jsou klidnou a elegantní čtvrtí nedaleko pražského centra. Okolní prvorepubliková vilová zástavba má svoji atmosféru. V bezprostředním okolí se nachází veškerá občanská vybavenost včetně obchodů, restaurací, škol, školek, polikliniky, divadla a mnoho dalších volnočasových aktivit. K relaxaci a sportovnímu vyžití lze využít bohatou okolní zeleň – Malešický park, přírodní park Smetanka, park Gutovka, Botanickou zahradu Malešice a v neposlední řadě i Hostivařskou přehradu. Výborná dopravní dostupnost do centra města jak autem, tak MHD. Několik kroků od domu se nachází autobusová a tramvajová zastávka, odkud se mimo jiné dostanete i na blízké stanice metra A - Strašnická či Depo Hostivař.
V současné chvíli jsou v bytě nájemníci s platnou nájemní smlouvou do 5.12.2025, vhodná je tedy koupě i na investici, není to však podmínkou. Financování je možné naší společností eDO finance, s kterým Vám velmi rádi pomůžeme. Pro více informací a domluvení prohlídky volejte makléře.

Parametry bytu

Cena
10 466 863 Kč /za nemovitost Spočítat hypotéku
Aktualizováno
17. 9. 2025
Adresa
Limuzská, Praha 10
ID
420240320
Stavba
Skeletová
Stav objektu
Po rekonstrukci
Patro
5. z 5
Vybaveno
Částečně
Lokalita objektu
Klidná část obce
Vlastnictví
Osobní
Užitná plocha
87 m2
Podlahová plocha
87 m2
Třída energetické náročnosti
C - Úsporná
Plyn
Plynovod
Odpad
Veřejná kanalizace
Voda
Vodovod
Balkon
Lodžie
Výtah

Kontaktovat makléře

Realitní kancelář

Logo eDO reality

eDO reality

Na Pankráci 322/26, Praha

Chystáte se prodat nemovitost?
Pomůžeme Vám!

Máte zájem o tento byt?

Tímto, v souladu s nařízením Evropského parlamentu a Rady (EU) 2016/679, v platném znění, prohlašuji, že mi je alespoň 16 let a uděluji tak svůj souhlas se zpracováním zadaných údajů (jméno, telefon, e-mail, ip adresa) společnosti B3 Technology, s.r.o., IČ: 07330600, se sídlem Novostavby 126/23, 435 11 Lom (správce dat), za účelem předání dotazu z tohoto formuláře Vámi vybranému inzerentovi a zpětného kontaktování mé osoby. Osobní údaje bude správce zpracovávat manuálně i automaticky přímo prostřednictvím svých zaměstnanců. Informace předané tímto formulářem budou uloženy v databázi správce maximálně po dobu 10 let. Odvolání souhlasu s uložením a zpracováním poskytnutých dat lze e-mailem na info@videobydleni.cz. V případě podezření na neoprávněné použití Vámi poskytnutých údajů máte právo předat podnět k šetření Úřadu pro ochranu osobních údajů. Více informací
Chystáte se prodat nemovitost?
Pomůžeme Vám!

Inzerát si prohlédlo 27 lidí

Prodejce

Martin Šašek

Martin Šašek

Hlídací pes

Chcete dostávat emailem podobné nabídky prodeje bytů 3+kk v Praze 10?

Podobné nemovitosti


Nevyhovuje Vám typ bytu? Podívejte se na jiné kategorie bytů.


Vybrané články z našeho blogu