Pronájem bytu 2+kk, Praha - Krč, Nad Ryšánkou, 61 m2

Nad Ryšánkou, Praha, Krč

25 000 Kč /za měsíc Získejte výhodnou HYPOTÉKU
Prémioví partneři v Praze 4

Stěhovací služby

Výkup a prodej starého nábytku

Informace k bytu

BEZ PROVIZE PRONÁJEM PŘÍMO OD MAJITELE

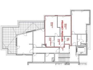
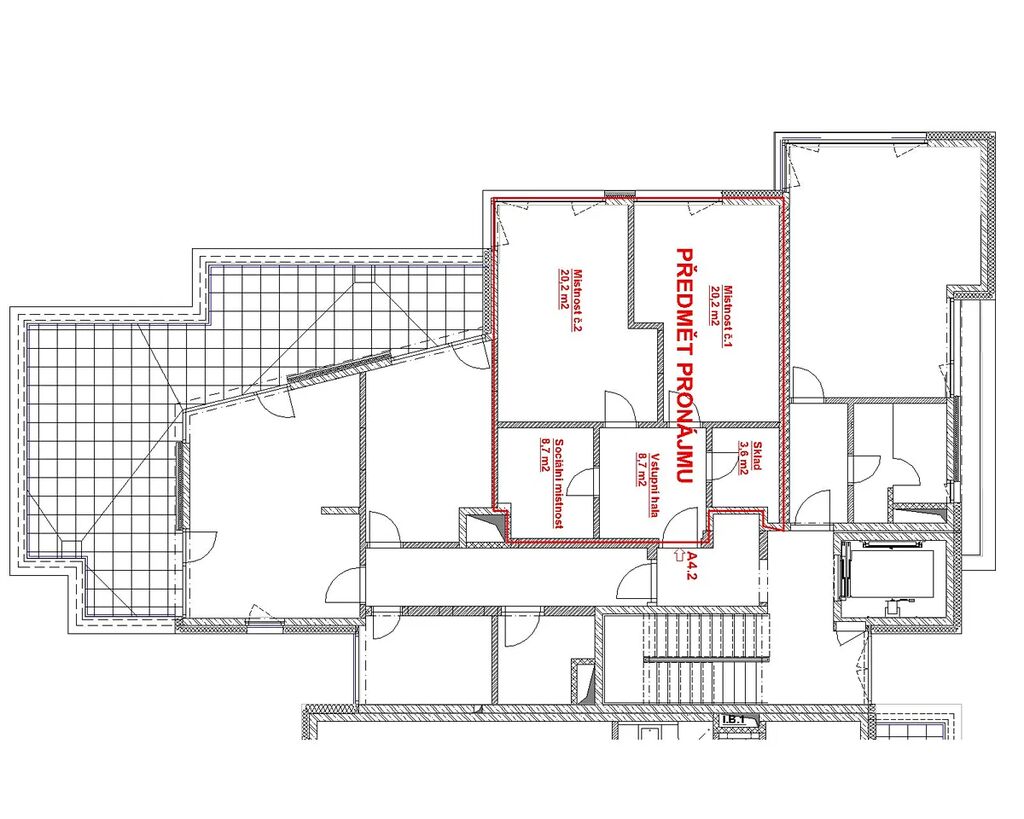
Dovolujeme si Vám nabídnout k dlouhodobému pronájmu byt 2+kk o výměře 61 m2 umístěný ve 4. NP nového a udržovaného bytového domu s výtahem v ulici Nad Ryšánkou.

Jedná se o klidnou ulici zároveň s výbornou dostupností do centra města, nedaleko stanic metra Budějovická a Pankrác. Pro relaxaci nedaleko Centrální park Pankrác nebo Park Jezerka.

Byt je částečně vybavený:
Kuchyňská linka: sklokeramická sporáková deska, elektrická trouba, lednice s mrazničkou, myčka, pračka
Místnosti vybavené vestavěnými skříněmi.
Koupelna disponuje sprchovým koutem umyvadlem a WC.
Na podlaze dlažba/plovoucí podlaha design bělený dub.
Okna vybavena předokenními žaluziemi.

K jednotce je možné pronajmout až 2 parkovací stání.
Byt je volný k nastěhování ihned.

Parametry bytu

Cena
25 000 Kč /za měsíc
Aktualizováno
6. 10. 2025
Adresa
Nad Ryšánkou, Praha, Krč
Stavba
Skeletová
Stav objektu
Velmi dobrý
Patro
4.
Vlastnictví
Osobní
Užitná plocha
61 m2
Třída energetické náročnosti
B - Velmi úsporná
Ukazatel energetické náročnosti
80781 kWh/m2 za rok
Elektřina
230V
Plyn
Plynovod
Odpad
Veřejná kanalizace
Komunikace
Asfaltová
Telekomunikace
Telefon, Internet
Doprava
Vlak, Dálnice, Silnice, MHD, Autobus
Voda
Vodovod
Topné těleso
Radiátory
Zdroj topení
Plynový kondenzační kotel
Zdroj teplé vody
Plynový kondenzační kotel
Parkování

Kontaktovat makléře

Máte zájem o tento byt?

Tímto, v souladu s nařízením Evropského parlamentu a Rady (EU) 2016/679, v platném znění, prohlašuji, že mi je alespoň 16 let a uděluji tak svůj souhlas se zpracováním zadaných údajů (jméno, telefon, e-mail, ip adresa) společnosti B3 Technology, s.r.o., IČ: 07330600, se sídlem Novostavby 126/23, 435 11 Lom (správce dat), za účelem předání dotazu z tohoto formuláře Vámi vybranému inzerentovi a zpětného kontaktování mé osoby. Osobní údaje bude správce zpracovávat manuálně i automaticky přímo prostřednictvím svých zaměstnanců. Informace předané tímto formulářem budou uloženy v databázi správce maximálně po dobu 10 let. Odvolání souhlasu s uložením a zpracováním poskytnutých dat lze e-mailem na info@videobydleni.cz. V případě podezření na neoprávněné použití Vámi poskytnutých údajů máte právo předat podnět k šetření Úřadu pro ochranu osobních údajů. Více informací
Chystáte se prodat nemovitost?
Pomůžeme Vám!

Inzerát si prohlédlo 4 lidí

Prodejce

Ing. Daniel Maxa

Ing. Daniel Maxa

Hlídací pes

Chcete dostávat emailem podobné nabídky pronájmu bytů 2+kk v Praze 4?

Podobné nemovitosti


Nevyhovuje Vám typ bytu? Podívejte se na jiné kategorie bytů.


Vybrané články z našeho blogu