Týn nad Vltavou, Koloděje nad Lužnicí
Výkup a prodej starého nábytku
Dovoluji si Vám exkluzivně nabídnout prodej stavební parcely v Kolodějích nad Lužnicí u Týna nad Vltavou. Mírně svažitý pozemek se spádem k severozápadu je položen na levém břehu Lužnice, ve vzdálenosti od řeky 238 m vzdušnou čarou (401 m po silnici) ve výškové úrovni 39 m nad hladinou (tedy bezpečně vysoko nad záplavovým územím).
Z hlediska následného využití parcely se jedná o plochu, vymezenou jako plocha bydlení v rodinných domech - venkovské - BV-S.
Územní plán stanovuje přípustné využití parcely tyto podmínky a regulativa:
- rodinné domy
- stavby pro ubytování, penziony
- stavby pro individuální rekreaci (charakteru rodinného domu)
- veřejná zeleň, veřejná prostranství a rekreační zeleň s prvky drobné architektury a
mobiliářem pro relaxaci
- vodní plochy, retenční nádrže
- zahrady a vybavení zahrad (např. skleníky, bazény, apod.)
- doplňkové stavby ke stavbě hlavní (garáže, apod.)
- výšková hladina zástavby nepřekročí 2 nadzemní podlaží + podkroví
- výšková hladina hřebene střechy nepřekročí 12 metrů
Nabízená parcela je pro chůzi a jízdu přístupná z obecní komunikace.
Pod příjezdovou komunikací k parcele je položen hlavní řád obecního vodovodu. Obecní kanalizace není v místě řešena. V ceně pozemku je přípojka elektřiny, zakončená kapličkou na hranici pozemku.
Přesná lokace parcely: N 49°15.21000', E 14°25.53845'
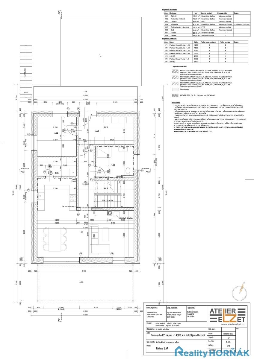
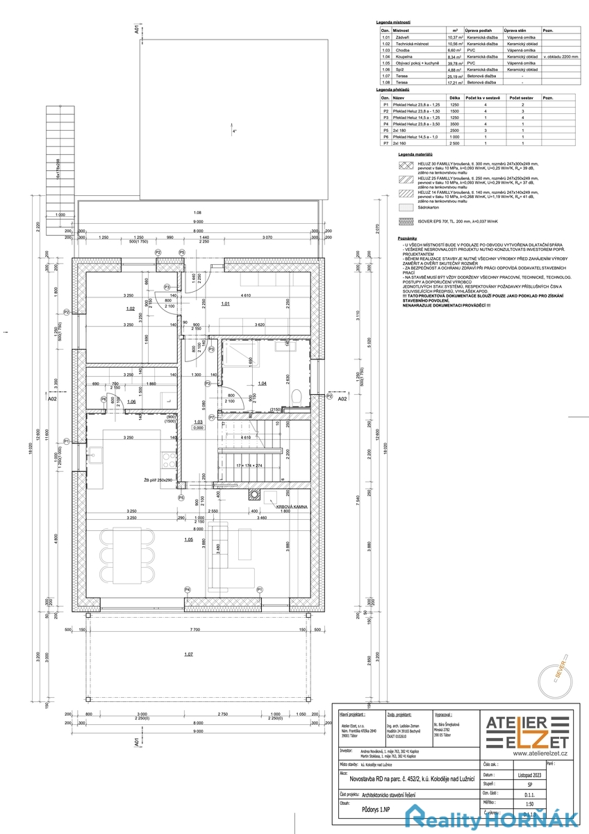
Součástí prodeje je kompletní projektová dokumentace a pravomocné stavební povolení ke stavbě novostavby rodinného domu, přístřešku pro auto a terasy s bioklimatickou pergolou. Stavebně se jedná o dvoupodlažní rodinný dům s jednou bytovou jednotkou o dispozici 5+1 se dvěma sociálními zázemími a technickou místností. Zastavěná plocha RD je 133 m2.
Projektová dokumentace řeší rodinný dům jako nepodsklepený, pouze se severní strany je doplněn o sklad a samostatný přístřešek. V 1.NP se nachází obývací pokoj spojený s kuchyní, spíž, koupelna a technická místnost. Z obývacího pokoje je možné vstoupit na terasu. Po schodech z chodby se bude vystupovat do 2.NP, kde se nachází dva pokoje, pracovna, koupelna a ložnice, se samostatnou šatnou a koupelnou. Větrání je navrženo přirozeně okny a dveřmi, vytápění tepelným čerpadlem a rozvody podlahového vytápění a radiátory v objektu. Jako doplňkový zdroj vytápění jsou navrženy krbová kamna, která jsou umístěna v obývacím pokoji. Zásobování vodou bude zajištěno pomocí nové přípojky v napojení stávající vodovod. Odkanalizování objektu je projektováno domácí čističkou odpadních vod s přepadem do vsakovací jímky.
Vlastnická práva k nabízené parcele nejsou nikým a ničím omezena, k předání může dojít okamžitě.
Náměstí Míru 38, Týn nad Vltavou
Máte zájem o tento pozemek?
Inzerát si prohlédlo 4 lidí
 
                                Ivan Horňák
Chcete dostávat emailem podobné nabídky prodeje pozemků pro bydlení v Týně nad Vltavou?