Pronájem výrobních prostor, Nové Dvory, Masarykovo nám., 300 m2

Masarykovo nám., Nové Dvory

22 400 Kč /za měsíc Získejte výhodnou HYPOTÉKU

(+ energie)

Prémioví partneři v Nových Dvorech

Informace k nemovitosti

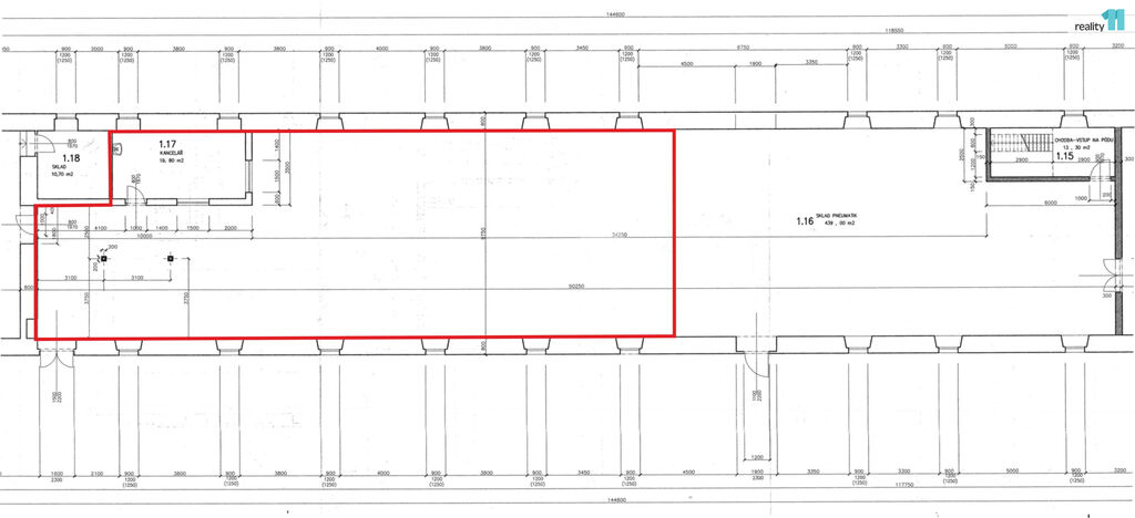
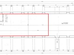
Reality 11 Vám zprostředkují pronájem komerčního či skladového prostoru o užitné ploše cca 300 m² s možností pronajmutí venkovní plochy o výměře až 2 000 m², nedaleko Kutné Hory v obci Nové Dvory.

V objektu je zavedena elektřina, samostatný elektroměr. V areálu momentálně funguje jeden autoservis, truhlárna a několik skladů. Vjezdová vrata na pozemek jsou dostatečně velká, projede i nákladní vozidlo. Venkovní plochu lze pronajmout za 33,-Kč za 1 m² měsíčně.

Vchodové dveře do objektu jsou široká 160 cm a výška činí 190 cm, možnost vybudovat i rampu. Prostory jsou suché a budou připravené pro nového nájemníka.

Měsíční nájemné ve výší 22.400,-Kč + elektřina (přepis na nájemce), kauce ve výši 44.000,-Kč. Provizi RK neplatíte..

Volné od 1.1.2026.

Obec se nachází nedaleko zámku Kačina, vedle Kutné Hory. V případě prohlídky, či dalších dotazů, mě neváhejte kontaktovat. Ev. číslo: 23706.

Parametry nemovitosti

Cena
22 400 Kč /za měsíc
Poznámka k ceně
+ energie
Aktualizováno
1. 10. 2025
Adresa
Masarykovo nám., Nové Dvory
ID
23706
Stavba
Cihlová
Stav objektu
Dobrý
Typ objektu
Patrový
Lokalita objektu
Okraj obce
Užitná plocha
300 m2
Zastavěná plocha
1797 m2
Plocha pozemku
4869 m2
Třída energetické náročnosti
G - Mimořádně nehospodárná
Ukazatel energetické náročnosti
286 kWh/m2 za rok
Topení
Ústřední tuhá paliva
Parkování

Kontaktovat makléře

Realitní kancelář

Logo Reality 11

Reality 11

Svornosti 985/8, Praha

Chystáte se prodat nemovitost?
Pomůžeme Vám!

Máte zájem o tuto nemovistost?

Tímto, v souladu s nařízením Evropského parlamentu a Rady (EU) 2016/679, v platném znění, prohlašuji, že mi je alespoň 16 let a uděluji tak svůj souhlas se zpracováním zadaných údajů (jméno, telefon, e-mail, ip adresa) společnosti B3 Technology, s.r.o., IČ: 07330600, se sídlem Novostavby 126/23, 435 11 Lom (správce dat), za účelem předání dotazu z tohoto formuláře Vámi vybranému inzerentovi a zpětného kontaktování mé osoby. Osobní údaje bude správce zpracovávat manuálně i automaticky přímo prostřednictvím svých zaměstnanců. Informace předané tímto formulářem budou uloženy v databázi správce maximálně po dobu 10 let. Odvolání souhlasu s uložením a zpracováním poskytnutých dat lze e-mailem na info@videobydleni.cz. V případě podezření na neoprávněné použití Vámi poskytnutých údajů máte právo předat podnět k šetření Úřadu pro ochranu osobních údajů. Více informací
Chystáte se prodat nemovitost?
Pomůžeme Vám!

Inzerát si prohlédlo 2 lidí

Prodejce

Filip Hecl

Filip Hecl

Hlídací pes

Chcete dostávat emailem podobné nabídky pronájmu výrobních prostor v Nových Dvorech (okr. Kutná Hora)?

Podobné nemovitosti


Nevyhovuje Vám typ nemovitosti? Podívejte se na jiné kategorie komerčních.


Vybrané články z našeho blogu