Na strži, Praha 4
Nabízíme k prodeji velmi prakticky řešený a útulný byt o dispozici 3+kk a celkové ploše 67
m², který se nachází ve 2. nadzemním podlaží panelového domu v klidné části oblíbené čtvrti
Pankrác. Byt bude připraven k nastěhování v prosinci 2025.
Byt se nachází na jedinečném místě – přímo v dynamicky se rozvíjejícím centru Pankráce. V
bezprostřední blízkosti naleznete jazykovou školu se speciálními programy, Hobby centrum
Praha 4 s bohatou nabídkou aktivit pro děti i dospělé, obchodní centrum Arkády,
kancelářské komplexy a skvělou dopravní dostupnost.
Vybavení na fotografiích, s výjimkou postele v hlavní ložnici a jídelního stolu, je součástí kupní ceny. Zahrnuje i klimatizaci, která nasává čerstvý vzduch z lodžie, a malý bojler, díky
kterému budete mít teplou vodu i v případě plánovaných odstávek nebo havárie.
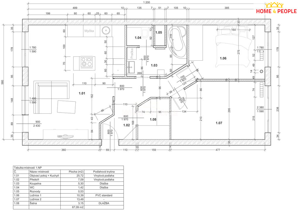
Dispozice bytu:
• Prostorná předsíň (7 m²) se vstupem do všech místností a samostatnou šatnou (3,2
m²) s podsvětlenou vestavěnou skříní a integrovaným botníkem.
• Dominantou bytu je obývací pokoj s kuchyňským koutem (25,7 m²), vybaveným
moderní kuchyňskou linkou s ostrůvkem, plynovou sklokeramickou deskou a všemi
základními spotřebiči. Z obývací části je vstup na prostorný zasklený balkon (7 m²).
Atmosféru dotváří luxusní podhledové LED osvětlení ideální pro večerní relax.
• Dvě ložnice (10,4 m² a 13,5 m²), obě orientované na západ do klidného vnitrobloku s
výhledem na beachvolejbalové hřiště. Jedna z ložnic je ideální jako dětský pokoj či
pracovna, druhá jako hlavní ložnice.
• Koupelna (5,3 m²) vybavená vanou, pračkou a kosmetickým stolem. Toaleta (1,4 m²)
je samostatná, přístupná přes koupelnu.
Další výhodou je komora/spíž (~1 m²) na chodbě přímo naproti bytu a společná kolárna s
uzamykatelnými stojany na kola či místem pro lyžařské vybavení.
Technické informace:
• Podlahy: plovoucí podlaha (obývací pokoj, kuchyň, předsíň, šatna, ložnice), vinyl
(dětský pokoj), dlažba (koupelna, WC).
• Okna: západní strana je vybavena dálkově ovládanými žaluziemi.
Lokalita a občanská vybavenost:
Byt se nachází ve výjimečně dobře dostupné lokalitě. Stanice metra C – Pankrác je vzdálena
pouhé 4 minuty chůze, autobusová zastávka je přímo před domem. V okolí je bohatá
nabídka obchodů, služeb i restaurací.
Tato nemovitost je skvělou volbou pro rodiny s dětmi, páry i investory, kteří hledají kvalitní bydlení
s výbornou dostupností do centra města.
Pro více informací či domluvení prohlídky mne neváhejte kontaktovat. Rád Vás provedu
osobně. Ev. číslo: 31921.
Máte zájem o tento byt?
Inzerát si prohlédlo 24 lidí
 
                                Mgr. Daniel Martinů
Chcete dostávat emailem podobné nabídky prodeje bytů 3+kk v Praze 4?