Prodej pozemku pro bydlení, Oplocany, 534 m2 (ID: 4040476)

Oplocany

995 000 Kč /za nemovitost HYPOTÉKA od 4 447 Kč /za měsíc
Prémioví partneři v Oplocanech

Informace k pozemku

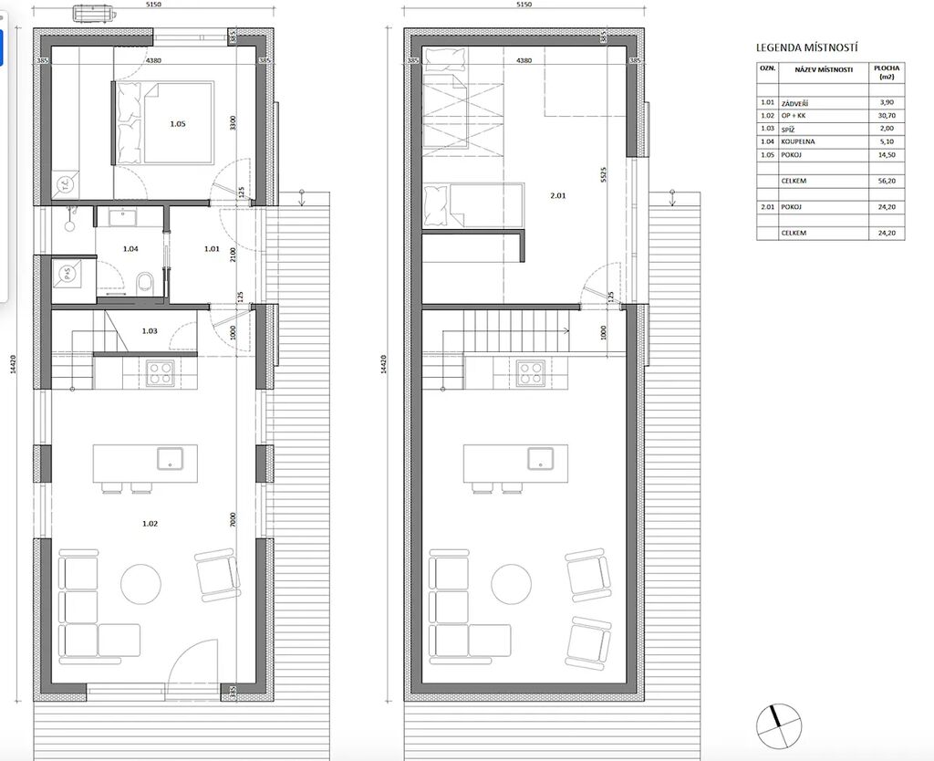
Prodej stavebního pozemku v obci Oplocany, okr. Přerov o celkové výměře 534 m2 s vydaným stavebním povolením na výstavbu rodinného domu o dispozici 3 + kk - 2 samostatné místnosti, obývací pokoj s kuchyní a terasou, parkovací stání před domem na pozemku, příjezdová komunikace asfaltová, přístup na pozemek je i ze zadní a boční strany polní cestou, přípojka elektroinstalace vyřízena - uhrazen připojovací poplatek 15.750,-Kč, přípojky kanalizace i vodovodu před pozemkem, vyřízeno stavební povolení na výstavbu rodinného domu s možností okamžité výstavby, v ceně zahrnuta kompletní projektová dokumentace, dispozice i vzhled domu je možné samozřejmě upravit, klidná lokalita na okraji obce v blízkosti Tovačovských jezer, dostupnost Tovačov 4 km - 6 min., Kroměříž 25 km - 20 min., Prostějov 18 km - 23 min..

Parametry pozemku

Cena
995 000 Kč /za nemovitost Spočítat hypotéku
Aktualizováno
28. 10. 2025
Adresa
Oplocany
Plocha pozemku
534 m2

Kontaktovat makléře

Realitní kancelář

Green energo alfa

Mlýnská 4514/19c, Prostějov

Chystáte se prodat nemovitost?
Pomůžeme Vám!

Máte zájem o tento pozemek?

Tímto, v souladu s nařízením Evropského parlamentu a Rady (EU) 2016/679, v platném znění, prohlašuji, že mi je alespoň 16 let a uděluji tak svůj souhlas se zpracováním zadaných údajů (jméno, telefon, e-mail, ip adresa) společnosti B3 Technology, s.r.o., IČ: 07330600, se sídlem Novostavby 126/23, 435 11 Lom (správce dat), za účelem předání dotazu z tohoto formuláře Vámi vybranému inzerentovi a zpětného kontaktování mé osoby. Osobní údaje bude správce zpracovávat manuálně i automaticky přímo prostřednictvím svých zaměstnanců. Informace předané tímto formulářem budou uloženy v databázi správce maximálně po dobu 10 let. Odvolání souhlasu s uložením a zpracováním poskytnutých dat lze e-mailem na info@videobydleni.cz. V případě podezření na neoprávněné použití Vámi poskytnutých údajů máte právo předat podnět k šetření Úřadu pro ochranu osobních údajů. Více informací
Chystáte se prodat nemovitost?
Pomůžeme Vám!

Inzerát si prohlédlo 6 lidí

Prodejce

Zuzana Orálková

Zuzana Orálková

Hlídací pes

Chcete dostávat emailem podobné nabídky prodeje pozemků pro bydlení v Oplocanech?

Podobné nemovitosti


Nevyhovuje Vám typ pozemku? Podívejte se na jiné kategorie pozemků.


Vybrané články z našeho blogu