Prodej bytu 2+1, Praha, Habrová, 53 m2

Habrová, Praha 3

7 090 000 Kč /za nemovitost HYPOTÉKA od 31 688 Kč /za měsíc
Prémioví partneři v Praze 3

Stěhovací služby

Výkup a prodej starého nábytku

Informace k bytu

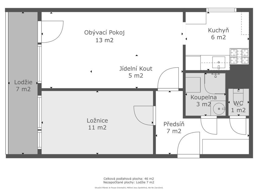
Byt 2+1 s lodžií a sklepem na Žižkově – příležitost k vlastní rekonstrukci

Hledáte byt, který si můžete přizpůsobit přesně podle svého stylu? Tento 2+1 (46 m²) ve 7. patře na Žižkově nabízí lodžii, sklep a skvělou polohu.

Byt je před rekonstrukcí, takže si můžete vytvořit bydlení podle svých představ – moderní kuchyň, koupelnu i obývací pokoj.

Klidná ulice, pár minut tramvají do centra

Lodžie 7 m² pro relaxaci

Sklep pro úložné prostory

Světlé pokoje a praktické dispoziční řešení

Zaujalo vás to? Kontaktujte mě a domluvte si prohlídku – přijďte objevit svůj nový domov.
Virtuální prohlídka bytu je k dispozici a ráda vám ji zpřístupním, abyste si byt mohli prohlédnout pohodlně z domova.

Parametry bytu

Cena
7 090 000 Kč /za nemovitost Spočítat hypotéku
Aktualizováno
14. 10. 2025
Adresa
Habrová, Praha 3
ID
420250388
Stavba
Panelová
Stav objektu
Dobrý
Patro
7. z 9
Vybaveno
Částečně
Vlastnictví
Osobní
Užitná plocha
53 m2
Zastavěná plocha
384 m2
Podlahová plocha
53 m2
Třída energetické náročnosti
C - Úsporná
Ukazatel energetické náročnosti
79 kWh/m2 za rok
Elektřina
230V
Plyn
Plynovod
Odpad
Veřejná kanalizace
Komunikace
Asfaltová
Telekomunikace
Internet
Voda
Vodovod
Sklep
Lodžie
Výtah
Parkování

Kontaktovat makléře

Realitní kancelář

Logo eDO reality

eDO reality

Na Pankráci 322/26, Praha

Chystáte se prodat nemovitost?
Pomůžeme Vám!

Máte zájem o tento byt?

Tímto, v souladu s nařízením Evropského parlamentu a Rady (EU) 2016/679, v platném znění, prohlašuji, že mi je alespoň 16 let a uděluji tak svůj souhlas se zpracováním zadaných údajů (jméno, telefon, e-mail, ip adresa) společnosti B3 Technology, s.r.o., IČ: 07330600, se sídlem Novostavby 126/23, 435 11 Lom (správce dat), za účelem předání dotazu z tohoto formuláře Vámi vybranému inzerentovi a zpětného kontaktování mé osoby. Osobní údaje bude správce zpracovávat manuálně i automaticky přímo prostřednictvím svých zaměstnanců. Informace předané tímto formulářem budou uloženy v databázi správce maximálně po dobu 10 let. Odvolání souhlasu s uložením a zpracováním poskytnutých dat lze e-mailem na info@videobydleni.cz. V případě podezření na neoprávněné použití Vámi poskytnutých údajů máte právo předat podnět k šetření Úřadu pro ochranu osobních údajů. Více informací
Chystáte se prodat nemovitost?
Pomůžeme Vám!

Inzerát si prohlédlo 24 lidí

Prodejce

Anna Motyčková

Anna Motyčková

Hlídací pes

Chcete dostávat emailem podobné nabídky prodeje bytů 2+1 v Praze 3?

Top nabídky

Podobné nemovitosti


Nevyhovuje Vám typ bytu? Podívejte se na jiné kategorie bytů.


Vybrané články z našeho blogu